ioaffitto.it TROVA casa. VIVI SEMPLICE.
Nuova ricerca
Pubblica annuncio
Annunci sponsorizzati
Agenzie
Valutazione-immobile
Servizi
Luce Gas Fibra
Mutui
Finanziamenti
Ricerca Internazionale
Servizi web
Servizio partecipazione asta
Pubblica annuncio
Accedi
In affitto
/
Negozio
/
Selvazzano Dentro (PD)
1 di 0
1/5
2/5
3/5
4/5
5/5
5
Foto
0
planimetria
Negozio in affitto in via roma a Selvazzano Dentro
€ 3.200,00
al mese
10
locali
2
bagni
325
mq
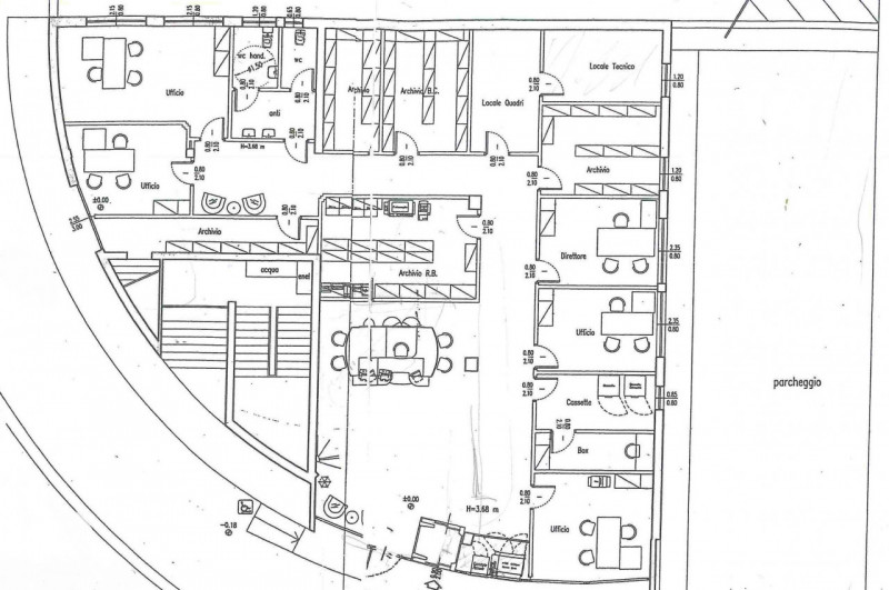
In pieno centro a Selvazzano Dentro proponiamo un negozio di 300 mq fronte strada dotato di ottime finiture e impiantistica completa.
L'unità è divisa in 7 uffici, 2 zone archivio, 1 gruppo di servizi, la zona server e un locale tecnico per la caldaia e l'impianto di aria climatizzata canalizzata. L'unità dispone di un magazzino al piano interrato.
Possibilità di liberazione in 90 giorni.
L'appuntamento di visita verrà fissato dopo un incontro conoscitivo in Agenzia.
Rif Ganr019 --- annuncio pubblicato con GESTIONALEIMMOBILIARE.it
RIFERIMENTO ANNUNCIO
gestimm-3303905
DATA ANNUNCIO
27 marzo 2024
DATA ULTIMO AGGIORNAMENTO
27 marzo 2024
CONTRATTO
Affitto
TIPOLOGIA
Negozio
SUPERFICIE
325 m²
locali
10
PIANO
Non disponibile
TIPO PROPRIETA'
Standard
ALTRE CARATTERISTICHE'
aria condizionata
soffitta / mansarda
cantina
ingresso indipendente
garage
riscaldamento autonomo
cucina presente
cucina abitabile
stato di manutenzione ottimo
rete locale in fibra ottica
antifurto
taverna
Costi
€ 3.200,00
al mese
Anno di costruzione
1975
Classe energetica
E
415.39 kWh/m3anno
a+
a
b
c
d
e
f
g
Mappa della zona dell'immobile
Ingrandisci mappa
Segnala un problema
Servizi per te
Inserzionista
Immobilpoint
Agenzia Account
Vai al sito web
Codice annuncio:
3303905
Mostra numero
Tel: 0499903066
Invia email
Motivo contatto
Appuntamento
Più informazioni
Richiesta di contatto
Più foto e materiali
Nome e cognome*
Email*
Cellulare
Messaggio*
ATTENZIONE ALLE TRUFFE
NON ANTICIPARE MAI denaro su carte ricaricabili, conti correnti esteri, money transfer o altri sistemi di pagamento
Accettazione*
Ho letto, sono maggiorenne e accetto
condizioni
,
privacy
e
Consigli antitruffa
Invia
Chiama
Contatta
Visita
Richiedi visita
Scopri subito quanto vale la tua casa per l'affitto o per la vendita!
Valuta gratis
Altri annunci simili
Negozio in affitto in Padova Centro Storico vicinanze Piazza Garibaldi a Padova
CENTRO STORICO PADOVA NEGOZIO IN AFFITTO VICINANZE PIAZZA GARIBALDI zona dello shopping con marc...
€ 3.000
40 ㎡
superficie
Negozio in affitto in Via Cavour a Padova
In posizione di fortissimo passaggio con punte di 40 persone al minuto, proponiamo fondo commerci...
€ 3.000
60 ㎡
superficie
Negozio in affitto a Padova
CENTRO STORICO in locazione negozio ristrutturato mq.70, magazzino mq.15, bagno, termo autonomo. ...
€ 3.000
70 ㎡
superficie
1
bagni
Negozio in affitto in Zona centro storico Carmine a Padova
OPPORTUNITA' CENTRO STORICO NEGOZIO IN AFFITTO E PIU' LOCALI AL PIANO PRIMO IN ZONA CARMINE IL NE...
€ 3.300
250 ㎡
superficie
Negozio in affitto in treponti a Teolo
Padova---Treponti Rif. 349MAT.FUTURAM Tel. 0444310220 Si propone in affitto unità immobiliare ...
€ 3.000
410 ㎡
superficie
2
bagni
Negozio in affitto a Torri Di Quartesolo
CENTRO COMMERCIALE "LE PIRAMIDI" : NEGOZIO in AFFITTO di RAMO d'AZIENDA di 67 mq, sito al piano t...
€ 3.000
1
locali
67 ㎡
superficie
Annunci immobiliari nella stessa zona
Comune di Selvazzano Dentro:
Affitto Attività/immobili commerciali Selvazzano Dentro
|
Affitto Negozi Selvazzano Dentro
|
Agenzie immobiliari Selvazzano Dentro
|
Provincia di Padova:
Affitto Attività/immobili commerciali Padova
|
Affitto Negozi Padova
|
Agenzie immobiliari Padova
|
Email
Password
Ricordami
Registrati adesso
Sei una agenzia?
Password dimenticata?