ioaffitto.it TROVA casa. VIVI SEMPLICE.
Nuova ricerca
Pubblica annuncio
Annunci sponsorizzati
Agenzie
Valutazione-immobile
Servizi
Luce Gas Fibra
Mutui
Finanziamenti
Ricerca Internazionale
Servizi web
Servizio partecipazione asta
Pubblica annuncio
Accedi
Nuovo
1/4
2/4
3/4
4/4
4
Foto
0
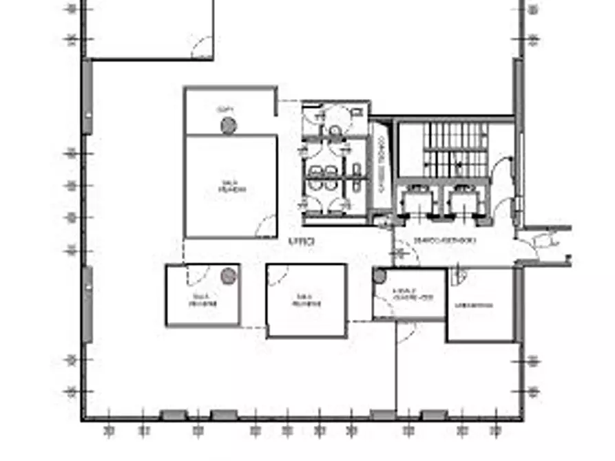
planimetria
Ufficio in affitto in VIA ANNA MARIA MOZZONI a Milano
€ 7.300,00
al mese
4
locali
3
bagni
398
mq
Proponiamo in locazione Uffici di mq 398 ca. al 6 piano, inseriti in prestigioso edificio direzionale di recente costruzione caratterizzato da impianti all’avanguardia, visibilita', riconoscibilita' e prestigio. Canone annuo Euro. 87.600,00 ( pari a ca. 7.300,00 euro al mese). Edificio «intelligente» ad alta efficienza energetica, massima flessibilita' degli spazi. Disponibilita' fino a n. 15 posti auto coperti, fino a n. 14 pisti auto scoperti e spazi archivi. Possibilita' di abbinare altre metrature nello stesso edificio. Mezzi di collegamento: MM1 fermata Bisceglie , futura MM4 fermata San Cristoforo . Per maggiori informazioni contattare i nostri uffici. - Cl. Energetica: G - Kwh/mc anno: 150. Rif.: ULMG3063 --- annuncio pubblicato con GESTIONALEIMMOBILIARE.it
RIFERIMENTO ANNUNCIO
gestimm-3407027
DATA ANNUNCIO
22 dicembre 2025
DATA ULTIMO AGGIORNAMENTO
22 dicembre 2025
CONTRATTO
Affitto
TIPOLOGIA
Ufficio
SUPERFICIE
398 m²
locali
4
PIANO
6
TOTALE PIANI EDIFICIO
9
TIPO PROPRIETA'
Standard
ALTRE CARATTERISTICHE'
aria condizionata
soffitta / mansarda
cantina
garage
riscaldamento centralizzato
cucina presente
cucina abitabile
ascensore
stato di manutenzione ottimo
nuova costruzione
posto auto
taverna
Costi
€ 7.300,00
al mese
Anno di costruzione
2020
Classe energetica
G
150 kWh/m3anno
a+
a
b
c
d
e
f
g
Mappa della zona dell'immobile
Ingrandisci mappa
Segnala un problema
Servizi per te
Inserzionista
Immobili Servizi Immobiliari s.a.s.
Giancarlo Giraldi
Vai al sito web
Codice annuncio:
3407027
Mostra numero
Tel: 0229523119
Invia email
Motivo contatto
Appuntamento
Più informazioni
Richiesta di contatto
Più foto e materiali
Nome e cognome*
Email*
Cellulare
Messaggio*
ATTENZIONE ALLE TRUFFE
NON ANTICIPARE MAI denaro su carte ricaricabili, conti correnti esteri, money transfer o altri sistemi di pagamento
Accettazione*
Ho letto, sono maggiorenne e accetto
condizioni
,
privacy
e
Consigli antitruffa
Invia
Chiama
Contatta
Visita
Richiedi visita
Scopri subito quanto vale la tua casa per l'affitto o per la vendita!
Valuta gratis
Altri annunci simili
Ufficio in affitto a Milano
Proponiamo in affitto un ampio ufficio di 570 m² situato al piano rialzato, con ingresso indipend...
€ 7.363
5
locali
570 ㎡
superficie
5
bagni
Ufficio in affitto in VIA CECHOV ANTONIO a Milano
Affitta a Milano, Bonola, Ufficio in Centro Direzionale mq. 633 ca., 5 piano Canone annuo Euro. 9...
€ 7.500
1
locali
633 ㎡
superficie
3
bagni
Ufficio in affitto in VIA CECHOV ANTONIO a Milano
Proponiamo in locazione uffici di mq 630 ca. al 5 piano. Canone annuo Euro. 88.200,00 ( pari a ca...
€ 7.350
4
locali
630 ㎡
superficie
3
bagni
Ufficio in affitto in PIAZZALE ACCURSIO FRANCESCO a Milano
Affitta a Milano, Certosa, Ufficio Direzionale, mq. 509 ca., 3 piano, con ascensori, portineria. ...
€ 7.225
1
locali
509 ㎡
superficie
3
bagni
Ufficio in affitto in VIA GIOVANNI GENTILE a Milano
Affitta a Milano, Certosa, Ufficio Direzionale mq. 738 ca. Canone annuo Euro. 88.560,00 ( pari a...
€ 7.380
1
locali
738 ㎡
superficie
3
bagni
Ufficio in affitto in PIAZZALE CORVETTO LUIGI EMANUELE a Milano
Affitta a Milano, Rogoredo, Ufficio Direzionale, mq. 500 ca., 5 piano, con ascensori. Canone annu...
€ 7.500
4
locali
500 ㎡
superficie
3
bagni
Annunci immobiliari nella stessa zona
Comune di Milano:
Affitto Attività/immobili commerciali Milano
|
Affitto Uffici Milano
|
Agenzie immobiliari Milano
|
Provincia di Milano:
Affitto Attività/immobili commerciali Milano
|
Affitto Uffici Milano
|
Agenzie immobiliari Milano
|
Email
Password
Ricordami
Registrati adesso
Sei una agenzia?
Password dimenticata?