ioaffitto.it TROVA casa. VIVI SEMPLICE.
Nuova ricerca
Pubblica annuncio
Annunci sponsorizzati
Agenzie
Valutazione-immobile
Servizi
Luce Gas Fibra
Mutui
Finanziamenti
Ricerca Internazionale
Servizi web
Servizio partecipazione asta
Pubblica annuncio
Accedi
In affitto
/
Negozio
/
Padova (PD)
51 di 51
1/16
2/16
3/16
4/16
5/16
6/16
7/16
8/16
9/16
10/16
11/16
12/16
13/16
14/16
15/16
16/16
16
Foto
0
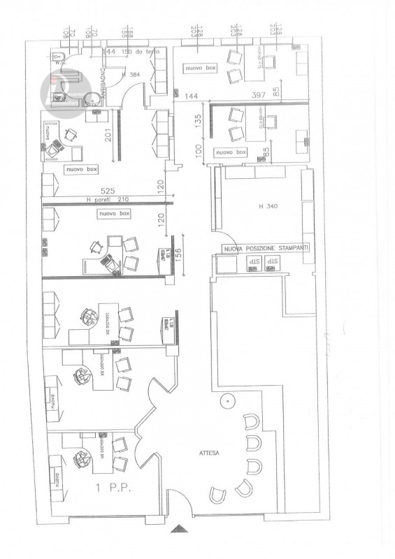
planimetria
Negozio in affitto a Padova
€ 2.600,00
al mese
-
locali
-
bagni
230
mq
Padova in zona Carmine, proponiamo in affitto negozio/ufficio al piano terra con vetrine e parcheggi adiacenti.
L'immobile si sviluppa completamente al piano terra per una superfice utile di oltre 200 mq., attualmente suddiviso in vari locali uffici con pareti mobili come si nota in planimetria. Può essere locato anche come open space.
Dotato di buone finiture può essere utilizzabile da subito.
Una struttura ideale per uno studio professionale che necessiti di visibilità e comodità al centro città ma anche per attività che necessitano di spazi ampi.
Chiamaci subito e vieni a visitarlo. --- annuncio pubblicato con GESTIONALEIMMOBILIARE.it
RIFERIMENTO ANNUNCIO
gestimm-3494089
DATA ANNUNCIO
10 giugno 2025
DATA ULTIMO AGGIORNAMENTO
10 giugno 2025
CONTRATTO
Affitto
TIPOLOGIA
Negozio
SUPERFICIE
230 m²
PIANO
Non disponibile
TIPO PROPRIETA'
Standard
ALTRE CARATTERISTICHE'
soffitta / mansarda
cantina
garage
riscaldamento autonomo
cucina presente
cucina abitabile
stato di manutenzione buono
taverna
Costi
€ 2.600,00
al mese
Classe energetica
F
59.5 kWh/m3anno
a+
a
b
c
d
e
f
g
Mappa della zona dell'immobile
Ingrandisci mappa
Segnala un problema
Servizi per te
Inserzionista
Pesavento Alfonso
Alfonso Pesavento
Vai al sito web
Codice annuncio:
3494089
Mostra numero
Tel: 3482813473
Invia email
Motivo contatto
Appuntamento
Più informazioni
Richiesta di contatto
Più foto e materiali
Nome e cognome*
Email*
Cellulare
Messaggio*
ATTENZIONE ALLE TRUFFE
NON ANTICIPARE MAI denaro su carte ricaricabili, conti correnti esteri, money transfer o altri sistemi di pagamento
Accettazione*
Ho letto, sono maggiorenne e accetto
condizioni
,
privacy
e
Consigli antitruffa
Invia
Chiama
Contatta
Visita
Richiedi visita
Scopri subito quanto vale la tua casa per l'affitto o per la vendita!
Valuta gratis
Altri annunci simili
Negozio in vendita a Padova
In zona di forte passaggio in pieno centro storico, affittasi negozio di ampie dimensioni ideale ...
€ 2.500
150 ㎡
superficie
Negozio in affitto a Padova
Centro storico, vicinanze piazza Cavour e piazze, negozio due vetrine, 90 mq con cortiletto inte...
€ 2.800
1
locali
90 ㎡
superficie
1
bagni
Negozio in affitto in PRATO DELLA VALLE a Padova
Affittiamo un'affascinante struttura commerciale di 200 mq situata nel cuore di Prato della Valle...
€ 2.500
200 ㎡
superficie
Negozio in affitto in Zona Corso Stati Uniti a Padova
Affittasi in zona industriale di Padova, nei pressi di Corso Stati Uniti, negozio di mq 200 circa...
€ 2.500
200 ㎡
superficie
1
bagni
Negozio in affitto in Via Maestri Calzaturieri del Brenta a Noventa Padovana
Noventa Padovana (PD) - proponiamo in locazione un prestigioso negozio ubicato nell'esclusivo com...
€ 2.700
3
locali
250 ㎡
superficie
2
bagni
Negozio in affitto in via giotto a Barbarano Mossano
BARBARANO MOSSANO RIF. 446MAT.FUTURAM TEL 0444310220 - 3929183796 AFFITTASI UNITA' IMMOBILIARE D...
€ 2.500
2
locali
500 ㎡
superficie
2
bagni
Annunci immobiliari nella stessa zona
Comune di Padova:
Affitto Attività/immobili commerciali Padova
|
Affitto Negozi Padova
|
Agenzie immobiliari Padova
|
Provincia di Padova:
Affitto Attività/immobili commerciali Padova
|
Affitto Negozi Padova
|
Agenzie immobiliari Padova
|
Email
Password
Ricordami
Registrati adesso
Sei una agenzia?
Password dimenticata?