ioaffitto.it TROVA casa. VIVI SEMPLICE.
Logo
1/2
Immagine 1 di Terreno in vendita  in Via Molino di Ferro a Vedelago
2/2
Immagine 2 di Terreno in vendita  in Via Molino di Ferro a Vedelago
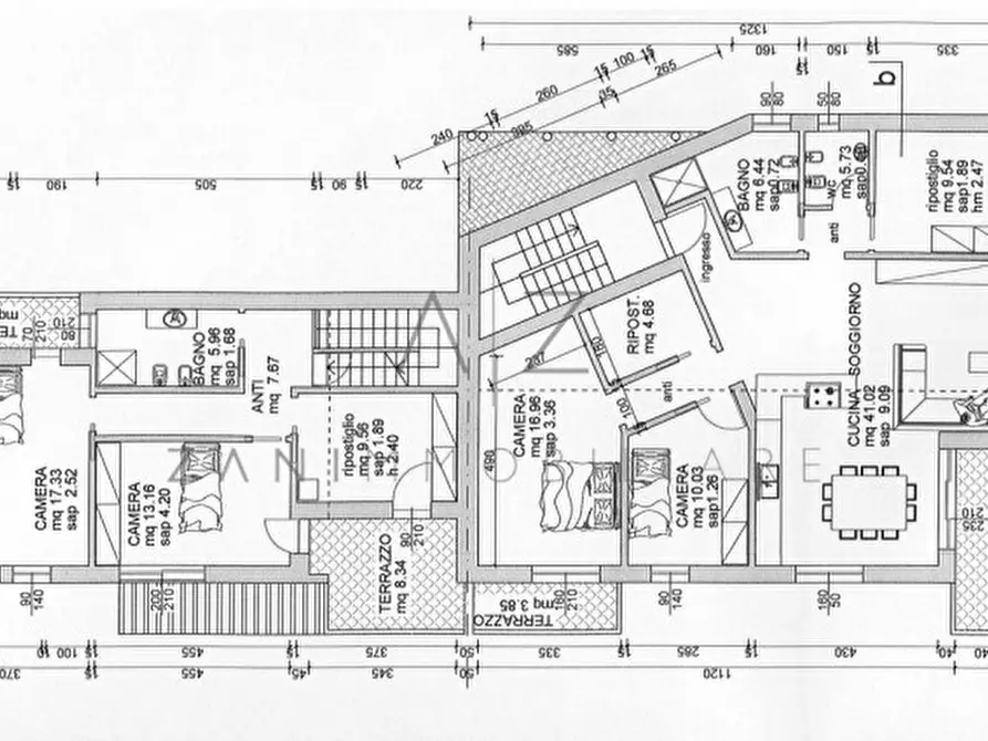
Icona foto2 Foto     Icona planimetrie 0 planimetria

Terreno in vendita in Via Molino di Ferro a Vedelago

€ 125.000,00
prezzo di vendita
-
locali
-
bagni
824
mq
Vedelago, frazione Fanzolo, proponiamo ampio terreno edificabile di circa 824 mq.

Il progetto approvato prevede la costruzione di tre unità abitative con una volumetria totale di circa 1.199 mc, inclusi garage al piano interrato e un portico di 20 mq.

La disposizione degli edifici è stata così progettata: la parte nord ospiterà un'unità su due livelli completamente indipendente, mentre le altre due unità a sud saranno collocate in sovrapposizione (piano terra e piano primo). Entrambe le unità sud avranno anch'esse garage al piano interrato e condivideranno un vano scala comune, garantendo un accesso agevole e pratico.

In conformità con le normative vigenti, è prevista un'area di manovra a nord, dedicata alla creazione di spazio per parcheggi, soddisfacendo così i requisiti stabiliti dalla Legge n. 122 del 24/03/89.

Questa è un'opportunità ideale per investitori o per chi desidera realizzare la propria abitazione in una zona tranquilla e ben servita.

La posizione strategica e il progetto già approvato rendono questo terreno un'opzione allettante per chiunque cerchi una soluzione residenziale su misura e dalle caratteristiche moderne.

Per ulteriori informazioni:
Consulente immobiliare Sara 348/8560225 --- annuncio pubblicato con GESTIONALEIMMOBILIARE.it
RIFERIMENTO ANNUNCIO
gestimm-3547031
DATA ANNUNCIO
20 febbraio 2025
DATA ULTIMO AGGIORNAMENTO
20 febbraio 2025
CONTRATTO
Vendita
TIPOLOGIA
Terreno
SUPERFICIE
824 m²
TIPO PROPRIETA'
Standard
ALTRE CARATTERISTICHE'
soffitta / mansarda cantina garage cucina presente cucina abitabile taverna
Costi
€ 125.000,00
prezzo di vendita
Classe energetica IN CORSO DI VALUTAZIONE
a+ a b c d e f g
Mappa della zona dell'immobile

Calcola il mutuo

Inserisci i dati mutuo

Rata del mutuo
Al mese
Anticipo
Mutuo
Richiedi consulenza gratuita mutuo

Servizio erogato tramite  

Servizi per te
Inserzionista
Logo Zanimmobiliare di Adriana Zani
Zanimmobiliare di Adriana Zani
Adriana Zani

Codice annuncio: 3547031

Invia email
ATTENZIONE ALLE TRUFFE
 
NON ANTICIPARE MAI denaro su carte ricaricabili, conti correnti esteri, money transfer o altri sistemi di pagamento

Scopri subito quanto vale la tua casa per l'affitto o per la vendita!

   

Altri annunci simili