ioaffitto.it TROVA casa. VIVI SEMPLICE.
Nuova ricerca
Pubblica annuncio
Annunci sponsorizzati
Agenzie
Valutazione-immobile
Servizi
Luce Gas Fibra
Mutui
Finanziamenti
Ricerca Internazionale
Servizi web
Servizio partecipazione asta
Pubblica annuncio
Accedi
1/10
2/10
3/10
4/10
5/10
6/10
7/10
8/10
9/10
10/10
10
Foto
0
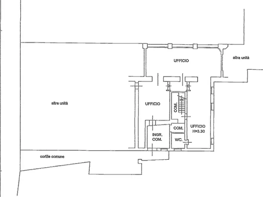
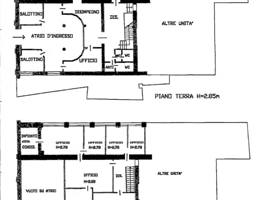
planimetria
Ufficio in affitto in via della pieve a Padova
€ 10.500,00
al mese
-
locali
-
bagni
750
mq
Affascinante blocco indipendente di uffici nel cuore del centro storico di Padova, all'interno del prestigioso Parco del Palazzo Orsato Lazara Giusti Del Giardino. Con un'ampia superficie di 750 mq su due piani collegati da una scala interna e uno splendido ingresso con reception, questo immobile offre varie possibilità per l'allestimento degli spazi in base alle esigenze del cliente. Gli impianti, i pavimenti e le altre finiture saranno personalizzabili in accordo con la proprietà. Non sono disponibili al momento foto degli interni poiché gli ambienti devono essere riattati a discrezione del cliente nel rispetto dei Vincoli di tutela dello stabile. È possibile affittare posti auto aggiuntivi all'esterno dell'edificio. --- annuncio pubblicato con GESTIONALEIMMOBILIARE.it
RIFERIMENTO ANNUNCIO
gestimm-3644785
DATA ANNUNCIO
9 aprile 2024
DATA ULTIMO AGGIORNAMENTO
9 aprile 2024
CONTRATTO
Affitto
TIPOLOGIA
Ufficio
SUPERFICIE
750 m²
PIANO
Non disponibile
TIPO PROPRIETA'
Standard
ALTRE CARATTERISTICHE'
soffitta / mansarda
cantina
garage
cucina presente
cucina abitabile
stato di manutenzione discreto
taverna
Costi
€ 10.500,00
al mese
Anno di costruzione
2000
Classe energetica
IN CORSO DI VALUTAZIONE
a+
a
b
c
d
e
f
g
Mappa della zona dell'immobile
Ingrandisci mappa
Segnala un problema
Servizi per te
Inserzionista
Agenzia Immobiliare San Fermo
Andrea Barato
Vai al sito web
Codice annuncio:
3644785
Mostra numero
Tel: 0498759207
Invia email
Motivo contatto
Appuntamento
Più informazioni
Richiesta di contatto
Più foto e materiali
Nome e cognome*
Email*
Cellulare
Messaggio*
ATTENZIONE ALLE TRUFFE
NON ANTICIPARE MAI denaro su carte ricaricabili, conti correnti esteri, money transfer o altri sistemi di pagamento
Accettazione*
Ho letto, sono maggiorenne e accetto
condizioni
,
privacy
e
Consigli antitruffa
Invia
Chiama
Contatta
Visita
Richiedi visita
Scopri subito quanto vale la tua casa per l'affitto o per la vendita!
Valuta gratis
Altri annunci simili
Ufficio in vendita in Via don Enrico Tazzoli a Ferrara
NUOVA PROPOSTA L'immobile si trova nel comune di Ferrara(FE) in via don Enrico Tazzoli, trattasi...
€ 10.350
1
locali
18 ㎡
superficie
Annunci immobiliari nella stessa zona
Comune di Padova:
Affitto Attività/immobili commerciali Padova
|
Affitto Uffici Padova
|
Agenzie immobiliari Padova
|
Provincia di Padova:
Affitto Attività/immobili commerciali Padova
|
Affitto Uffici Padova
|
Agenzie immobiliari Padova
|
Email
Password
Ricordami
Registrati adesso
Sei una agenzia?
Password dimenticata?