ioaffitto.it TROVA casa. VIVI SEMPLICE.
Nuova ricerca
Pubblica annuncio
Annunci sponsorizzati
Agenzie
Valutazione-immobile
Servizi
Luce Gas Fibra
Mutui
Finanziamenti
Ricerca Internazionale
Servizi web
Servizio partecipazione asta
Pubblica annuncio
Accedi
Nuovo
1/3
2/3
3/3
3
Foto
0
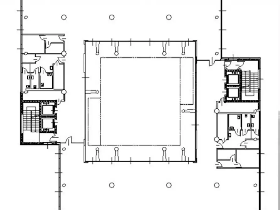
planimetria
Ufficio in affitto in VIA VENTICINQUE APRILE a San Donato Milanese
€ 14.500,00
al mese
4
locali
2
bagni
965
mq
Proponiamo in locazione uffici di mq 965 ca. al 2 piano di stabile direzionale. Canone annuo Euro. 174.000,00 ( pari a ca. 14.500,00 euro al mese). Gli spazi vengono consegnati in CAT A, con moquette, pareti interne e cablaggio internet. Sono disponibili spazi ad uso archivio nei piani seminterrati. Possibilita' di abbinare altre metrature all'interno dello stesso edificio. Per maggiori informazioni contattare i nostri uffici. - Cl. Energetica: G - Kwh/mc anno: 150. Rif.: ULFV507 --- annuncio pubblicato con GESTIONALEIMMOBILIARE.it
RIFERIMENTO ANNUNCIO
gestimm-4168266
DATA ANNUNCIO
22 marzo 2026
DATA ULTIMO AGGIORNAMENTO
22 marzo 2026
CONTRATTO
Affitto
TIPOLOGIA
Ufficio
SUPERFICIE
965 m²
locali
4
PIANO
2
TOTALE PIANI EDIFICIO
7
TIPO PROPRIETA'
Standard
ALTRE CARATTERISTICHE'
soffitta / mansarda
cantina
garage
riscaldamento centralizzato
cucina presente
cucina abitabile
ascensore
ristrutturato
taverna
Costi
€ 14.500,00
al mese
Anno di costruzione
2006
Classe energetica
G
150 kWh/m3anno
a+
a
b
c
d
e
f
g
Mappa della zona dell'immobile
Ingrandisci mappa
Segnala un problema
Servizi per te
Inserzionista
Immobili Servizi Immobiliari s.a.s.
Giancarlo Giraldi
Vai al sito web
Codice annuncio:
4168266
Mostra numero
Tel: 0229523119
Invia email
Motivo contatto
Appuntamento
Più informazioni
Richiesta di contatto
Più foto e materiali
Nome e cognome*
Email*
Cellulare
Messaggio*
ATTENZIONE ALLE TRUFFE
NON ANTICIPARE MAI denaro su carte ricaricabili, conti correnti esteri, money transfer o altri sistemi di pagamento
Accettazione*
Ho letto, sono maggiorenne e accetto
condizioni
,
privacy
e
Consigli antitruffa
Invia
Chiama
Contatta
Visita
Richiedi visita
Scopri subito quanto vale la tua casa per l'affitto o per la vendita!
Valuta gratis
Altri annunci simili
a
a
a
a
a
a
Annunci immobiliari nella stessa zona
Comune di San Donato Milanese:
Affitto Attività/immobili commerciali San Donato Milanese
|
Affitto Uffici San Donato Milanese
|
Agenzie immobiliari San Donato Milanese
|
Provincia di Milano:
Affitto Attività/immobili commerciali Milano
|
Affitto Uffici Milano
|
Agenzie immobiliari Milano
|
Email
Password
Ricordami
Registrati adesso
Sei una agenzia?
Password dimenticata?