Attività commerciale in vendita in Via della Chiesa, 42 a Prata Di Pordenone
€ 26.250,00
prezzo di vendita
Rif. A.A.235-23
Vendita all'asta - attività commerciale (pizzeria) in data 7 aprile 2026
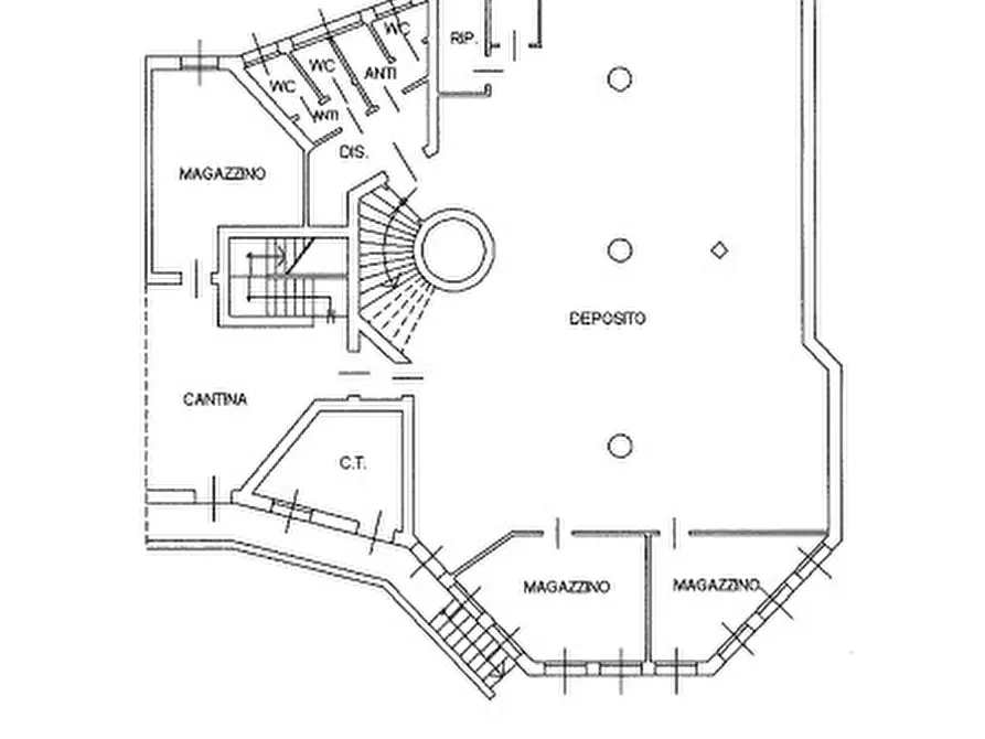
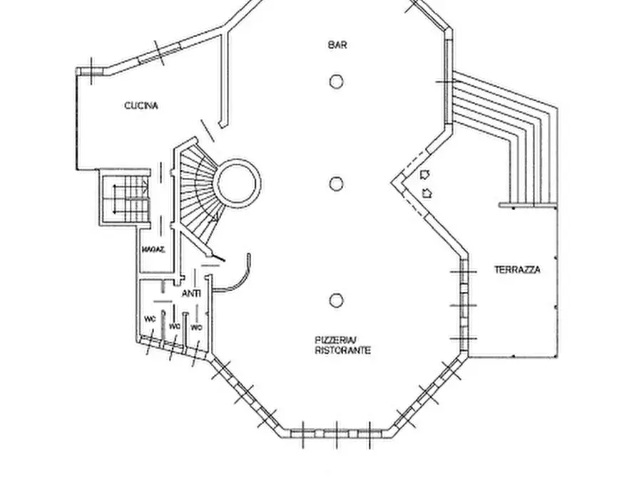
Descrizione: trattasi di una pizzeria ristorante con i locali principali al piano rialzato oltre ai locali accessori al piano seminterrato ed un garage al piano seminterrato. All’interno del piano rialzato c’è la sala principale adibita a ristorante pizzeria e l’adiacente area adibita a bar, una cucina dietro alla zona bar, i locali servizi ed i vani scale che danno accesso ai locali inferiori. Nel piano seminterrato troviamo i locali accessori quali il deposito, i magazzini, la cantina ed i locali spogliatoi e servizi. Per accedere alla centrale termica ubicata anch’essa al piano seminterrato, vi è una rampa esterna. Superficie commerciale complessiva ca.450 mq.
Il lotto viene venduto tramite asta giudiziaria, ed il prezzo indicato si riferisce al prezzo minimo accettato per la partecipazione all’asta .
Aste-Affari fornisce un servizio di assistenza e consulenza tecnica , legale, fiscale e finanziaria su acquisti all’asta e affari immobiliari , al fine di rendere più facile e sicuro l'acquisto di un immobile proveniente dal mercato giudiziario oppure da occasioni presenti sul mercato immobiliare .
Analisi di fattibilità , tecnica, burocratica, finanziaria , legale , esame problematiche e vincoli , conteggio costi accessori ed occulti, assistenza in tutte le fasi della procedura fino alla consegna delle chiavi dell’immobile .
L'acquisto può essere finanziato tramite mutuo , e , ove possibile , anche in pre-asta tramite procedura di saldo-stralcio .
Soluzioni personalizzate per i debitori .
Prezzo minimo base asta : euro 26.250,00
Per info aggiuntive , prenotazione visione, consulenza ed assistenza
Studio di Consulenza : “aste-affari.com”
Info : 042217801118 – 04221780185
www.aste-affari.com --- annuncio pubblicato con GESTIONALEIMMOBILIARE.it