ioaffitto.it TROVA casa. VIVI SEMPLICE.
Nuova ricerca
Pubblica annuncio
Annunci sponsorizzati
Agenzie
Valutazione-immobile
Servizi
Luce Gas Fibra
Mutui
Finanziamenti
Ricerca Internazionale
Servizi web
Servizio partecipazione asta
Pubblica annuncio
Accedi
Nuovo
1/11
2/11
3/11
4/11
5/11
6/11
7/11
8/11
9/11
10/11
11/11
11
Foto
0
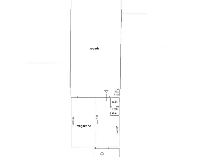
planimetria
Magazzino in affitto a Prato
€ 690,00
al mese
1
locali
1
bagni
70
mq
Vergaio.
In strada secondaria disponiamo di magazzino, categoria catastale C/3.
L'immobile, posto al piano terra , sviluppa una superficie di circa 70 mq con servizio , e gode di un giardino privato e carrabile di circa 150 mq.
Il magazzino si presenta in buono stato e viene locato al canone mensile di 690€.
SI SPECIFICA CHE E' SOLO A USO DEPOSITO.
Per ricevere maggiori informazioni e/o fissare un appuntamento chiamateci allo 0574448722 o al 3338113332 oppure scriveteci via mail:info@dinamocasa.it
Questo immobile è visibile anche su FACEBOOK, cerca ”DINAMO CASA” e clicca MI PIACE --- annuncio pubblicato con GESTIONALEIMMOBILIARE.it
RIFERIMENTO ANNUNCIO
gestimm-4352605
DATA ANNUNCIO
6 marzo 2026
DATA ULTIMO AGGIORNAMENTO
6 marzo 2026
CONTRATTO
Affitto
TIPOLOGIA
Magazzino
SUPERFICIE
70 m²
locali
1
PIANO
Non disponibile
TIPO PROPRIETA'
Standard
ALTRE CARATTERISTICHE'
soffitta / mansarda
cantina
ingresso indipendente
garage
giardino
cucina presente
cucina abitabile
taverna
Costi
€ 690,00
al mese
Anno di costruzione
1970
Classe energetica
G
a+
a
b
c
d
e
f
g
Mappa della zona dell'immobile
Ingrandisci mappa
Segnala un problema
Servizi per te
Inserzionista
Dinamo Casa snc
Marco Buongiovanni
Vai al sito web
Codice annuncio:
4352605
Mostra numero
Tel: 0574448722
Invia email
Motivo contatto
Appuntamento
Più informazioni
Richiesta di contatto
Più foto e materiali
Nome e cognome*
Email*
Cellulare
Messaggio*
ATTENZIONE ALLE TRUFFE
NON ANTICIPARE MAI denaro su carte ricaricabili, conti correnti esteri, money transfer o altri sistemi di pagamento
Accettazione*
Ho letto, sono maggiorenne e accetto
condizioni
,
privacy
e
Consigli antitruffa
Invia
Chiama
Contatta
Visita
Richiedi visita
Scopri subito quanto vale la tua casa per l'affitto o per la vendita!
Valuta gratis
Altri annunci simili
a
a
a
a
a
a
Annunci immobiliari nella stessa zona
Comune di Prato:
Affitto Magazzini Prato
|
Agenzie immobiliari Prato
|
Provincia di Prato:
Affitto Magazzini Prato
|
Agenzie immobiliari Prato
|
Email
Password
Ricordami
Registrati adesso
Sei una agenzia?
Password dimenticata?