ioaffitto.it TROVA casa. VIVI SEMPLICE.
Nuova ricerca
Pubblica annuncio
Annunci sponsorizzati
Agenzie
Valutazione-immobile
Servizi
Luce Gas Fibra
Mutui
Finanziamenti
Ricerca Internazionale
Servizi web
Servizio partecipazione asta
Pubblica annuncio
Accedi
1/11
2/11
3/11
4/11
5/11
6/11
7/11
8/11
9/11
10/11
11/11
11
Foto
0
planimetria
Magazzino in affitto a Noventa Di Piave
Non specificato
al mese
-
locali
-
bagni
6000
mq
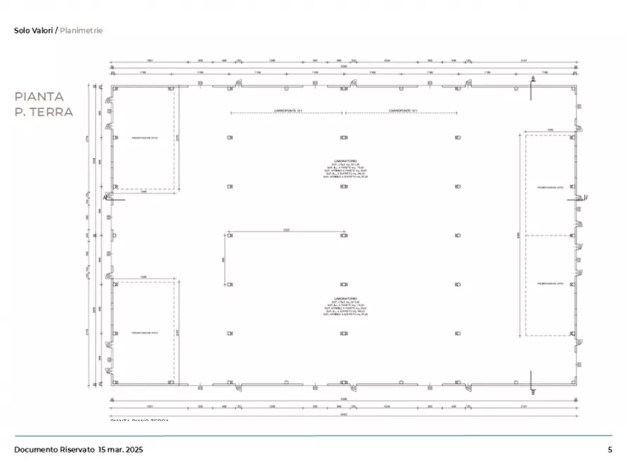
Rif. D208 (per info 393 1710719 Fabrizio) La presente proposta, riguarda un complesso logistico in corso di realizzazione, inserito in un’ampia area già urbanizzata di 18.674 mq. Il fabbricato esistente, avente una superfice coperta di 5813 mq puo’ essere ulteriormente ampliato di 3900 mq. Comodo a casello autostradale A4.
Il fabbricato, ancora parzialmente personalizzabile, avrà le seguenti caratteristiche:
H= 8 m.
Copertura a shed
Anello antincendio
Bocche di carico se richieste
Spogliatoi e servizi
Possibilità di personalizzare gli spazi
Predisposizione carroponte 10 ton.
Possibilità di utilizzare l'immobile a scopi produttivi.
Immobile privo di impianto di riscaldamento, non soggetto a certificazione energetica (casi previsti dal Decreto Interministeriale del 26/06/2015 – Appendice A: Casi di esclusione dall’obbligo di dotazione APE)
L'indirizzo presente nel seguente annuncio non identifica l'esatta ubicazione dell'immobile
al fine di garantire la privacy e la riservatezza del venditore.
Per maggiori informazioni contattaci, senza impegno, telefonicamente, via mail o attraverso il modulo di richiesta.
Ti saranno inviate le informazioni richieste entro 24 ore.
SOLO VALORI srl
Borgo Treviso, 6/a
31033 Castelfranco Veneto (TV)
www.solovalori.com
mail: fabrizio@solovalori.com
cell: 393 1710719 Fabrizio --- annuncio pubblicato con GESTIONALEIMMOBILIARE.it
RIFERIMENTO ANNUNCIO
gestimm-4436856
DATA ANNUNCIO
6 luglio 2025
DATA ULTIMO AGGIORNAMENTO
6 luglio 2025
CONTRATTO
Affitto
TIPOLOGIA
Magazzino
SUPERFICIE
6000 m²
PIANO
Non disponibile
TIPO PROPRIETA'
Standard
ALTRE CARATTERISTICHE'
soffitta / mansarda
cantina
garage
cucina presente
cucina abitabile
stato di manutenzione nuovo
nuova costruzione
impianto di antincendio
taverna
Costi
Non specificato
al mese
Anno di costruzione
2025
Classe energetica
NON SOGGETTO A CERTIFICAZIONE
a+
a
b
c
d
e
f
g
Mappa della zona dell'immobile
Ingrandisci mappa
Segnala un problema
Servizi per te
Inserzionista
SOLO VALORI srl
Vai al sito web
Codice annuncio:
4436856
Mostra numero
Tel: 0423492558
Invia email
Motivo contatto
Appuntamento
Più informazioni
Richiesta di contatto
Più foto e materiali
Nome e cognome*
Email*
Cellulare
Messaggio*
ATTENZIONE ALLE TRUFFE
NON ANTICIPARE MAI denaro su carte ricaricabili, conti correnti esteri, money transfer o altri sistemi di pagamento
Accettazione*
Ho letto, sono maggiorenne e accetto
condizioni
,
privacy
e
Consigli antitruffa
Invia
Chiama
Contatta
Visita
Richiedi visita
Scopri subito quanto vale la tua casa per l'affitto o per la vendita!
Valuta gratis
Altri annunci simili
a
a
a
a
a
a
Annunci immobiliari nella stessa zona
Comune di Noventa Di Piave:
Affitto Magazzini Noventa Di Piave
|
Agenzie immobiliari Noventa Di Piave
|
Provincia di Venezia:
Affitto Magazzini Venezia
|
Agenzie immobiliari Venezia
|
Email
Password
Ricordami
Registrati adesso
Sei una agenzia?
Password dimenticata?