ioaffitto.it TROVA casa. VIVI SEMPLICE.
Nuova ricerca
Pubblica annuncio
Annunci sponsorizzati
Agenzie
Valutazione-immobile
Servizi
Luce Gas Fibra
Mutui
Finanziamenti
Ricerca Internazionale
Servizi web
Servizio partecipazione asta
Pubblica annuncio
Accedi
1/2
2/2
2
Foto
0
planimetria
Negozio in affitto in VIA ROMA a Forli'
Non specificato
al mese
4
locali
3
bagni
1000
mq
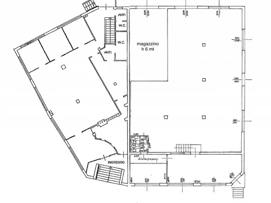
A Forlì, adiacente la zona Ronco, su strada di forte passaggio, affittiamo negozio di totali 1.000 mq commerciali 10 posti auto esclusivi.
L'immobile si presenta in ottime condizioni, con luminose vetrine, tutti impianti a norma e composta da:
- a piano terra rialzato 600 mq
- magazzino di 60 mq con altezza 6 mt
- in piano interrato 325 mq
per info Roberto 3486440700
SONO SPECIALIZZATO IN IMMOBILI COMMERCIALI
--- capannoni, uffici, negozi ma anche attività attive o inattive ---
Chiamatemi direttamente per sottoporvi panoramica di immobili idonei.
Oppure scrivetemi a info@passeriniimmobiliare.com le seguenti informazioni:
- attività o uso che si intende svolgere
- tipologia di immobile
- mq necessari di interno specificando quanti uffici e altri vani
- mq di esterno se necessari (corte privata o fronte strada di passaggio..)
- zona ideale
- budget massimo disponibile
Vi contatterò quanto prima con una panoramica di proposte
Grazie
Ape D --- annuncio pubblicato con GESTIONALEIMMOBILIARE.it
RIFERIMENTO ANNUNCIO
gestimm-4456528
DATA ANNUNCIO
7 aprile 2025
DATA ULTIMO AGGIORNAMENTO
7 aprile 2025
CONTRATTO
Affitto
TIPOLOGIA
Negozio
SUPERFICIE
1000 m²
locali
4
PIANO
Non disponibile
TIPO PROPRIETA'
Standard
ALTRE CARATTERISTICHE'
aria condizionata
soffitta / mansarda
cantina
garage
riscaldamento autonomo
cucina presente
cucina abitabile
stato di manutenzione ottimo
taverna
Costi
Non specificato
al mese
Classe energetica
D
a+
a
b
c
d
e
f
g
Mappa della zona dell'immobile
Ingrandisci mappa
Segnala un problema
Servizi per te
Inserzionista
PASSERINI IMMOBILIARE
Gabriele Passerini
Vai al sito web
Codice annuncio:
4456528
Mostra numero
Tel: 0547/24743
Invia email
Motivo contatto
Appuntamento
Più informazioni
Richiesta di contatto
Più foto e materiali
Nome e cognome*
Email*
Cellulare
Messaggio*
ATTENZIONE ALLE TRUFFE
NON ANTICIPARE MAI denaro su carte ricaricabili, conti correnti esteri, money transfer o altri sistemi di pagamento
Accettazione*
Ho letto, sono maggiorenne e accetto
condizioni
,
privacy
e
Consigli antitruffa
Invia
Chiama
Contatta
Visita
Richiedi visita
Scopri subito quanto vale la tua casa per l'affitto o per la vendita!
Valuta gratis
Altri annunci simili
Negozio in vendita in VIALE DELLA LIBERTA a Forli'
A Forlì in zona stazione, in complesso direzionale, vendiamo negozio di 120 mq e con comodo parch...
1
locali
120 ㎡
superficie
1
bagni
Negozio in vendita in VIALE ROMA a Forli'
A Forlì, su strada principale di fortissimo passaggio, vendiamo negozio showroom di totali 1.200 ...
4
locali
1100 ㎡
superficie
3
bagni
Negozio in affitto in VIALE VITTORIO VENETO a Forli'
A Forlì zona Ronco su strada di forte passaggio, affittiamo negozio di 200 mq con 4 luminose vetr...
4
locali
200 ㎡
superficie
2
bagni
Negozio in vendita in VIA GIOVANNI PASCOLI a Forli'
A Forlì in zona stazione, in complesso direzionale, vendiamo negozio semigrezzo di 600 mq su 2 li...
4
locali
600 ㎡
superficie
3
bagni
Negozio in affitto in VIA ROMA a Forli'
A Forlì, adiacente la zona Ronco, su strada di forte passaggio, affittiamo negozio di 450 mq comm...
4
locali
450 ㎡
superficie
3
bagni
Negozio in vendita in CORSO REPUBBLICA a Forli'
A Forlì adiacente Corso della Repubblica, vendiamo immobile ristorante di circa 200 mq su 2 livel...
4
locali
200 ㎡
superficie
3
bagni
Annunci immobiliari nella stessa zona
Comune di Forli':
Affitto Attività/immobili commerciali Forli'
|
Affitto Negozi Forli'
|
Agenzie immobiliari Forli'
|
Provincia di Forlì-Cesena:
Affitto Attività/immobili commerciali Forlì-Cesena
|
Affitto Negozi Forlì-Cesena
|
Agenzie immobiliari Forlì-Cesena
|
Email
Password
Ricordami
Registrati adesso
Sei una agenzia?
Password dimenticata?