ioaffitto.it TROVA casa. VIVI SEMPLICE.
Logo
1/1
Immagine 1 di Terreno in vendita  a Curtarolo
Icona foto1 Foto     Icona planimetrie 0 planimetria

Terreno in vendita a Curtarolo

€ 176.000,00
prezzo di vendita
-
locali
-
bagni
897
mq
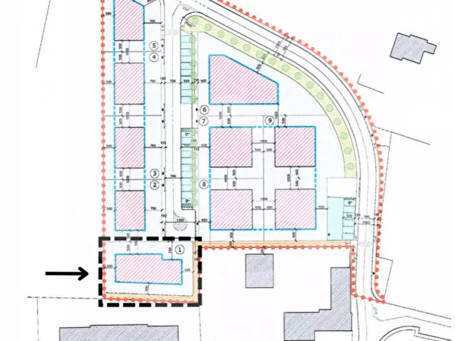
Scoprite un'opportunità unica per investire nel futuro! Vi proponiamo un lotto edificabile con superficie di mq 897 e mc edificabili 1600, già urbanizzato, situato nel comune di Curtarolo, una zona emergente e altamente desiderata. Questo terreno offre la possibilità di costruire un piccolo condominio, rendendolo ideale per investitori immobiliari.

Situato all'interno di un nuovo quartiere residenziale già parzialmente edificato, il lotto si trova in posizione strategica: comodo al centro del paese e nelle immediate vicinanze delle scuole locali. Inoltre, è facilmente accessibile dalla SS47 Padova-Bassano, che connette con le principali vie di comunicazione della regione.

Non lasciatevi sfuggire questa occasione imperdibile! Contattateci subito presso la nostra agenzia di Camposampiero al 0499302542 per maggiori informazioni e organizzare una visita. --- annuncio pubblicato con GESTIONALEIMMOBILIARE.it
RIFERIMENTO ANNUNCIO
gestimm-4526501
DATA ANNUNCIO
27 maggio 2025
DATA ULTIMO AGGIORNAMENTO
27 maggio 2025
CONTRATTO
Vendita
TIPOLOGIA
Terreno
SUPERFICIE
897 m²
TIPO PROPRIETA'
Standard
ALTRE CARATTERISTICHE'
soffitta / mansarda cantina garage cucina presente cucina abitabile taverna
Costi
€ 176.000,00
prezzo di vendita
Classe energetica NON SOGGETTO A CERTIFICAZIONE
a+ a b c d e f g
Mappa della zona dell'immobile

Calcola il mutuo

Inserisci i dati mutuo

Rata del mutuo
Al mese
Anticipo
Mutuo
Richiedi consulenza gratuita mutuo

Servizio erogato tramite  

Servizi per te
Inserzionista
Logo Epos Casa Camposampiero
Epos Casa Camposampiero
Massimo Filippi

Codice annuncio: 4526501

Invia email
ATTENZIONE ALLE TRUFFE
 
NON ANTICIPARE MAI denaro su carte ricaricabili, conti correnti esteri, money transfer o altri sistemi di pagamento

Scopri subito quanto vale la tua casa per l'affitto o per la vendita!

   

Altri annunci simili

Terreno in vendita in Via Trieste a Piazzola Sul Brenta
Hai sempre sognato di costruire la tua casa perfetta in una zona tranquilla e ben collegata? Que...
€ 160.000
1105 ㎡
superficie
Terreno in vendita in Via Olivetti a Piazzola Sul Brenta
PIAZZOLA SUL BRENTA- rif.C1MIC - Per info 3473209826 - terreno EDIFICABILE ubicato in zona indust...
€ 180.000
2000 ㎡
superficie
Terreno in vendita a Villafranca Padovana
VILLAFRANCA PADOVANA: PROPONIAMO DUE LOTTI DI TERRENO DI CIRCA 2.200 MQ L'UNO, GIÀ LOTTIZZATI, SU...
€ 170.000
2200 ㎡
superficie
Terreno in vendita in Via Dell'Ostiglia a Piazzola Sul Brenta
Piazzola sul Brenta, a 600 mt. dal centro paese proponiamo in vendita LOTTI di terreno RESIDENZIA...
€ 160.000
1220 ㎡
superficie
Terreno in vendita a San Giorgio In Bosco
Situato nella frazione di Paviola, terreno edificabile di 1195 mq. con possibilità di costruire 1...
€ 180.000
1195 ㎡
superficie
Terreno in vendita a Santa Giustina In Colle
SANTA GIUSTINA IN COLLE - Fratte, in quartiere residenziale proponiamo lotto di terreno di 1.279 ...
€ 165.000
1279 ㎡
superficie