ioaffitto.it TROVA casa. VIVI SEMPLICE.
Nuova ricerca
Pubblica annuncio
Annunci sponsorizzati
Agenzie
Valutazione-immobile
Servizi
Luce Gas Fibra
Mutui
Finanziamenti
Ricerca Internazionale
Servizi web
Servizio partecipazione asta
Pubblica annuncio
Accedi
1/14
2/14
3/14
4/14
5/14
6/14
7/14
8/14
9/14
10/14
11/14
12/14
13/14
14/14
14
Foto
0
planimetria
Negozio in affitto a Stra
€ 680,00
al mese
-
locali
-
bagni
80
mq
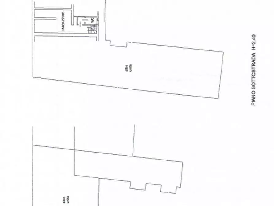
Scopri questa incredibile opportunità di affitto nel cuore di Stra, situato in una zona ad alto passaggio veicolare e pedonale. Questo spazio fronte strada di circa 50 mq è perfetto per dare visibilità al tuo business grazie alla sua ampia vetrina che garantisce un'ottima esposizione.
Ristrutturato, l'immobile presenta un open-space luminoso ideale come showroom o ufficio professionale. Completano la proprietà un servizio finestrato.
Inoltre, il locale offre ulteriori 30 mq circa di magazzino al piano interrato con soffitto a volta, fornendo uno spazio extra utile per stoccare materiali o prodotti senza compromettere l'estetica del tuo lavoro frontale.
Il riscaldamento e il raffrescamento sono gestiti tramite pompa di calore, assicurando ambienti accoglienti durante tutto l'anno.
Situata vicino ai servizi principali e facilmente raggiungibile anche con i mezzi pubblici.
Non perdere quest’occasione! Il canone mensile è fissato a € 680,00.
Contattaci oggi stesso presso la nostra agenzia immobiliare per organizzare una visita ed esplorare tutte le potenzialità che questo spazio ha da offrire! --- annuncio pubblicato con GESTIONALEIMMOBILIARE.it
RIFERIMENTO ANNUNCIO
gestimm-4531302
DATA ANNUNCIO
4 giugno 2025
DATA ULTIMO AGGIORNAMENTO
4 giugno 2025
CONTRATTO
Affitto
TIPOLOGIA
Negozio
SUPERFICIE
80 m²
PIANO
Non disponibile
TIPO PROPRIETA'
Standard
ALTRE CARATTERISTICHE'
soffitta / mansarda
cantina
ingresso indipendente
garage
cucina presente
cucina abitabile
ristrutturato
taverna
Costi
€ 680,00
al mese
Classe energetica
IN CORSO DI VALUTAZIONE
a+
a
b
c
d
e
f
g
Mappa della zona dell'immobile
Ingrandisci mappa
Segnala un problema
Servizi per te
Inserzionista
Giardini immobiliare di Giraldo MariaLetizia
MariaLetizia Giraldo
Codice annuncio:
4531302
Mostra numero
Tel: 3489256528
Invia email
Motivo contatto
Appuntamento
Più informazioni
Richiesta di contatto
Più foto e materiali
Nome e cognome*
Email*
Cellulare
Messaggio*
ATTENZIONE ALLE TRUFFE
NON ANTICIPARE MAI denaro su carte ricaricabili, conti correnti esteri, money transfer o altri sistemi di pagamento
Accettazione*
Ho letto, sono maggiorenne e accetto
condizioni
,
privacy
e
Consigli antitruffa
Invia
Chiama
Contatta
Visita
Richiedi visita
Scopri subito quanto vale la tua casa per l'affitto o per la vendita!
Valuta gratis
Altri annunci simili
Negozio in affitto in Via Chiesa a Stra
SAN PIETRO DI STRA' Negozio al piano terra con accesso indipendente, dotato di ampio parcheggio r...
€ 700
100 ㎡
superficie
Negozio in affitto in Via Venezia a Vigonza
Riferimento per l'Agenzia AN0349 VIGONZA Zona Capriccio. Negozio adatto anche come ufficio o maga...
€ 700
100 ㎡
superficie
Negozio in affitto in via veneto a Vigonovo
Scopri questa straordinaria opportunità commerciale situata nel centro di Vigonovo, proprio di fr...
€ 700
45 ㎡
superficie
Negozio in affitto a Vigonovo
Scopri un'opportunità unica per avviare la tua attività commerciale! In affitto, negozio open spa...
€ 650
1
locali
52 ㎡
superficie
1
bagni
Negozio in affitto in VIA VIGONOVESE 1 a Padova
RIF: 017NM - PADOVA - PER INFO 0444/310220 Propongo in affitto un negozio di 50 mq nella per...
€ 500
50 ㎡
superficie
Negozio in affitto a Vigonza
Busa di Vigonza affittasi negozio di circa 60 mq. con posto auto privato. Una vetrina. Canone 70...
€ 700
1
locali
60 ㎡
superficie
1
bagni
Annunci immobiliari nella stessa zona
Comune di Stra:
Affitto Attività/immobili commerciali Stra
|
Affitto Negozi Stra
|
Agenzie immobiliari Stra
|
Provincia di Venezia:
Affitto Attività/immobili commerciali Venezia
|
Affitto Negozi Venezia
|
Agenzie immobiliari Venezia
|
Email
Password
Ricordami
Registrati adesso
Sei una agenzia?
Password dimenticata?