ioaffitto.it TROVA casa. VIVI SEMPLICE.
Logo
1/1
Immagine 1 di Appartamento in vendita  in via Roma a Masera' Di Padova
Icona foto1 Foto     Icona planimetrie 0 planimetria

Appartamento in vendita in via Roma a Masera' Di Padova

€ 230.000,00
prezzo di vendita
3
locali
1
bagni
108
mq
Benvenuti in un appartamento dove ogni ambiente è stato pensato per offrire il massimo del comfort e dello stile.
L’unità che vi presentiamo oggi, situata al primo piano di una moderna palazzina di sole cinque unità, è una casa luminosa e funzionale, ideale per chi cerca ampi spazi, design contemporaneo e qualità abitativa.

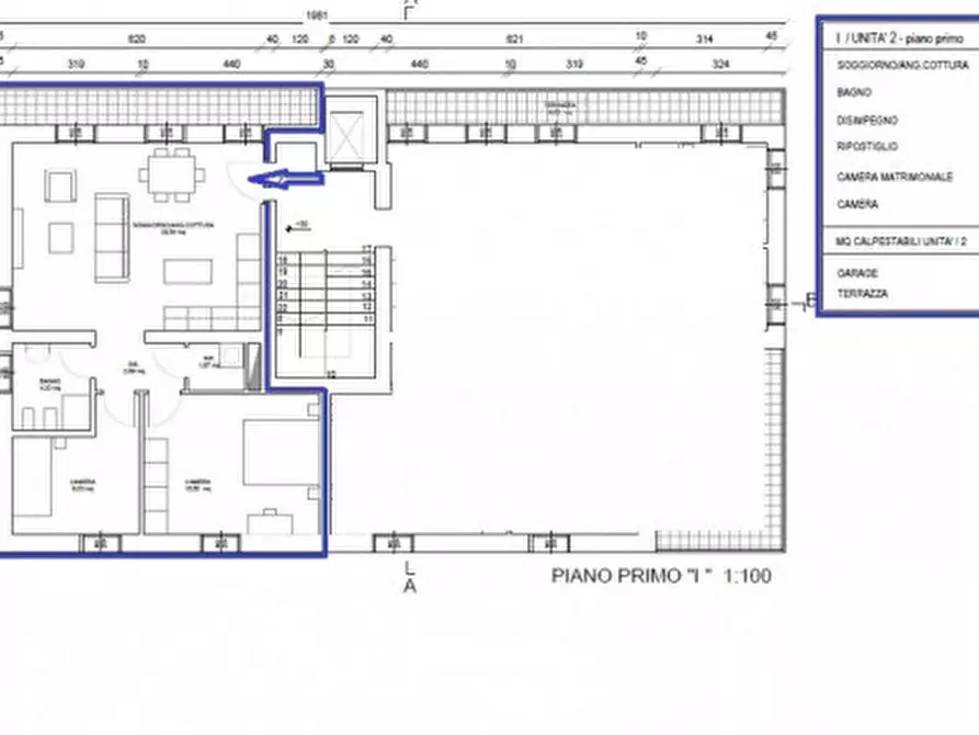
L’ingresso si apre su una zona giorno generosa di circa 30 mq, un ambiente accogliente e versatile che rappresenta il cuore pulsante della casa. Qui la luce naturale entra abbondante, valorizzando ogni angolo e rendendo lo spazio perfetto sia per la vita quotidiana che per momenti di convivialità.

Il vero punto di forza di questa abitazione è la splendida terrazza di circa 28 mq: un ambiente anche semi coperto, spazioso e riservato, ideale per pranzi, cene e momenti di relax immersi nella cornice colorata dei Colli Euganei al tramonto.

Un pratico disimpegno e un comodo ripostiglio assicurano ordine e funzionalità, collegando la zona giorno alla parte più riservata dell’abitazione.

La zona notte è ben distribuita e pensata per garantire tranquillità e privacy. La camera matrimoniale, ampia e silenziosa, è affiancata da una camera singola aggiuntiva, perfetta per i figli, come studio o stanza ospiti. Completano la zona notte il bagno, moderno e ben proporzionato, ideale per soddisfare le esigenze di tutta la famiglia.

A completare l’offerta c'è il garage privato di circa 18 mq al piano terra. Volendo si possono aggiungere anche uno o più posti auto privati, che offrono ulteriore praticità e spazio aggiuntivo per le seconde auto. Inoltre, le finiture interne sono completamente personalizzabili, per permetterti di modellare ogni dettaglio secondo i tuoi gusti e il tuo stile di vita.

Perché scegliere questo nuovo appartamento:

- Classe energetica A4, il massimo in termini di efficienza e risparmio energetico

- Riscaldamento a pavimento per un comfort uniforme in ogni stagione

- Ventilazione meccanica controllata con telecomando per ogni stanza, per avere sempre aria pulita e salubre

- Pompa di calore gestibile da remoto, per il controllo totale anche a distanza

- Impianto fotovoltaico per ridurre i consumi e le spese di tutti i giorni

- Detrazioni fiscali sul garage, con recuperi fino a 11-12.000 euro

- Tecnologie all’avanguardia e materiali di nuova generazione, nessuna spesa imprevista per anni

- Bollette più leggere e manutenzione ridotta al minimo, massimo valore al tuo investimento

Chiama il numero verde 800 693 223
Per tutte le nostre proposte, visita il sito Vela Immobiliare
Se hai un immobile che vuoi vendere a Padova e provincia e ti interessa avere una stima professionale, contattaci tramite Stimapro
Ricordati anche di seguirci sui nostri canali social mettendo "Like" alle pagine Gruppo Vela Servizi Immobiliari --- annuncio pubblicato con GESTIONALEIMMOBILIARE.it
RIFERIMENTO ANNUNCIO
gestimm-4557392
DATA ANNUNCIO
2 luglio 2025
DATA ULTIMO AGGIORNAMENTO
2 luglio 2025
CONTRATTO
Vendita
TIPOLOGIA
Appartamento
SUPERFICIE
108 m²
locali
3
PIANO
1
TOTALE PIANI EDIFICIO
3
TIPO PROPRIETA'
Standard
ALTRE CARATTERISTICHE'
soffitta / mansarda cantina impianto elettrico presente e a norma impianto fotovoltaico garage giardino comunale riscaldamento autonomo riscaldamento a pavimento cucina presente cucina abitabile cucina angolo cottura ascensore stato di manutenzione nuovo adsl nuova costruzione posto auto immobile di prestigio taverna
Costi
€ 230.000,00
prezzo di vendita
Anno di costruzione
2025
Classe energetica A4 31.85 kWh/m2anno
a+ a b c d e f g
Mappa della zona dell'immobile

Calcola il mutuo

Inserisci i dati mutuo

Rata del mutuo
Al mese
Anticipo
Mutuo
Richiedi consulenza gratuita mutuo

Servizio erogato tramite  

Servizi per te
Inserzionista
Logo VELE 5 Srl
VELE 5 Srl
Luca Vernuccio

Codice annuncio: 4557392

Invia email
ATTENZIONE ALLE TRUFFE
 
NON ANTICIPARE MAI denaro su carte ricaricabili, conti correnti esteri, money transfer o altri sistemi di pagamento

Scopri subito quanto vale la tua casa per l'affitto o per la vendita!

   

Altri annunci simili

Appartamento in vendita in via Roma a Masera' Di Padova
Stai cercando un appartamento con giardino in un quartiere tranquillo di Maserà, che abbia però l...
€ 212.000
3
locali
118 ㎡
superficie
1
bagni
Appartamento in vendita in Via Marinetti a Masera' Di Padova
In un moderno contesto residenziale di sole 8 unità, nasce questo splendido appartamento al piano...
€ 212.000
3
locali
75 ㎡
superficie
1
bagni
Appartamento in vendita in Via Martinetti a Masera' Di Padova
Nel cuore di Maserà di Padova, in posizione centralissima ma riservata, nasce una nuova residenza...
€ 240.000
3
locali
157 ㎡
superficie
2
bagni
Appartamento in vendita in Via Conselvana a Masera' Di Padova
Maserà di Padova, sito in centro al paese e comodo a tutti i servizi, scuole, parchi, supermercat...
€ 245.000
4
locali
130 ㎡
superficie
2
bagni
Appartamento in vendita in Via Padova a Albignasego
ALBIGNASEGO San Lorenzo in complesso centralissimo ma tranquillo e silenzioso, con ampi spazi ver...
€ 250.000
3
locali
100 ㎡
superficie
2
bagni
Appartamento in vendita in via ferroviere a Casalserugo
CASALSERUGO, proponiamo in vendita appartamento con tre camere su unico livello. Situata al primo...
€ 240.000
5
locali
138 ㎡
superficie
2
bagni