ioaffitto.it TROVA casa. VIVI SEMPLICE.
Nuova ricerca
Pubblica annuncio
Annunci sponsorizzati
Agenzie
Valutazione-immobile
Servizi
Luce Gas Fibra
Mutui
Finanziamenti
Ricerca Internazionale
Servizi web
Servizio partecipazione asta
Pubblica annuncio
Accedi
Nuovo
1/9
2/9
3/9
4/9
5/9
6/9
7/9
8/9
9/9
9
Foto
0
planimetria
Capannone industriale in affitto in Via dei Fabbri 26 a Livorno
€ 3.800,00
al mese
-
locali
2
bagni
440
mq
PER QUESTO ANNUNCIO CONTATTARE IL 388 4371046.
IL CANONE E' SOGGETTO A IVA.
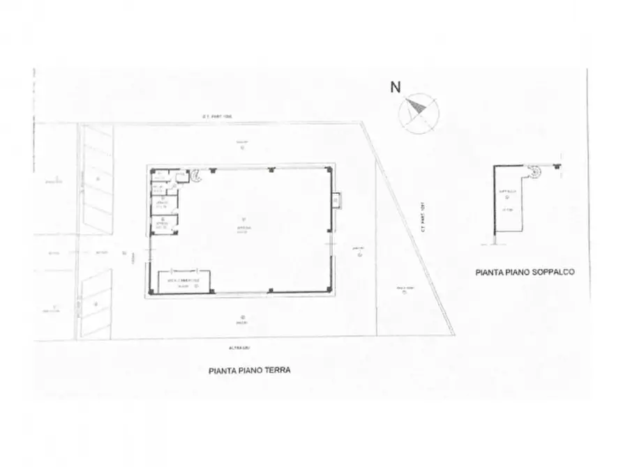
Proponiamo in affitto un capannone recentemente costruito, situato in una strategica zona artigianale/commerciale, a pochi minuti dall’accesso autostradale. L’immobile si presenta in ottimo stato di conservazione, sia esternamente che internamente, pronto all’uso senza necessità di interventi.
Caratteristiche principali:
- Superficie interna: 440 mq
- Area esterna: 1.000 mq, completamente recintata e facilmente accessibile, ampia disponibilità di parcheggio
- Altezza interna: 5 metri
- Doppio ingresso carrabile: uno frontale e uno sul retro, che agevolano il transito e la logistica
- Destinazione attuale: autofficina, ma facilmente adattabile ad altre attività produttive o commerciali
- Zona uffici dedicata, con soppalco sovrastante utile come archivio, magazzino o ulteriore spazio operativo
- Impianti a norma di legge, pronti per l’attività
Questa soluzione rappresenta un’ottima opportunità per imprese che cercano uno spazio funzionale, ben collegato e in perfette condizioni operative. --- annuncio pubblicato con GESTIONALEIMMOBILIARE.it
RIFERIMENTO ANNUNCIO
gestimm-4640034
DATA ANNUNCIO
9 febbraio 2026
DATA ULTIMO AGGIORNAMENTO
9 febbraio 2026
CONTRATTO
Affitto
TIPOLOGIA
Capannone industriale
SUPERFICIE
440 m²
PIANO
Non disponibile
TIPO PROPRIETA'
Standard
ALTRE CARATTERISTICHE'
soffitta / mansarda
cantina
impianto elettrico presente e a norma
garage
cucina presente
cucina abitabile
stato di manutenzione ottimo
taverna
Costi
€ 3.800,00
al mese
Anno di costruzione
2002
Classe energetica
IN CORSO DI VALUTAZIONE
a+
a
b
c
d
e
f
g
Mappa della zona dell'immobile
Ingrandisci mappa
Segnala un problema
Servizi per te
Inserzionista
Studio Immobiliare Mei s.r.l.
Simone Nicolini
Vai al sito web
Codice annuncio:
4640034
Mostra numero
Tel: 0586219223
Invia email
Motivo contatto
Appuntamento
Più informazioni
Richiesta di contatto
Più foto e materiali
Nome e cognome*
Email*
Cellulare
Messaggio*
ATTENZIONE ALLE TRUFFE
NON ANTICIPARE MAI denaro su carte ricaricabili, conti correnti esteri, money transfer o altri sistemi di pagamento
Accettazione*
Ho letto, sono maggiorenne e accetto
condizioni
,
privacy
e
Consigli antitruffa
Invia
Chiama
Contatta
Visita
Richiedi visita
Scopri subito quanto vale la tua casa per l'affitto o per la vendita!
Valuta gratis
Altri annunci simili
a
a
a
a
a
a
Annunci immobiliari nella stessa zona
Comune di Livorno:
Affitto Attività/immobili commerciali Livorno
|
Affitto Capannoni industriali Livorno
|
Agenzie immobiliari Livorno
|
Provincia di Livorno:
Affitto Attività/immobili commerciali Livorno
|
Affitto Capannoni industriali Livorno
|
Agenzie immobiliari Livorno
|
Email
Password
Ricordami
Registrati adesso
Sei una agenzia?
Password dimenticata?