ioaffitto.it TROVA casa. VIVI SEMPLICE.
Nuova ricerca
Pubblica annuncio
Annunci sponsorizzati
Agenzie
Valutazione-immobile
Servizi
Luce Gas Fibra
Mutui
Finanziamenti
Ricerca Internazionale
Servizi web
Servizio partecipazione asta
Pubblica annuncio
Accedi
Nuovo
1/5
2/5
3/5
4/5
5/5
5
Foto
0
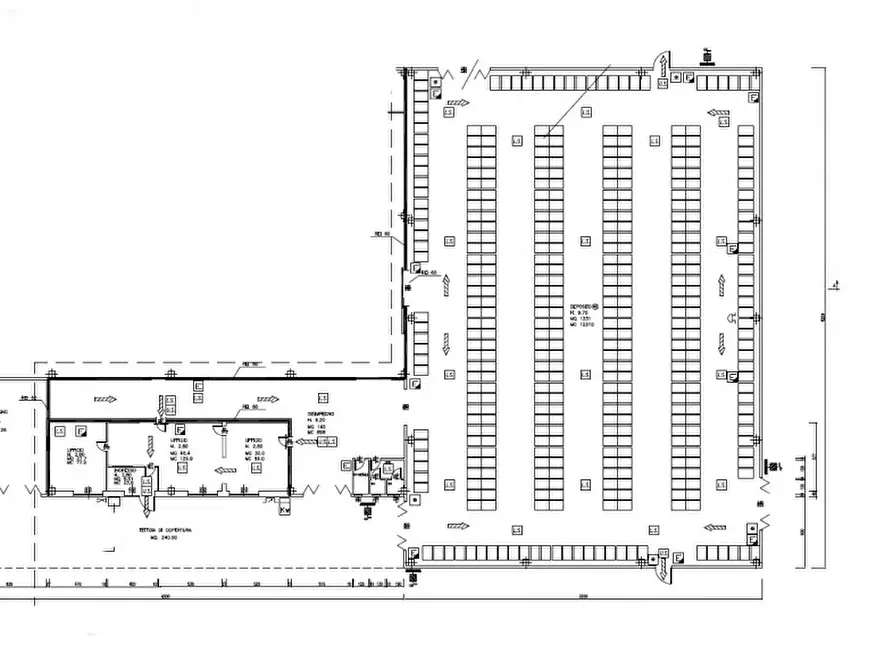
planimetria
Capannone industriale in affitto in Riviera Francia a Padova
€ 8.500,00
al mese
-
locali
-
bagni
1700
mq
Riferimento per l'Agenzia AC0984 PADOVA Zona Industriale Est. Proponiamo in locazione un ampia porzione di capannone di circa 1.700 mq situato in una delle aree più richieste e servite della città grazie alla vicinanza alle principali arterie stradali e autostradali, ideale per attività logistiche, produttive o di stoccaggio.
La struttura si presenta in ottime condizioni generali: il capannone è dotato di pavimentazione industriale resistente al traffico pesante e dispone già di scaffalature metalliche su più livelli che consentono uno sfruttamento razionale degli spazi interni.
L’ambiente gode inoltre di grande luminosità naturale grazie ai numerosi lucernari presenti sulla copertura a volta.
L'altezza sotto trave è di metri 9,70.
Gli accessi sono ampi e facilitano le operazioni di carico/scarico merci anche con mezzi pesanti.
All’interno del complesso sono presenti uffici amministrativi climatizzati con ingresso indipendente, locali servizi igienici/spogliatoi ed impiantistica completa (idranti antincendio ben distribuiti lungo i corridoi). Le finiture curate garantiscono comfort sia agli operatori sia al personale amministrativo.
L’immobile rappresenta la soluzione perfetta per aziende che necessitano rapidità nei collegamenti logistici data la posizione privilegiata rispetto all’autostrada A4 Milano-Venezia, tangenziali cittadine ed importanti poli commerciali/industriali circostanti.
Per maggiori informazioni o fissare una visita senza impegno contattate subito l’agenzia referente: siamo a vostra disposizione per ogni dettaglio tecnico o organizzativo. --- annuncio pubblicato con GESTIONALEIMMOBILIARE.it
RIFERIMENTO ANNUNCIO
gestimm-4642462
DATA ANNUNCIO
4 febbraio 2026
DATA ULTIMO AGGIORNAMENTO
4 febbraio 2026
CONTRATTO
Affitto
TIPOLOGIA
Capannone industriale
SUPERFICIE
1700 m²
TOTALE PIANI EDIFICIO
1
TIPO PROPRIETA'
Standard
ALTRE CARATTERISTICHE'
soffitta / mansarda
cantina
impianto elettrico presente e a norma
garage
cucina presente
cucina abitabile
stato di manutenzione ottimo
rete locale in fibra ottica
taverna
Costi
€ 8.500,00
al mese
Classe energetica
F
113.26 kWh/m3anno
a+
a
b
c
d
e
f
g
Mappa della zona dell'immobile
Ingrandisci mappa
Segnala un problema
Servizi per te
Inserzionista
DB IMMOBILIARE DI DANIELE BENETOLLO
Daniele Benetollo
Vai al sito web
Codice annuncio:
4642462
Mostra numero
Tel: 049629238
Invia email
Motivo contatto
Appuntamento
Più informazioni
Richiesta di contatto
Più foto e materiali
Nome e cognome*
Email*
Cellulare
Messaggio*
ATTENZIONE ALLE TRUFFE
NON ANTICIPARE MAI denaro su carte ricaricabili, conti correnti esteri, money transfer o altri sistemi di pagamento
Accettazione*
Ho letto, sono maggiorenne e accetto
condizioni
,
privacy
e
Consigli antitruffa
Invia
Chiama
Contatta
Visita
Richiedi visita
Scopri subito quanto vale la tua casa per l'affitto o per la vendita!
Valuta gratis
Altri annunci simili
Capannone industriale in affitto in Riviera Francia a Padova
Riferimento per l'Agenzia AC0981 PADOVA Zona Industriale Est. In una delle aree più strategiche d...
€ 8.500
1400 ㎡
superficie
Capannone industriale in affitto in Via Messico a Padova
Nella zona industriale delle Granze di Camin (Padova), proponiamo in locazione un capannone moder...
€ 8.500
4
locali
1700 ㎡
superficie
2
bagni
Capannone industriale in affitto a Padova
Camin, Padova Magazzino Logistico già Scaffalato con 1800 posti pallet alti e con grande portata,...
€ 8.500
1700 ㎡
superficie
Capannone industriale in affitto in VIA LONGHIN 1 a Padova
RIF: 115NM - PADOVA - PER INFO: 340335 8378 - 0444310220 Propongo in AFFITTO capannone produttiv...
€ 8.500
1700 ㎡
superficie
2
bagni
Capannone industriale in affitto in Albignasego a Albignasego
Se stai cercando uno spazio versatile e strategico per la tua attività, non perdere questa opport...
€ 8.300
1672 ㎡
superficie
Capannone industriale in affitto in via pierobon a Limena
In zona industriale, comoda all'ingresso di tangenziale e autostrada, si propone porzione di capa...
€ 8.550
1900 ㎡
superficie
4
bagni
Annunci immobiliari nella stessa zona
Comune di Padova:
Affitto Attività/immobili commerciali Padova
|
Affitto Capannoni industriali Padova
|
Agenzie immobiliari Padova
|
Provincia di Padova:
Affitto Attività/immobili commerciali Padova
|
Affitto Capannoni industriali Padova
|
Agenzie immobiliari Padova
|
Email
Password
Ricordami
Registrati adesso
Sei una agenzia?
Password dimenticata?