ioaffitto.it TROVA casa. VIVI SEMPLICE.
Logo
Nuovo
1/3
Immagine 1 di Casa bifamiliare in vendita  in Via P. Paleocapa a Treviso
2/3
Immagine 2 di Casa bifamiliare in vendita  in Via P. Paleocapa a Treviso
3/3
Immagine 3 di Casa bifamiliare in vendita  in Via P. Paleocapa a Treviso
Icona foto3 Foto     Icona planimetrie 0 planimetria

Casa bifamiliare in vendita in Via P. Paleocapa a Treviso

€ 255.000,00
prezzo di vendita
8
locali
2
bagni
240
mq
Porzione di bifamiliare affiancata – Zona Ospedale, Treviso

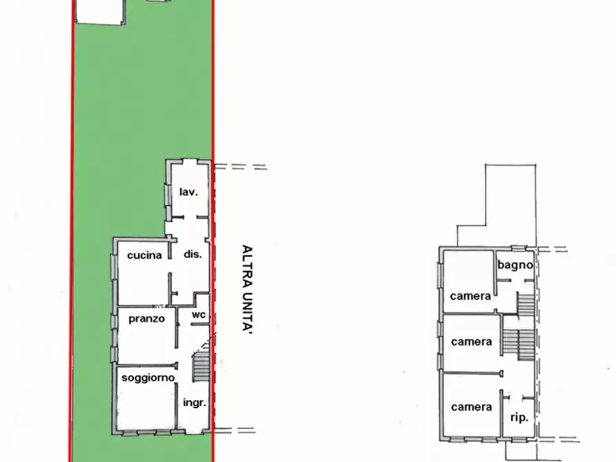
Porzione di bifamiliare degli anni ’30, regolarmente manutentata nel tempo e attualmente abitabile, sebbene necessiti di lavori di riammodernamento. L’immobile è situato in una tranquilla via residenziale della zona Ospedale, caratterizzata da abitazioni indipendenti e bifamiliari, comoda al centro di Treviso e a tutti i principali servizi (mezzi pubblici, scuole, ospedale, attività commerciali).

L’abitazione si sviluppa su due livelli per una superficie complessiva di circa 240 mq, inserita in un lotto di 360 mq.

Al piano terra si trovano l’ingresso, il soggiorno, la sala da pranzo, la cucina, un bagno di servizio, un disimpegno, la lavanderia e un locale accessorio.
Al primo piano sono presenti tre camere matrimoniali, un bagno e uno studio.

Completano la proprietà un garage, un magazzino e un ampio giardino privato disposto sui tre lati dell'abitazione dell’abitazione.

L’immobile sarà disponibile da marzo 2026 e viene ceduto con documentazione catastale e urbanistica completa.

Per maggiori dettagli e visione documentazione previo appuntamento in ufficio --- annuncio pubblicato con GESTIONALEIMMOBILIARE.it
RIFERIMENTO ANNUNCIO
gestimm-4645683
DATA ANNUNCIO
14 novembre 2025
DATA ULTIMO AGGIORNAMENTO
14 novembre 2025
CONTRATTO
Vendita
TIPOLOGIA
Casa bifamiliare
SUPERFICIE
240 m²
locali
8
PIANO
Non disponibile
TIPO PROPRIETA'
Standard
ALTRE CARATTERISTICHE'
soffitta / mansarda cantina ingresso indipendente garage giardino cucina presente cucina abitabile lavanderia da ristrutturare taverna
Costi
€ 255.000,00
prezzo di vendita
Anno di costruzione
1930
Classe energetica G
a+ a b c d e f g
Mappa della zona dell'immobile

Calcola il mutuo

Inserisci i dati mutuo

Rata del mutuo
Al mese
Anticipo
Mutuo
Richiedi consulenza gratuita mutuo

Servizio erogato tramite  

Servizi per te
Inserzionista
Logo Berno Immobiliare
Berno Immobiliare
Maurizio Berno

Codice annuncio: 4645683

Invia email
ATTENZIONE ALLE TRUFFE
 
NON ANTICIPARE MAI denaro su carte ricaricabili, conti correnti esteri, money transfer o altri sistemi di pagamento

Scopri subito quanto vale la tua casa per l'affitto o per la vendita!

   

Altri annunci simili