ioaffitto.it TROVA casa. VIVI SEMPLICE.
Nuova ricerca
Pubblica annuncio
Annunci sponsorizzati
Agenzie
Valutazione-immobile
Servizi
Luce Gas Fibra
Mutui
Finanziamenti
Ricerca Internazionale
Servizi web
Servizio partecipazione asta
Pubblica annuncio
Accedi
In affitto
/
Negozio
/
Tombolo (PD)
1 di 0
Nuovo
1/14
2/14
3/14
4/14
5/14
6/14
7/14
8/14
9/14
10/14
11/14
12/14
13/14
14/14
14
Foto
0
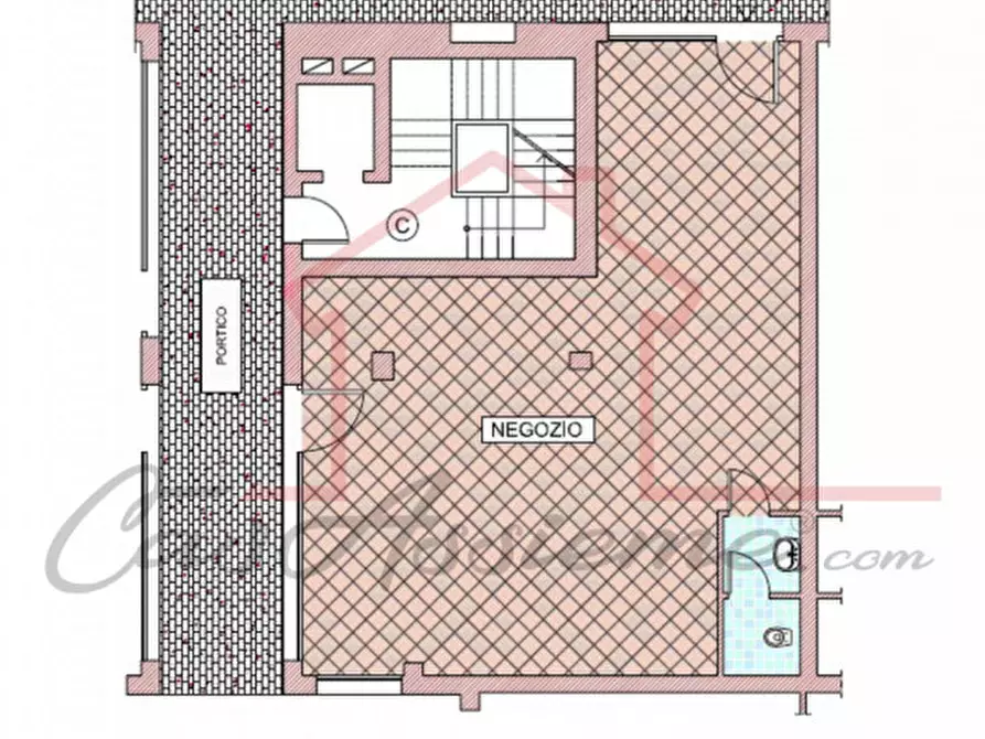
planimetria
Negozio in affitto a Tombolo
€ 950,00
al mese
-
locali
1
bagni
105
mq
Rif. VH015
In prossimità del centro di Tombolo, in una zona in fase di importante riqualificazione e all'interno di un contesto composto da molteplici attività commerciali, proponiamo in affitto negozio al Piano Terra dalle ampie metrature.
L'immobile si sviluppa su un unico livello di circa 100 mq, attualmente in un unico open-space, completo di un bagno di servizio. Dispone di DOPPIO INGRESSO con ampie vetrate che conferiscono luminosità e visibilità all'ambiente, impianto di climatizzazione, collegamento gas e canna fumaria in acciaio inox già installata, ideale per attività quali pizzerie, tavola calda, ecc...
E' presente inoltre esternamente un ampio parcheggio.
Spese condominiali circa 37 €/mese. Possibilità di ACQUISTO.
Per info e/o visite: 366 4855316
N.B.: L'indirizzo citato nel presente annuncio è puramente indicativo della zona, al fine di tutelare la privacy dei nostri Clienti. --- annuncio pubblicato con GESTIONALEIMMOBILIARE.it
RIFERIMENTO ANNUNCIO
gestimm-4699577
DATA ANNUNCIO
18 novembre 2025
DATA ULTIMO AGGIORNAMENTO
18 novembre 2025
CONTRATTO
Affitto
TIPOLOGIA
Negozio
SUPERFICIE
105 m²
TOTALE PIANI EDIFICIO
3
TIPO PROPRIETA'
Standard
ALTRE CARATTERISTICHE'
aria condizionata
soffitta / mansarda
cantina
impianto elettrico presente e a norma
ingresso indipendente
garage
cucina presente
cucina abitabile
stato di manutenzione ottimo
adsl
taverna
Costi
€ 950,00
al mese
Anno di costruzione
2007
Classe energetica
IN CORSO DI VALUTAZIONE
a+
a
b
c
d
e
f
g
Mappa della zona dell'immobile
Ingrandisci mappa
Segnala un problema
Servizi per te
Inserzionista
CasAssieme
CasAssieme di AP 2.0
Vai al sito web
Codice annuncio:
4699577
Mostra numero
Tel: 3519461797
Invia email
Motivo contatto
Appuntamento
Più informazioni
Richiesta di contatto
Più foto e materiali
Nome e cognome*
Email*
Cellulare
Messaggio*
ATTENZIONE ALLE TRUFFE
NON ANTICIPARE MAI denaro su carte ricaricabili, conti correnti esteri, money transfer o altri sistemi di pagamento
Accettazione*
Ho letto, sono maggiorenne e accetto
condizioni
,
privacy
e
Consigli antitruffa
Invia
Chiama
Contatta
Visita
Richiedi visita
Scopri subito quanto vale la tua casa per l'affitto o per la vendita!
Valuta gratis
Altri annunci simili
a
a
a
a
a
a
Annunci immobiliari nella stessa zona
Comune di Tombolo:
Affitto Attività/immobili commerciali Tombolo
|
Affitto Negozi Tombolo
|
Agenzie immobiliari Tombolo
|
Provincia di Padova:
Affitto Attività/immobili commerciali Padova
|
Affitto Negozi Padova
|
Agenzie immobiliari Padova
|
Email
Password
Ricordami
Registrati adesso
Sei una agenzia?
Password dimenticata?