ioaffitto.it TROVA casa. VIVI SEMPLICE.
Nuova ricerca
Pubblica annuncio
Annunci sponsorizzati
Agenzie
Valutazione-immobile
Servizi
Luce Gas Fibra
Mutui
Finanziamenti
Ricerca Internazionale
Servizi web
Servizio partecipazione asta
Pubblica annuncio
Accedi
Nuovo
1/10
2/10
3/10
4/10
5/10
6/10
7/10
8/10
9/10
10/10
10
Foto
0
planimetria
Ufficio in affitto in via bachelet n. 6 a Vigonza
€ 1.250,00
al mese
5
locali
1
bagni
130
mq
VIGONZA- LOCALITA' BUSA DI VIGONZA LUMINOSO UFFICIO COMPLETAMENTE RISTRUTTURATO, PRONTO DA SUBITO.
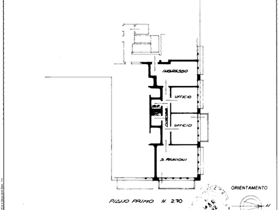
Questo ufficio si trova al piano primo di una palazzina commerciale, direzionale e residenziale di 3 piani per un totale di 42 unità. L'ufficio è stato completamente ristrutturato a nuovo è molto luminoso per la presenza di grandi vetrate. Oggi è libero e disponibile da subito.
Lo spazio interno è suddiviso in: entrata-reception, due spaziosi e luminosi locali ufficio, una comoda sala riunioni. A completare la soluzione un bagno e un ripostiglio.
nelle immediate vicinanze: Peraga, Perarolo, Cadoneghe, Mejaniga, Vigodarzere; Dolo, ponte di brenta, noventa, pianiga, Villanova --- annuncio pubblicato con GESTIONALEIMMOBILIARE.it
RIFERIMENTO ANNUNCIO
gestimm-4801600
DATA ANNUNCIO
18 dicembre 2025
DATA ULTIMO AGGIORNAMENTO
18 dicembre 2025
CONTRATTO
Affitto
TIPOLOGIA
Ufficio
SUPERFICIE
130 m²
locali
5
PIANO
1
TOTALE PIANI EDIFICIO
4
TIPO PROPRIETA'
Standard
ALTRE CARATTERISTICHE'
aria condizionata
soffitta / mansarda
cantina
impianto elettrico presente e a norma
garage
riscaldamento centralizzato
cucina presente
cucina abitabile
ascensore
stato di manutenzione ottimo
adsl
nuova costruzione
immobile di prestigio
taverna
Costi
€ 1.250,00
al mese
Anno di costruzione
1992
Classe energetica
E
155.51 kWh/m3anno
a+
a
b
c
d
e
f
g
Mappa della zona dell'immobile
Ingrandisci mappa
Segnala un problema
Servizi per te
Inserzionista
CEOLDO IMMOBILIARE SRL
ADMIN
Codice annuncio:
4801600
Mostra numero
Tel: 0498939911
Invia email
Motivo contatto
Appuntamento
Più informazioni
Richiesta di contatto
Più foto e materiali
Nome e cognome*
Email*
Cellulare
Messaggio*
ATTENZIONE ALLE TRUFFE
NON ANTICIPARE MAI denaro su carte ricaricabili, conti correnti esteri, money transfer o altri sistemi di pagamento
Accettazione*
Ho letto, sono maggiorenne e accetto
condizioni
,
privacy
e
Consigli antitruffa
Invia
Chiama
Contatta
Visita
Richiedi visita
Scopri subito quanto vale la tua casa per l'affitto o per la vendita!
Valuta gratis
Altri annunci simili
Ufficio in affitto in Via Armando Diaz a Vigonza
VIGONZA località Perarolo: Immobiliare MB propone in affitto un ufficio situato nel cuore della z...
€ 1.200
156 ㎡
superficie
2
bagni
Ufficio in affitto in VIA TITO SPERI 4 a Vigonza
VIGONZA - RIF.103BRU-FUTURAM PER INFO 0444/310220 - 392/9183796 IN CONTESTO DIREZIONALE, SI PROP...
€ 1.300
133 ㎡
superficie
1
bagni
Ufficio in affitto in PONTE DI BRENTA a Padova
PONTE DI BRENTA - Proponiamo in locazione un ufficio di circa 140 mq commerciali completamente ar...
€ 1.250
5
locali
140 ㎡
superficie
2
bagni
Ufficio in affitto in Via Venezia 85 a Vigonza
Immobile in esclusiva al Gruppo Padova MLS Situato nella tranquilla e ricercata zona di Capricci...
€ 1.150
1
locali
155 ㎡
superficie
1
bagni
Ufficio in affitto a Noventa Padovana
Noventa Strà, Ufficio Mq 90 Piano Terra Park ed Ingresso Indipendente. suddiviso in 3 Locali più ...
€ 1.200
92 ㎡
superficie
Ufficio in affitto a Vigonza
Immobile in esclusiva al Gruppo Padova MLS VIGONZA Zona Capriccio, Ufficio all'interno del Centr...
€ 1.200
1
locali
143 ㎡
superficie
1
bagni
Annunci immobiliari nella stessa zona
Comune di Vigonza:
Affitto Attività/immobili commerciali Vigonza
|
Affitto Uffici Vigonza
|
Agenzie immobiliari Vigonza
|
Provincia di Padova:
Affitto Attività/immobili commerciali Padova
|
Affitto Uffici Padova
|
Agenzie immobiliari Padova
|
Email
Password
Ricordami
Registrati adesso
Sei una agenzia?
Password dimenticata?