ioaffitto.it TROVA casa. VIVI SEMPLICE.
Inserzionista
Intersimm S.a.s di Parpajola Enrico
Scopri subito quanto vale la tua casa per l'affitto o per la vendita!
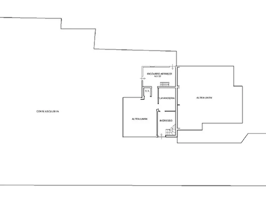
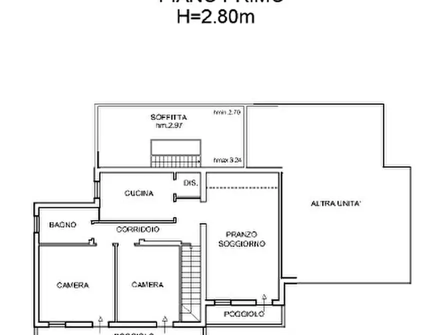
Casa bifamiliare in vendita a Rubano
**Bifamiliare indipendente con ampio giardino a Sarmeola di Rubano – eleganza, spazi e tranquilli...
€ 315.000

4
locali

298 ㎡
superficie

2
bagni
Annunci immobiliari nella stessa zona