ioaffitto.it TROVA casa. VIVI SEMPLICE.
Nuova ricerca
Pubblica annuncio
Annunci sponsorizzati
Agenzie
Valutazione-immobile
Servizi
Luce Gas Fibra
Mutui
Finanziamenti
Ricerca Internazionale
Servizi web
Servizio partecipazione asta
Pubblica annuncio
Accedi
Nuovo
1/6
2/6
3/6
4/6
5/6
6/6
6
Foto
0
planimetria
Capannone industriale in affitto in CERVIA a Cervia
€ 2.200,00
al mese
4
locali
1
bagni
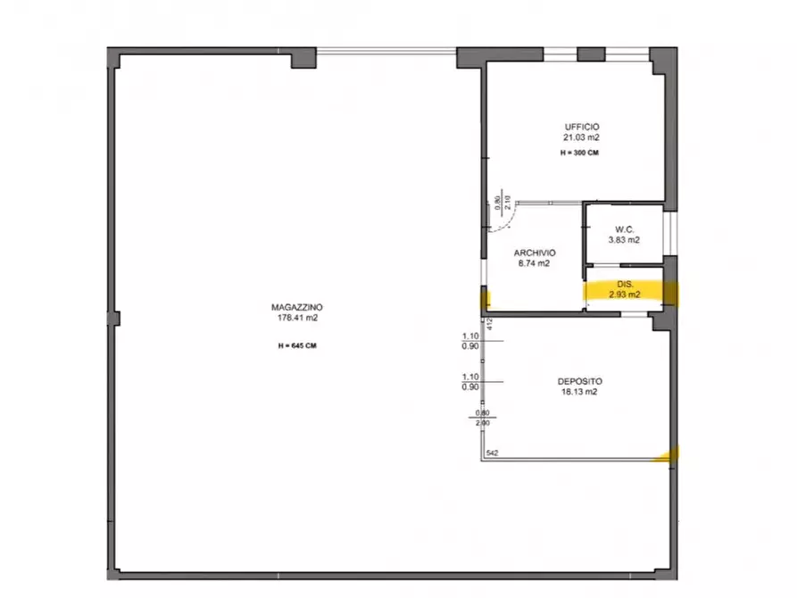
250
mq
A Cervia adiacenze centro, affittiamo capannone di 250 mq con servizi e corte recintata di 150 mq.
L'immobile si presenta in ottime condizioni, con video sorveglianza e tutti impianti a norma.
Richiesta 2.200 euro/mese e garanzia di 6 mesi
per info Roberto 3486440700
SONO SPECIALIZZATO IN IMMOBILI COMMERCIALI
--- capannoni, uffici, negozi ma anche attività attive o inattive ---
Chiamatemi direttamente per sottoporvi panoramica di immobili idonei.
Oppure scrivetemi a info@passeriniimmobiliare.com le seguenti informazioni:
- attività o uso che si intende svolgere
- tipologia di immobile
- mq necessari di interno specificando quanti uffici e altri vani
- mq di esterno se necessari (corte privata o fronte strada di passaggio..)
- zona ideale
- budget massimo disponibile
Vi contatterò quanto prima con una panoramica di proposte
Grazie
Ape D --- annuncio pubblicato con GESTIONALEIMMOBILIARE.it
RIFERIMENTO ANNUNCIO
gestimm-4833887
DATA ANNUNCIO
23 gennaio 2026
DATA ULTIMO AGGIORNAMENTO
23 gennaio 2026
CONTRATTO
Affitto
TIPOLOGIA
Capannone industriale
SUPERFICIE
250 m²
locali
4
PIANO
Non disponibile
TIPO PROPRIETA'
Standard
ALTRE CARATTERISTICHE'
aria condizionata
soffitta / mansarda
cantina
garage
riscaldamento autonomo
cucina presente
cucina abitabile
stato di manutenzione ottimo
taverna
Costi
€ 2.200,00
al mese
Classe energetica
D
a+
a
b
c
d
e
f
g
Mappa della zona dell'immobile
Ingrandisci mappa
Segnala un problema
Servizi per te
Inserzionista
PASSERINI IMMOBILIARE
Gabriele Passerini
Vai al sito web
Codice annuncio:
4833887
Mostra numero
Tel: 0547/24743
Invia email
Motivo contatto
Appuntamento
Più informazioni
Richiesta di contatto
Più foto e materiali
Nome e cognome*
Email*
Cellulare
Messaggio*
ATTENZIONE ALLE TRUFFE
NON ANTICIPARE MAI denaro su carte ricaricabili, conti correnti esteri, money transfer o altri sistemi di pagamento
Accettazione*
Ho letto, sono maggiorenne e accetto
condizioni
,
privacy
e
Consigli antitruffa
Invia
Chiama
Contatta
Visita
Richiedi visita
Scopri subito quanto vale la tua casa per l'affitto o per la vendita!
Valuta gratis
Altri annunci simili
a
a
a
a
Annunci immobiliari nella stessa zona
Comune di Cervia:
Affitto Attività/immobili commerciali Cervia
|
Affitto Capannoni industriali Cervia
|
Agenzie immobiliari Cervia
|
Provincia di Ravenna:
Affitto Attività/immobili commerciali Ravenna
|
Affitto Capannoni industriali Ravenna
|
Agenzie immobiliari Ravenna
|
Email
Password
Ricordami
Registrati adesso
Sei una agenzia?
Password dimenticata?