ioaffitto.it TROVA casa. VIVI SEMPLICE.
Logo
Nuovo
1/4
Immagine 1 di Villa in vendita  in Strada del Monte Crocetta a Vicenza
2/4
Immagine 2 di Villa in vendita  in Strada del Monte Crocetta a Vicenza
3/4
Immagine 3 di Villa in vendita  in Strada del Monte Crocetta a Vicenza
4/4
Immagine 4 di Villa in vendita  in Strada del Monte Crocetta a Vicenza
Icona foto4 Foto     Icona planimetrie 0 planimetria

Villa in vendita in Strada del Monte Crocetta a Vicenza

Non specificato
prezzo di vendita
7
locali
3
bagni
1000
mq
Nel cuore della suggestiva zona di Biron, proponiamo in vendita una magnifica villa d'epoca del '700, immersa nel verde e circondata da un contesto semi-collinare che offre tranquillità e privacy. Questa affascinante proprietà si trova a pochi passi dal centro città, rendendo facile l'accesso ai servizi principali.

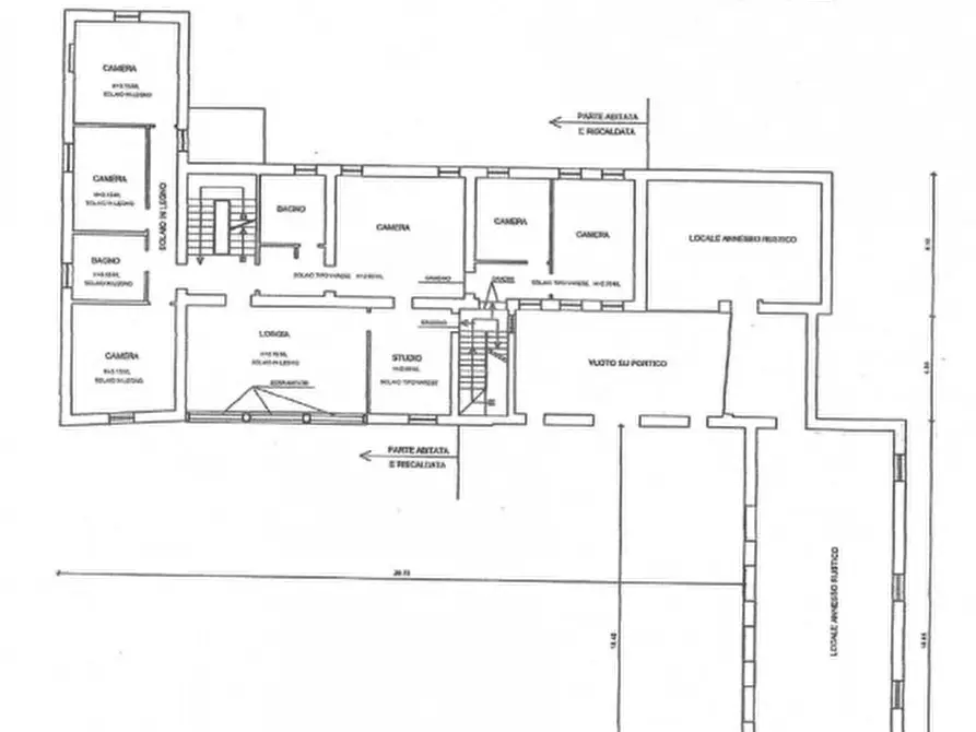
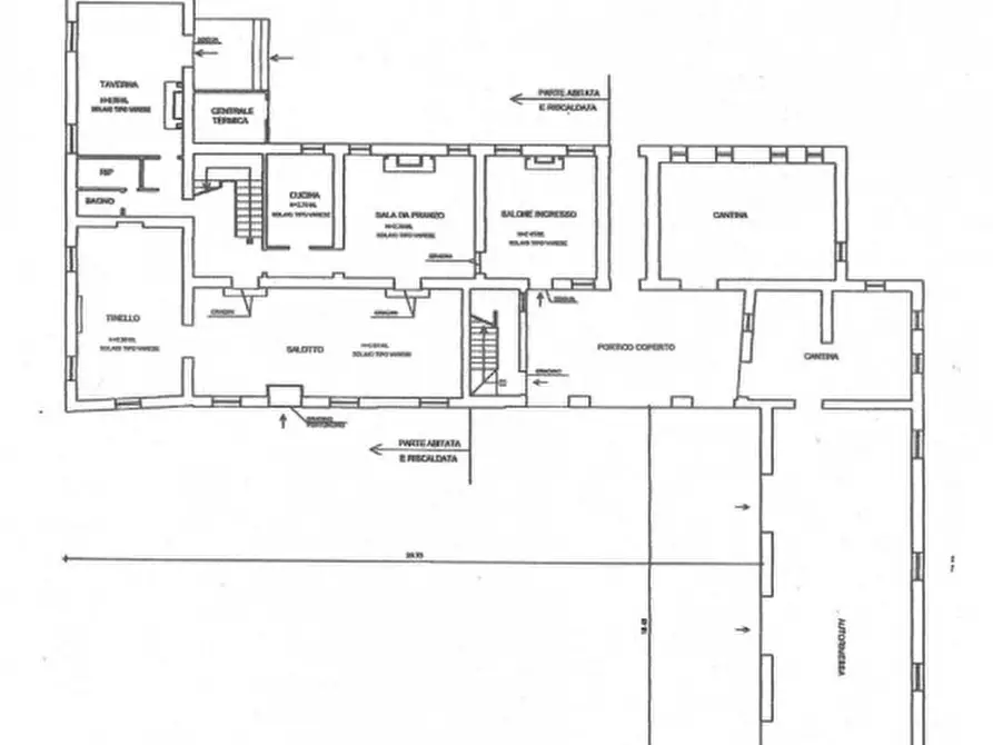
La villa è suddivisa in due unità abitative con ingressi indipendenti e impianti separati, perfetta per famiglie numerose o come investimento. La prima unità al piano terra vanta ampie zone giorno luminose, tre camere matrimoniali spaziose e tre bagni, oltre a uno studio versatile. Un'ampia taverna collegata offre ulteriori spazi abitativi insieme ad un locale cantina ben attrezzato ed un bagno aggiuntivo; il portico coperto invita al relax all'aperto.

Al primo piano troviamo la seconda unità immobiliare composta da generosi spazi giorno, quattro camere da letto confortevoli e tre servizi igienici funzionali inclusa una lavanderia dedicata. Entrambe le unità godono di una vista panoramica sulla città di Vicenza e sul verde circostante.

Il giardino privato di circa 7.000 mq ideale per gli amanti della natura! Completano la proprietà un garage spazioso capace di ospitare fino a quattro auto ed ulteriori posti auto scoperti.

Le finiture interne risalgono agli anni '80 con pavimenti pregiati in legno d’ulivo e serramenti in legno dotati di vetrocamera che conferiscono calore agli ambienti. Nel 2016 sono state installate nuove caldaie separate per ogni unità abitativa mentre gli impianti elettrici risultano già divisi; l’acqua è condivisa tra le due abitazioni ma le cantine dispongono autonomamente della rete elettrica.

Non perdere questa opportunità unica: contatta subito la nostra agenzia per maggiori informazioni o per prenotare una visita! --- annuncio pubblicato con GESTIONALEIMMOBILIARE.it
RIFERIMENTO ANNUNCIO
gestimm-4858612
DATA ANNUNCIO
23 febbraio 2026
DATA ULTIMO AGGIORNAMENTO
23 febbraio 2026
CONTRATTO
Vendita
TIPOLOGIA
Villa
SUPERFICIE
1000 m²
locali
7
PIANO
Non disponibile
TIPO PROPRIETA'
Standard
ALTRE CARATTERISTICHE'
soffitta / mansarda cantina garage giardino cucina presente cucina abitabile stato di manutenzione ottimo immobile di prestigio taverna
Costi
Non specificato
prezzo di vendita
Anno di costruzione
1800
Classe energetica IN CORSO DI VALUTAZIONE
a+ a b c d e f g
Mappa della zona dell'immobile

Calcola il mutuo

Inserisci i dati mutuo

Rata del mutuo
Al mese
Anticipo
Mutuo
Richiedi consulenza gratuita mutuo

Servizio erogato tramite  

Servizi per te
Inserzionista
Logo Palladio Re Group
Palladio Re Group
Fabio Salvadore

Codice annuncio: 4858612

Invia email
ATTENZIONE ALLE TRUFFE
 
NON ANTICIPARE MAI denaro su carte ricaricabili, conti correnti esteri, money transfer o altri sistemi di pagamento

Scopri subito quanto vale la tua casa per l'affitto o per la vendita!

   

Altri annunci simili

Annunci immobiliari nella stessa zona