ioaffitto.it TROVA casa. VIVI SEMPLICE.
Inserzionista
Codice annuncio: 21701002694
Riferimento immobile: 257
Scopri subito quanto vale la tua casa per l'affitto o per la vendita!
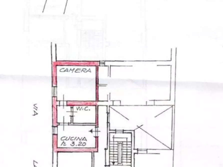
Appartamento in affitto a Verona
In Valdonega (bassa) a 5 minuti dal centro affittasi luminoso ed ampio appartamento di 140 m2:
...
€ 950

-7
locali

140 ㎡
superficie

2
bagni
Annunci immobiliari nella stessa zona