ioaffitto.it TROVA casa. VIVI SEMPLICE.
Scopri subito quanto vale la tua casa per l'affitto o per la vendita!
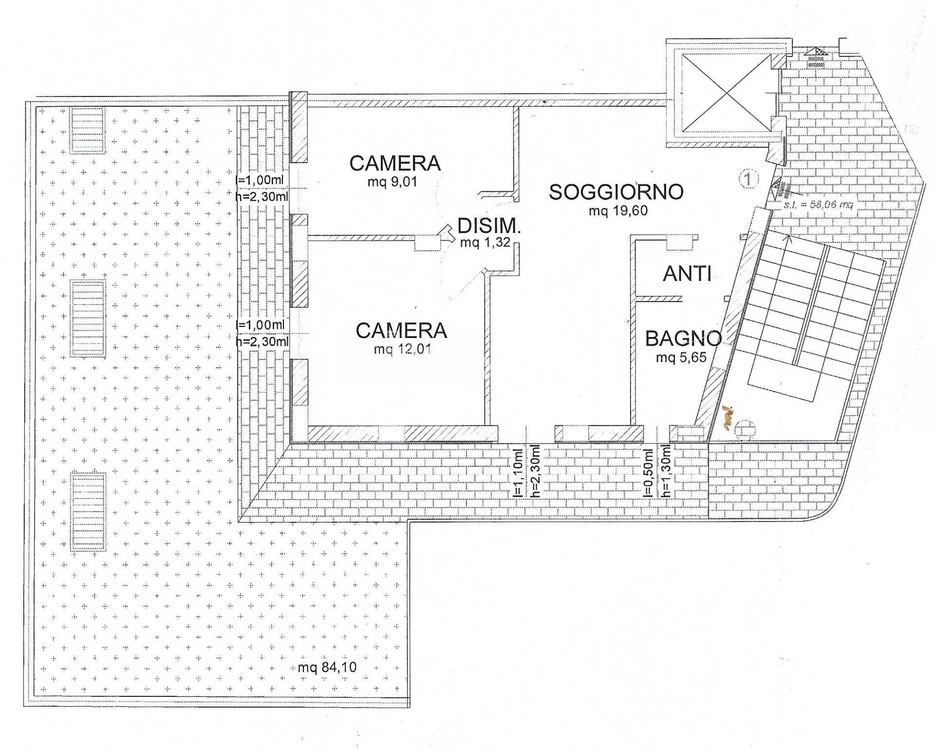
Appartamento in vendita a Massignano
Vendesi a Villa Santi di Massignano in provincia di Ascoli Piceno appartamento posto al primo pia...
€ 120.000

3
locali

77 ㎡
superficie

1
bagni
Annunci immobiliari nella stessa zona