ioaffitto.it TROVA casa. VIVI SEMPLICE.
Nuova ricerca
Pubblica annuncio
Annunci sponsorizzati
Agenzie
Valutazione-immobile
Servizi
Luce Gas Fibra
Mutui
Finanziamenti
Ricerca Internazionale
Servizi web
Pubblica annuncio
Accedi
Nuovo
1/11
2/11
3/11
4/11
5/11
6/11
7/11
8/11
9/11
10/11
11/11
11
Foto
2
planimetria
Negozio in via Delfico 18 a Milano
€ 70.000,00
prezzo di vendita
1
locali
-
bagni
37
mq
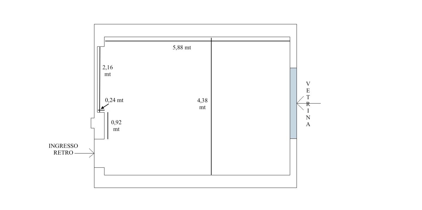
Vendesi/Affittasi negozio adiacenze via Caracciolo.
Via Delfico, proponiamo locale di 37 mq commerciali ad una luce composto da open space ed è dotato di doppio ingresso.
Il locale è in ottime condizioni. Non è provvisto di bagno, è utilizzabile quello nel cortile condominiale. Saracinesca automatica.
Libero subito.
Classe energetica G.
Prezzo per la vendita euro 70.000.
Prezzo per la locazione euro 385 oltre spese condominiali a euro 115 (compreso riscaldamento centralizzato).
Pagamenti richiesti: tre mesi di deposito cauzionale (escluse spese condominiali) e affitto mensile anticipato.
Requisiti: Redditi congruI allaffitto.
Per la valutazione del reddito verranno richiesti:
Documenti personali,
Ultimo modello CUD o UNICO
Ultime 3 buste paga.
Per le società:
Visura camerale e ultimo bilancio
Documenti personali e ultimo modello CUD o UNICO dellamministratore.
Il condominio è situato in zona residenziale con nelle immediate vicinanze supermercati, bar, ristoranti, farmacie, bar, palestre.
La zona è ben servita dai mezzi di trasporto pubblico:
- bus 78, tram 12
- tram, 14, 19, 1 a pochi minuti
- bus 90/91 a pochi minuti
- MM5 fermata Cenisio a 10 minuti a piedi
Tangenziali e autostrade raggiungibili in poco tempo.
Chiama il numero 02.37052776. Agenzia Immobiliare Sarpi, dal lunedì al venerdì dalle 9.30 alle 13 e dalle 15 alle 18.30 e il sabato dalle 9 alle 13.
RIFERIMENTO ANNUNCIO
1823
DATA ANNUNCIO
16 aprile 2026
DATA ULTIMO AGGIORNAMENTO
16 aprile 2026
CONTRATTO
Vendita o Affitto
TIPOLOGIA
Negozio
SUPERFICIE
37 m²
locali
1
TOTALE PIANI EDIFICIO
4
TIPO PROPRIETA'
Standard
ALTRE CARATTERISTICHE'
non arredato
riscaldamento centralizzato
posto auto assente
Costi
€ 70.000,00
prezzo di vendita
Stato
Eccellenti
Classe energetica
G
a+
a
b
c
d
e
f
g
Mappa della zona dell'immobile
Ingrandisci mappa
Segnala un problema
Servizi per te
Inserzionista
Sarpi Agenzia 18
Vai al sito web
Codice annuncio:
5216
Riferimento immobile:
1823
Mostra numero
Tel: 0237052776
Invia email
Motivo contatto
Appuntamento
Più informazioni
Richiesta di contatto
Più foto e materiali
Nome e cognome*
Email*
Cellulare
Messaggio*
ATTENZIONE ALLE TRUFFE
NON ANTICIPARE MAI denaro su carte ricaricabili, conti correnti esteri, money transfer o altri sistemi di pagamento
Accettazione*
Ho letto, sono maggiorenne e accetto
condizioni
,
privacy
e
Consigli antitruffa
Invia
Chiama
Contatta
Visita
Richiedi visita
Scopri subito quanto vale la tua casa per l'affitto o per la vendita!
Valuta gratis
Altri annunci simili
a
a
a
Negozio in vendita a Cologno Monzese
Asta Immobiliare Giudiziaria – Tribunale di Tribunale Ordinario di Monza Oggetto della presente v...
€ 51.000
2
locali
39 ㎡
superficie
Negozio in vendita a Cologno Monzese
Asta Immobiliare Giudiziaria – Tribunale di Tribunale Ordinario di Monza Oggetto della presente v...
€ 51.000
2
locali
39 ㎡
superficie
a
Annunci immobiliari nella stessa zona
Comune di Milano:
Agenzie immobiliari Milano
|
Provincia di Milano:
Agenzie immobiliari Milano
|
Email
Password
Ricordami
Registrati adesso
Sei una agenzia?
Password dimenticata?