ioaffitto.it TROVA casa. VIVI SEMPLICE.
Nuova ricerca
Pubblica annuncio
Annunci sponsorizzati
Agenzie
Valutazione-immobile
Servizi
Luce Gas Fibra
Mutui
Finanziamenti
Ricerca Internazionale
Servizi web
Servizio partecipazione asta
Pubblica annuncio
Accedi
Nuovo
1/7
2/7
3/7
4/7
5/7
6/7
7/7
7
Foto
1
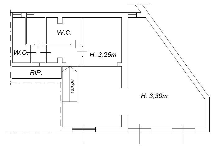
planimetria
Locale commerciale in affitto in Via Puccini a Calenzano
€ 1.400,00
al mese
3
locali
2
bagni
130
mq
Via Puccini, proponiamo in affitto questo fondo commerciale di complessivi mq.130 composto da ambiente vendita mq.70, magazzino, bagno utenti, bagno e spogliatoio dipendenti. L'immobile ha compresa mobilia della vecchia attività di BAR - TABACCHI. Impianti tutto a norma. Per ampia metratura e per tipologia, taglio ed ubicazione si può prestare a svariati utilizzi tipo show-room, studio professionale, espositivo e/o commerciale puro, prevedendo peraltro svariati tipi di attività. Complessivamente l'immobile risulta essere in buono stato di manutenzione, fermo restando eventuali adattamenti e/o adeguamenti necessari per lo svolgimento della propria attività; l'impianto di riscaldamento è singolo. Libero subito, informazioni più dettagliate in Agenzia. Nostro Riferimento CM0019, Classe Energetica G, Ipe 193. Richiesta euro/mese 1.400,00. www.francescoimmobiliare.it, Tel.055365812-0553249141.
RIFERIMENTO ANNUNCIO
CM0019
DATA ANNUNCIO
21 novembre 2025
DATA ULTIMO AGGIORNAMENTO
21 novembre 2025
CONTRATTO
Affitto
TIPOLOGIA
Locale commerciale
SUPERFICIE
130 m²
locali
3
TIPO PROPRIETA'
Standard
ALTRE CARATTERISTICHE'
parzialmente arredata
giardino non presente
riscaldamento autonomo
riscaldamento assente
cucina assente
posto auto assente
Costi
€ 1.400,00
al mese
Stato
Ottime
Classe energetica
G
a+
a
b
c
d
e
f
g
Mappa della zona dell'immobile
Ingrandisci mappa
Segnala un problema
Servizi per te
Inserzionista
FRANCESCOIMMOBILIARE
Codice annuncio:
7462
Riferimento immobile:
CM0019
Mostra numero
Tel: 055365812
Invia email
Motivo contatto
Appuntamento
Più informazioni
Richiesta di contatto
Più foto e materiali
Nome e cognome*
Email*
Cellulare
Messaggio*
ATTENZIONE ALLE TRUFFE
NON ANTICIPARE MAI denaro su carte ricaricabili, conti correnti esteri, money transfer o altri sistemi di pagamento
Accettazione*
Ho letto, sono maggiorenne e accetto
condizioni
,
privacy
e
Consigli antitruffa
Invia
Chiama
Contatta
Visita
Richiedi visita
Scopri subito quanto vale la tua casa per l'affitto o per la vendita!
Valuta gratis
Altri annunci simili
a
a
a
a
a
a
Annunci immobiliari nella stessa zona
Comune di Calenzano:
Affitto Attività/immobili commerciali Calenzano
|
Affitto Locali commerciali Calenzano
|
Agenzie immobiliari Calenzano
|
Provincia di Firenze:
Affitto Attività/immobili commerciali Firenze
|
Affitto Locali commerciali Firenze
|
Agenzie immobiliari Firenze
|
Email
Password
Ricordami
Registrati adesso
Sei una agenzia?
Password dimenticata?