ioaffitto.it TROVA casa. VIVI SEMPLICE.
Nuova ricerca
Pubblica annuncio
Annunci sponsorizzati
Agenzie
Valutazione-immobile
Servizi
Luce Gas Fibra
Mutui
Finanziamenti
Ricerca Internazionale
Servizi web
Pubblica annuncio
Accedi
1/2
2/2
2
Foto
0
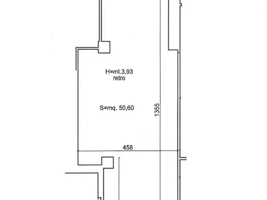
planimetria
Locale commerciale in affitto a Savona
€ 550,00
al mese
1
locali
-
bagni
50
mq
1 VETRINA
Giannetto Immobiliare propone ampio locale commerciale in zona di forte passaggio veicolare e pedonale
Presente la predisposizione per la realizzazione di un servizio igienico
Luce e acqua
PLANIMETRIA NELL'ULTIMA DELLE FOTO
Contattateci senza impegno per avere maggiori informazioni o per fissare una visita dellimmobile
019.84.29.869 - 349.67.43.593
RIFERIMENTO ANNUNCIO
F16-1505
DATA ANNUNCIO
21 maggio 2025
DATA ULTIMO AGGIORNAMENTO
21 maggio 2025
CONTRATTO
Affitto
TIPOLOGIA
Locale commerciale
SUPERFICIE
50 m²
locali
1
TIPO PROPRIETA'
Standard
ALTRE CARATTERISTICHE'
accesso per disabili
giardino non presente
riscaldamento assente
cucina assente
posto auto assente
Costi
€ 550,00
al mese
Stato
Grezzo
Classe energetica
G
a+
a
b
c
d
e
f
g
Mappa della zona dell'immobile
Ingrandisci mappa
Segnala un problema
Servizi per te
Inserzionista
Studio Immobiliare Giannetto sas di Paolo Giannetto & C.
Vai al sito web
Codice annuncio:
7920
Riferimento immobile:
F16-1505
Mostra numero
Tel: 0198429869
Invia email
Motivo contatto
Appuntamento
Più informazioni
Richiesta di contatto
Più foto e materiali
Nome e cognome*
Email*
Cellulare
Messaggio*
ATTENZIONE ALLE TRUFFE
NON ANTICIPARE MAI denaro su carte ricaricabili, conti correnti esteri, money transfer o altri sistemi di pagamento
Accettazione*
Ho letto, sono maggiorenne e accetto
condizioni
,
privacy
e
Consigli antitruffa
Invia
Chiama
Contatta
Visita
Richiedi visita
Scopri subito quanto vale la tua casa per l'affitto o per la vendita!
Valuta gratis
Altri annunci simili
Locale commerciale in affitto a Savona
2 VETRINE Giannetto Immobiliare in zona di forte passaggio pedonale e veicolare propone locale c...
€ 700
4
locali
70 ㎡
superficie
1
bagni
a
a
a
Locale commerciale in affitto in Via Monte Suello 5 a Genova
CERCHI IL LOCALE IDEALE PER LA TUA ATTIVITÀ NEL CUORE DELLE VIE PIÙ PULSANTI TRA FOCE ED ALBARO? ...
€ 500
1
locali
30 ㎡
superficie
a
Annunci immobiliari nella stessa zona
Comune di Savona:
Affitto Attività/immobili commerciali Savona
|
Affitto Locali commerciali Savona
|
Agenzie immobiliari Savona
|
Provincia di Savona:
Affitto Attività/immobili commerciali Savona
|
Affitto Locali commerciali Savona
|
Agenzie immobiliari Savona
|
Email
Password
Ricordami
Registrati adesso
Sei una agenzia?
Password dimenticata?