ioaffitto.it TROVA casa. VIVI SEMPLICE.
Nuova ricerca
Pubblica annuncio
Annunci sponsorizzati
Agenzie
Valutazione-immobile
Servizi
Luce Gas Fibra
Mutui
Finanziamenti
Ricerca Internazionale
Servizi web
Servizio partecipazione asta
Pubblica annuncio
Accedi
1/14
2/14
3/14
4/14
5/14
6/14
7/14
8/14
9/14
10/14
11/14
12/14
13/14
14/14
14
Foto
3
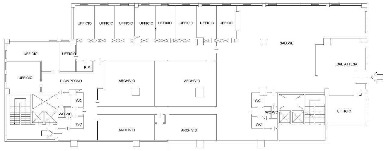
planimetria
Negozio in affitto in Via Colombo a Piacenza
€ 7.500,00
al mese
12
locali
6
bagni
1000
mq
PIACENZA SUD - In Signorile stabile polifunzionale servito da 2 ascensori ed insediato in zona commerciale con ampi e comodi parcheggi, UFFICIO/NEGOZIO di mq 1.000 c.a. completamente funzionale attualmente suddiviso in 10/12 uffici, oltre a sale di attesa, di riunione, archivi, server, open space ecc.. con pareti mobili ed arredo. Completamente già cablato e completo di tutta la rete impiantistica, di riscaldamento e di raffrescamento. Possibilità di rimodulazione degli ambienti a seconda delle esigenze specifiche dell'attività. Molto luminoso con vetrate su tutti i lati dell'edificio. Possibilità di posti auto privati al piano seminterrato. Riscaldamento e raffrescamento centralizzato in pompa di calore con termovalvole per il consumo individuale dell'immobile: spese condominiali mensili indicative comprensive di tutti i consumi. Possibilità più accessi. NESSUNA BARRIERA ARCHITETTONICA IDEALE ANCHE CON PER ATTIVITA' MEDICHE E AFFINI.
Per qualsiasi informazione e per visite potete contattarci ai riferimenti sotto indicati:
SOLUZIONECASA Piacenza - Via Monte Penice 18 - 29121 Piacenza
telefono 0523.49.08.18 - e.mail info@soluzionecasapc.it
Siamo disponibili dal Lunedì al Venerdì dalle 9.00 alle 12.30 e dalle 15.00 alle 19.00
Sabato solo mattina - Domenica Chiuso
Si riceve preferibilmente con appuntamento.
RIFERIMENTO ANNUNCIO
MC211015_1
DATA ANNUNCIO
15 gennaio 2026
DATA ULTIMO AGGIORNAMENTO
15 gennaio 2026
CONTRATTO
Affitto
TIPOLOGIA
Negozio
SUPERFICIE
1000 m²
locali
12
TOTALE PIANI EDIFICIO
6
TIPO PROPRIETA'
Standard
ALTRE CARATTERISTICHE'
giardino non presente
riscaldamento centralizzato
riscaldamento assente
Costi
€ 7.500,00
al mese
Stato
Eccellenti
Classe energetica
E
a+
a
b
c
d
e
f
g
Mappa della zona dell'immobile
Ingrandisci mappa
Segnala un problema
Servizi per te
Inserzionista
SOLUZIONE CASA
Vai al sito web
Codice annuncio:
8173
Riferimento immobile:
MC211015_1
Mostra numero
Tel: +390523490818
Invia email
Motivo contatto
Appuntamento
Più informazioni
Richiesta di contatto
Più foto e materiali
Nome e cognome*
Email*
Cellulare
Messaggio*
ATTENZIONE ALLE TRUFFE
NON ANTICIPARE MAI denaro su carte ricaricabili, conti correnti esteri, money transfer o altri sistemi di pagamento
Accettazione*
Ho letto, sono maggiorenne e accetto
condizioni
,
privacy
e
Consigli antitruffa
Invia
Chiama
Contatta
Visita
Richiedi visita
Scopri subito quanto vale la tua casa per l'affitto o per la vendita!
Valuta gratis
Altri annunci simili
Negozio in affitto in VIA ARCHIMEDE a Settimo Milanese
Affitta a SETTIMO MILANESE, Negozio, mq. 1.200 ca. Canone annuo Euro. 90.000,00 ( pari a ca. 7.50...
€ 7.500
4
locali
1200 ㎡
superficie
3
bagni
Negozio in affitto in VIA ARCHIMEDE a Settimo Milanese
Affitta a SETTIMO MILANESE, Negozio, mq. 1.200 ca. Canone annuo Euro. 90.000,00 ( pari a ca. 7.50...
€ 7.500
1
locali
1200 ㎡
superficie
3
bagni
Annunci immobiliari nella stessa zona
Comune di Piacenza:
Affitto Attività/immobili commerciali Piacenza
|
Affitto Negozi Piacenza
|
Agenzie immobiliari Piacenza
|
Provincia di Piacenza:
Affitto Attività/immobili commerciali Piacenza
|
Affitto Negozi Piacenza
|
Agenzie immobiliari Piacenza
|
Email
Password
Ricordami
Registrati adesso
Sei una agenzia?
Password dimenticata?