ioaffitto.it TROVA casa. VIVI SEMPLICE.
Inserzionista
Codice annuncio: 8606
Riferimento immobile: MO533680
Scopri subito quanto vale la tua casa per l'affitto o per la vendita!
Appartamento in vendita a Pioltello
Asta Immobiliare Giudiziaria | Tribunale di Milano
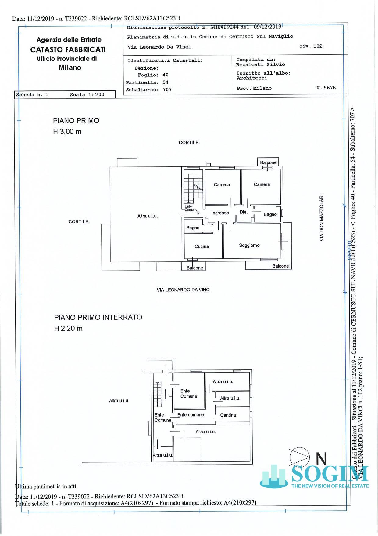
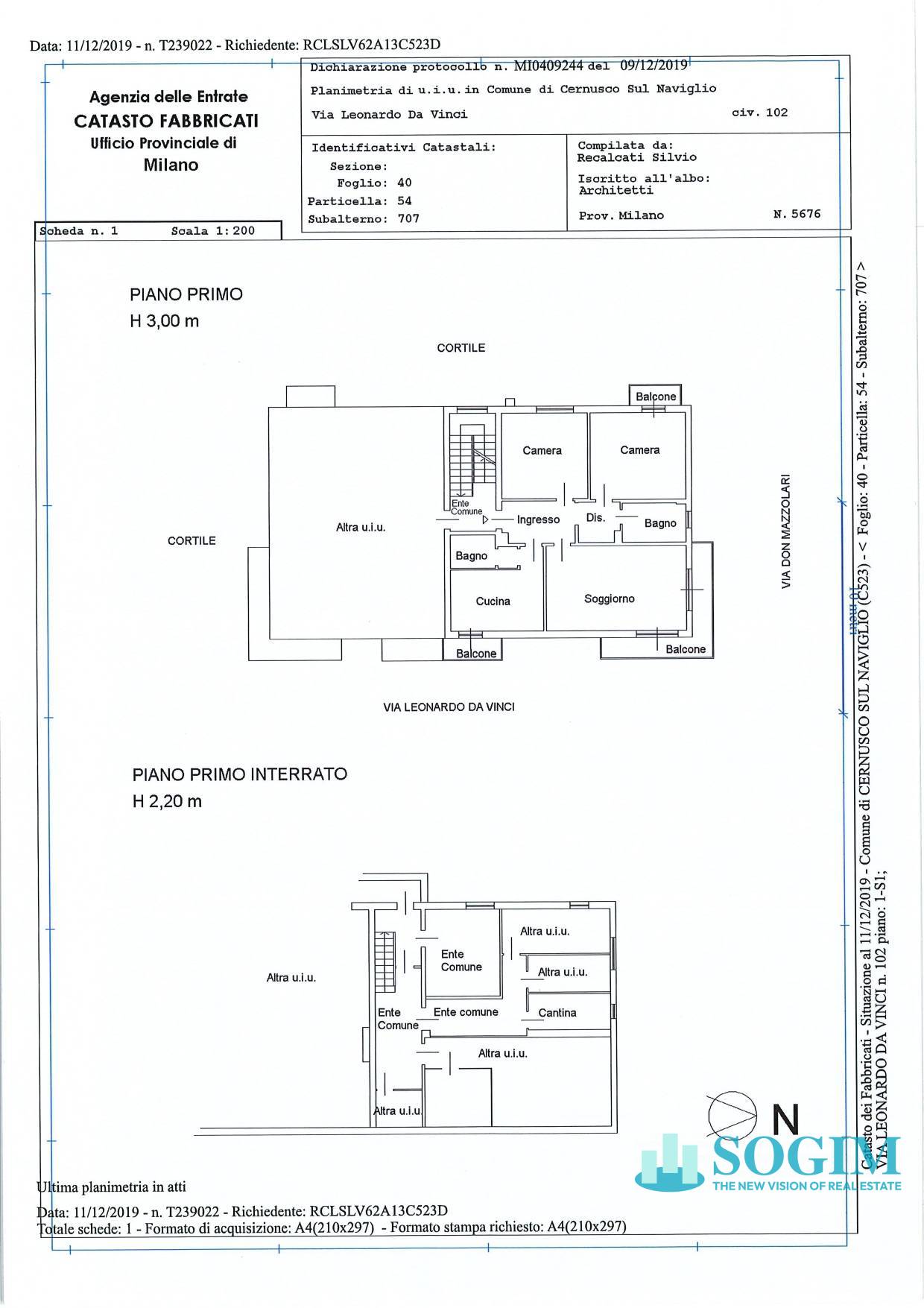
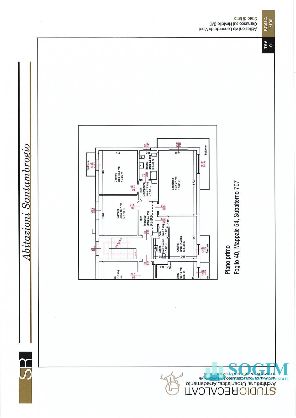
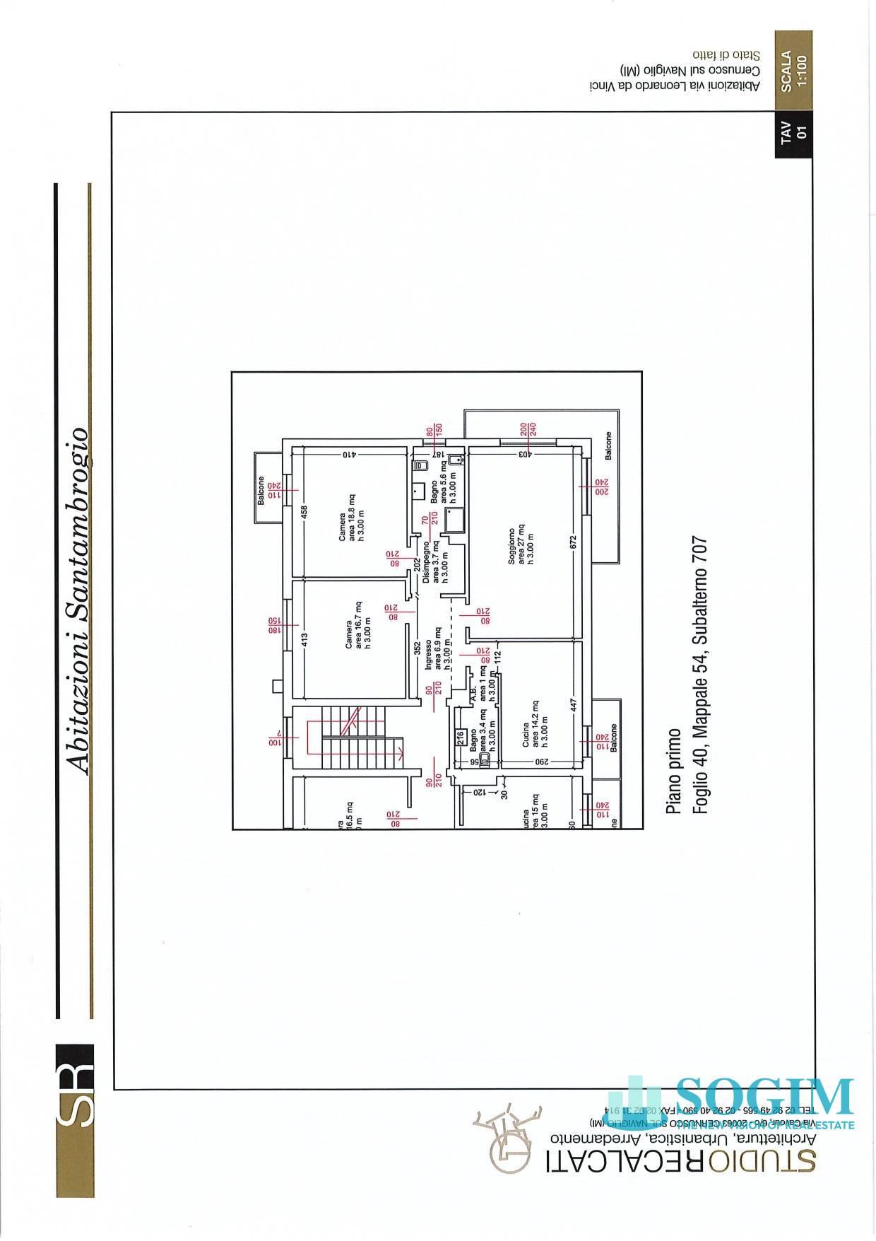
Appartamento Via Bolivia 20 Pioltello di 188 m...
€ 270.000

4
locali

188 ㎡
superficie

1
bagni
Appartamento in vendita a Pioltello
Asta Immobiliare Giudiziaria | Tribunale di Milano
Appartamento Via Bolivia 20 Pioltello di 188 m...
€ 270.000

4
locali

188 ㎡
superficie

1
bagni
Annunci immobiliari nella stessa zona