ioaffitto.it TROVA casa. VIVI SEMPLICE.
Nuova ricerca
Pubblica annuncio
Annunci sponsorizzati
Agenzie
Valutazione-immobile
Servizi
Luce Gas Fibra
Mutui
Finanziamenti
Ricerca Internazionale
Servizi web
Servizio partecipazione asta
Pubblica annuncio
Accedi
1/16
2/16
3/16
4/16
5/16
6/16
7/16
8/16
9/16
10/16
11/16
12/16
13/16
14/16
15/16
16/16
16
Foto
1
planimetria
Ufficio in affitto a Savona
€ 1.500,00
al mese
4
locali
1
bagni
65
mq
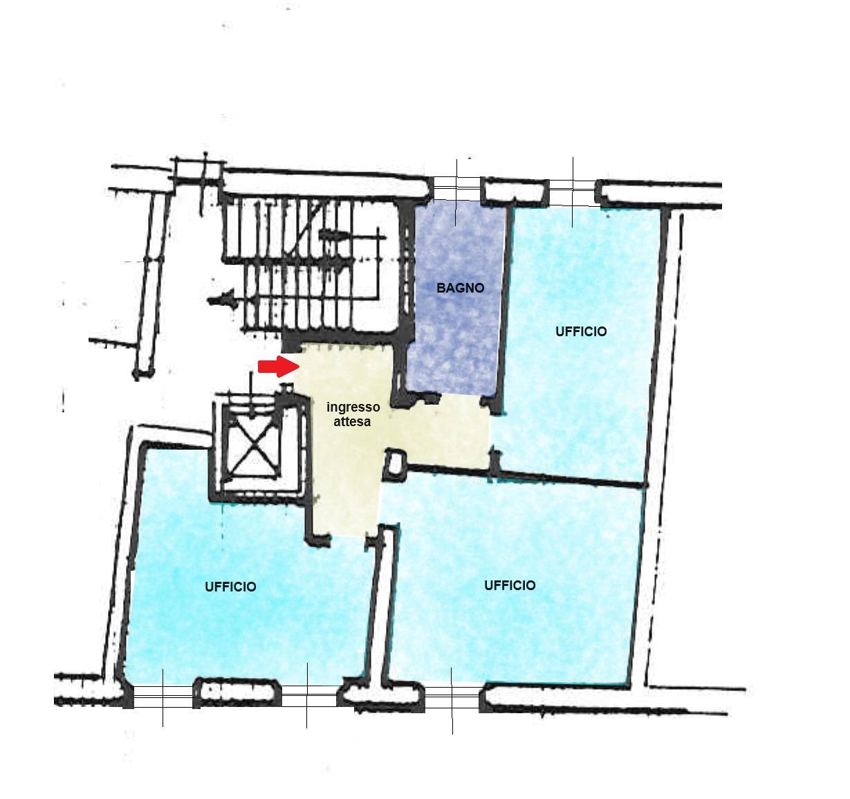
SAVONA Corso Italia Ufficio di rappresentanza
Nel cuore del centro della città in zona pedonale proponiamo locale uso ufficio in stabile depoca e di prestigio dotato di ascensore.
Composto da ingresso, quattro vani e servizio igienico.
Immobile in ottime condizioni e disponibile da subito.
Impianti cablati. Videocitofono. Riscaldamento autonomo.
Canone annuo pari ad euro 18.000 oltre IVA e spese condominiali.
Tipo di contratto 6+6
Richiesta fidejussione bancaria del valore di 12 mensilità oltre IVA per la durata del contratto.
PER MAGGIORI INFORMAZIONI:
Elisabetta Delfino 339 47 17 670
Mauro Pera 366 206 3333
RIFERIMENTO ANNUNCIO
12
DATA ANNUNCIO
14 luglio 2025
DATA ULTIMO AGGIORNAMENTO
14 luglio 2025
CONTRATTO
Affitto
TIPOLOGIA
Ufficio
SUPERFICIE
65 m²
locali
4
TIPO PROPRIETA'
Standard
ALTRE CARATTERISTICHE'
non arredato
riscaldamento autonomo
videocitofono
Costi
€ 1.500,00
al mese
Stato
Ottime
Classe energetica
G
73 kwh_m2
a+
a
b
c
d
e
f
g
Mappa della zona dell'immobile
Ingrandisci mappa
Segnala un problema
Servizi per te
Inserzionista
ED Immobiliare di Delfino Elisabetta
Vai al sito web
Codice annuncio:
8611
Riferimento immobile:
12
Mostra numero
Tel: +39 366 206 3333
Invia email
Motivo contatto
Appuntamento
Più informazioni
Richiesta di contatto
Più foto e materiali
Nome e cognome*
Email*
Cellulare
Messaggio*
ATTENZIONE ALLE TRUFFE
NON ANTICIPARE MAI denaro su carte ricaricabili, conti correnti esteri, money transfer o altri sistemi di pagamento
Accettazione*
Ho letto, sono maggiorenne e accetto
condizioni
,
privacy
e
Consigli antitruffa
Invia
Chiama
Contatta
Visita
Richiedi visita
Scopri subito quanto vale la tua casa per l'affitto o per la vendita!
Valuta gratis
Altri annunci simili
Ufficio in affitto in Via Angelo Scarsellini 119 a Genova
DISPONIBILITA' IMMEDIATA!Nel cuore di Genova, nel dinamico quartiere di San Benigno, è disponibil...
€ 1.480
3
locali
120 ㎡
superficie
1
bagni
Ufficio in affitto in Piazza della Nunziata 55 a Genova
UFFICI PRESTIGIOSI AFFITTASI PALAZZO LAURO ZONA NUNZIATAAffittasi ufficio prestigioso di vani 13,...
€ 1.700
10
locali
180 ㎡
superficie
Ufficio in affitto in Via al Ponte Calvi a Genova
Cerchi un monolocale accogliente e completamente arredato nel quartiere Maddalena di Genova? Non ...
€ 1.500
Ufficio in affitto in Vico Superiore di Pellicceria a Genova
Benvenuti in questo monolocale completamente arredato e riscaldato, situato nel quartiere della M...
€ 1.500
1
bagni
Ufficio in affitto in Piazza Borgo Pila a Genova
Brignole ad. Corso Buenos Aires a due passi dalla stazione ferroviaria e all'ampio parcheggio di ...
€ 1.400
5
locali
115 ㎡
superficie
1
bagni
Ufficio in affitto in Piazza Borgo Pila a Genova
Brignole ad. Corso Buenos Aires a due passi dalla stazione ferroviaria e all'ampio parcheggio di ...
€ 1.400
5
locali
115 ㎡
superficie
1
bagni
Annunci immobiliari nella stessa zona
Comune di Savona:
Affitto Attività/immobili commerciali Savona
|
Affitto Uffici Savona
|
Agenzie immobiliari Savona
|
Provincia di Savona:
Affitto Attività/immobili commerciali Savona
|
Affitto Uffici Savona
|
Agenzie immobiliari Savona
|
Email
Password
Ricordami
Registrati adesso
Sei una agenzia?
Password dimenticata?