ioaffitto.it TROVA casa. VIVI SEMPLICE.
Logo
Nuovo
1/3
Immagine 1 di Laboratorio in affitto  in via Stradona a Massanzago
2/3
Immagine 2 di Laboratorio in affitto  in via Stradona a Massanzago
3/3
Immagine 3 di Laboratorio in affitto  in via Stradona a Massanzago
Icona foto3 Foto     Icona planimetrie 0 planimetria

Laboratorio in affitto in via Stradona a Massanzago

€ 800,00
al mese
-
locali
-
bagni
170
mq
Zeminiana -

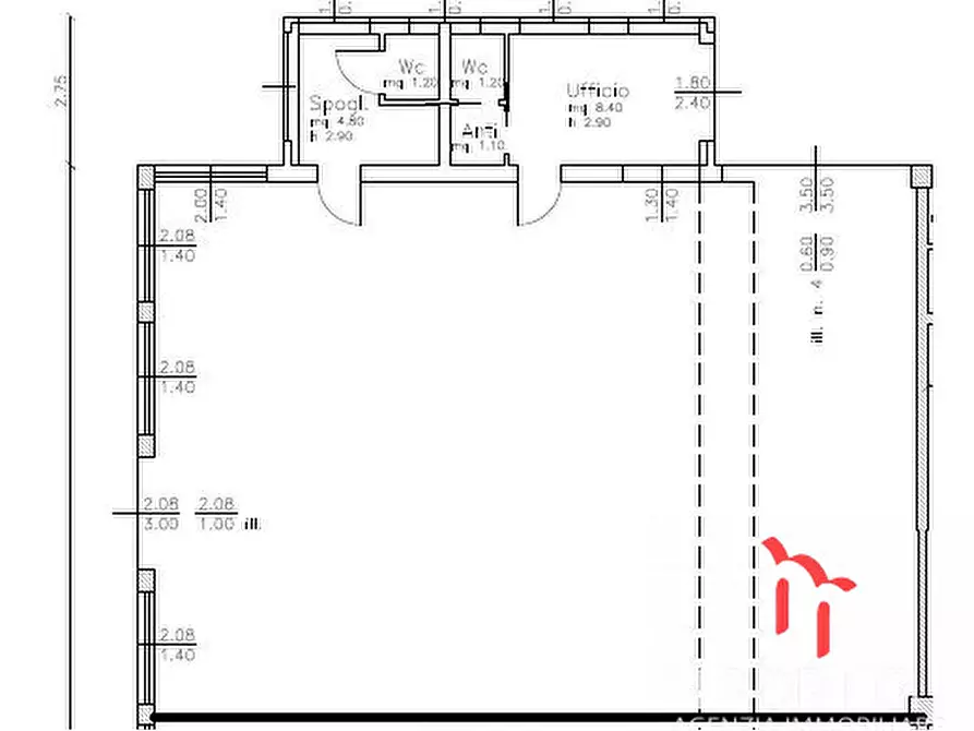
Proponiamo in LOCAZIONE un laboratorio artigianale con una superficie totale di circa mq. 170, perfetto per le esigenze della tua attività.

Questo immobile è composto da una zona produttiva, caratterizzata da un'altezza interna di mt. 3,5 che consente la massima versatilità operativa; il reparto è dotato di un grande portone carraio (mt. 3,5 x 3) con finestre che garantiscono luminosità e ventilazione ottimali.

All'interno sono presenti anche due servizi, una zona spogliatoio e un ufficio.

Il laboratorio è parte di un unico edificio con le stesse dimensioni che può diventare un unico capannone/laboratorio con una superficie totale di 330 mq, circa con doppio ingresso, servizi e uffici.


Metrature :
- Laboratorio 165 mq. circa
- Spogliatoio 4,80 mq.
- Bagno WC 1,20 mq.
- Ufficio 8,40 mq.
- Antibagno 1,10 mq.
- Bagno WC 1,20 mq.

Prezzo : Euro 800 mensili



Sei interessato?

Hai trovato la casa che desideravi da tanto tempo, ma hai bisogno di un mutuo per far avverare il tuo sogno? L’agenzia immobiliare I Portici ti offre la consulenza di professionisti del settore che ti aiuteranno a trovare il mutuo più accessibile in base alle tue disponibilità economiche, aiutandoti ad orientarti nella scelta tra mutuo a tasso fisso, variabile o misto e ad usufruire delle agevolazioni fiscali previste. Il tutto nella massima trasparenza e professionalità.


Per ulteriori informazioni non esitare a contattarci
+39 041.3130140
info@agenziaimmobiliareiportici.it
http://www.agenziaimmobiliareiportici.it/
Scorzè (VE) 30037, via Cercariolo 2/A
Seguici anche su Facebook e Instagram per rimanere sempre aggiornato sulle nostre proposte.


Si intende precisare che gli indirizzi presenti negli annunci non sono identificativi dell'ubicazione precisa dell'immobile,
danno un riferimento solo generico della zona al cliente che ricerca, al fine di tutelare la privacy e riservatezza del venditore --- annuncio pubblicato con GESTIONALEIMMOBILIARE.it
RIFERIMENTO ANNUNCIO
gestimm-4645190
DATA ANNUNCIO
26 gennaio 2026
DATA ULTIMO AGGIORNAMENTO
26 gennaio 2026
CONTRATTO
Affitto
TIPOLOGIA
Laboratorio
SUPERFICIE
170 m²
PIANO
Non disponibile
TIPO PROPRIETA'
Standard
ALTRE CARATTERISTICHE'
soffitta / mansarda cantina garage cucina presente cucina abitabile taverna
Costi
€ 800,00
al mese
Anno di costruzione
1970
Classe energetica G 233.19 kWh/m3anno
a+ a b c d e f g
Mappa della zona dell'immobile
Servizi per te
Inserzionista
Logo Agenzia Immobiliare I Portici di Enrico Favaro
Agenzia Immobiliare I Portici di Enrico Favaro
Enrico Favaro

Codice annuncio: 4645190

Invia email
ATTENZIONE ALLE TRUFFE
 
NON ANTICIPARE MAI denaro su carte ricaricabili, conti correnti esteri, money transfer o altri sistemi di pagamento

Scopri subito quanto vale la tua casa per l'affitto o per la vendita!

   

Altri annunci simili