ioaffitto.it TROVA casa. VIVI SEMPLICE.
Logo
Nuovo
1/3
Immagine 1 di Locale commerciale in vendita  in Via Redivo 2 a Andreis
2/3
Immagine 2 di Locale commerciale in vendita  in Via Redivo 2 a Andreis
3/3
Immagine 3 di Locale commerciale in vendita  in Via Redivo 2 a Andreis
Icona foto3 Foto     Icona planimetrie 2 planimetria

Locale commerciale in vendita in Via Redivo 2 a Andreis

€ 750.000,00
prezzo di vendita
1
locali
1
bagni
600
mq
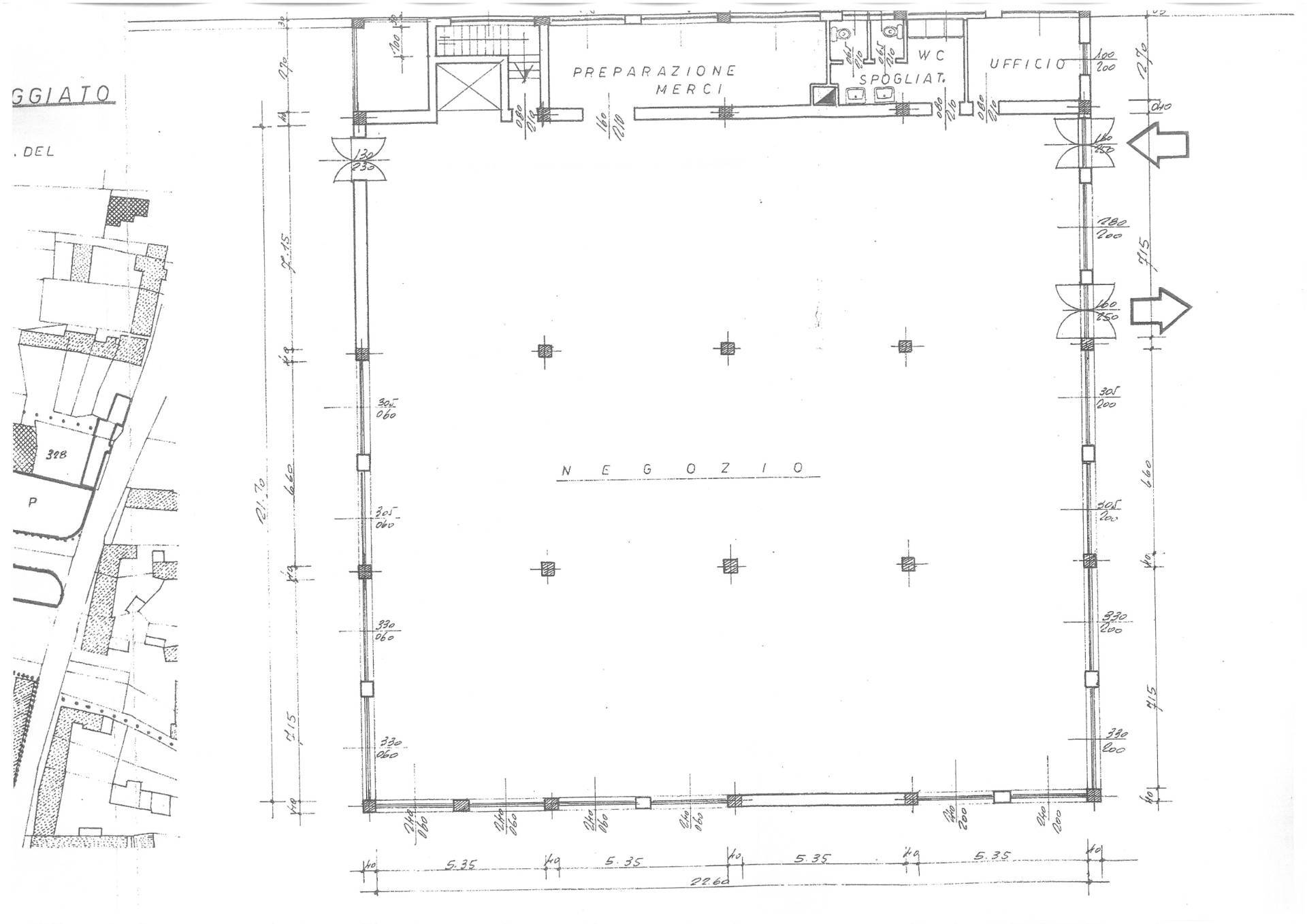
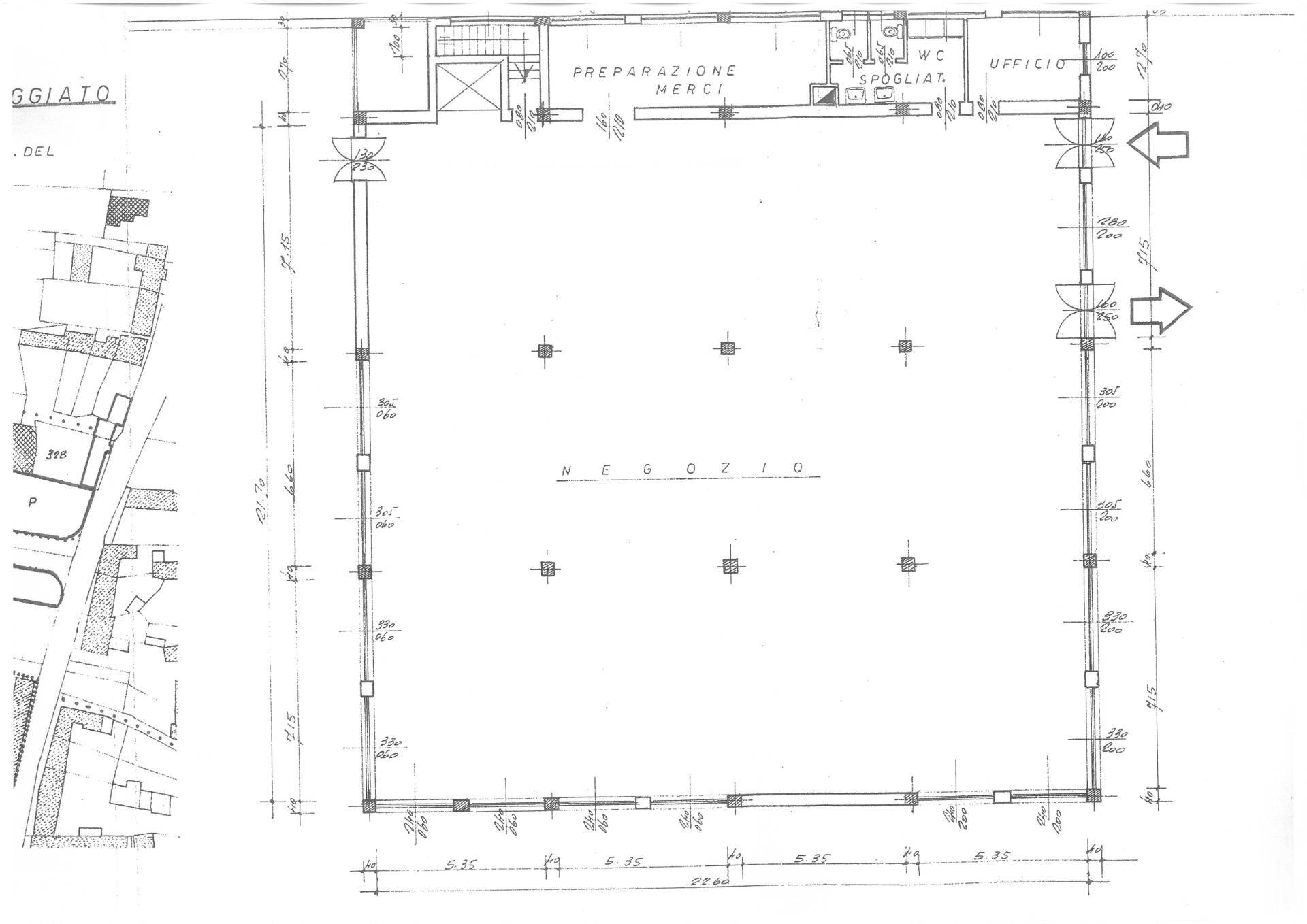
VENDESI EX SUPERMERCATO - ROVEREDO IN PIANO

Si propone in vendita un ex supermercato, munito ancora di attrezzature e arredi, avente superficie totale di mq. 1.200 di cui mq. 600 di vendita e mq. 600 con altezza 3 metri di magazzino in seminterrato.

L'immobile può essere adibito a locale commerciale di vendita al dettaglio di qualsiasi genere, facilmente adattabile ad ogni attività perché inserito in una zona densamente popolata.
Ma si presta anche come magazzino, è adattabile ad uffici, a centro polifunzionale, ambulatori, si presta ad essere adatta veramente a qualsiasi esigenza.

Ampia disponibilità di parcheggio esterno su lotto di totali mq. 2900 circa, con apposita rampa di servizio per lo scarico merce al piano in totale comodità e montacarichi interno di collegamento ai livelli.

Maggiori info in agenzia allo 0434/520602.
RIFERIMENTO ANNUNCIO
MC2827
DATA ANNUNCIO
22 aprile 2026
DATA ULTIMO AGGIORNAMENTO
22 aprile 2026
CONTRATTO
Vendita
TIPOLOGIA
Locale commerciale
SUPERFICIE
600 m²
locali
1
TOTALE PIANI EDIFICIO
2
TIPO PROPRIETA'
Standard
ALTRE CARATTERISTICHE'
aria condizionata cantina arredata giardino non presente riscaldamento autonomo riscaldamento assente impianto di antincendio
Costi
€ 750.000,00
prezzo di vendita
Stato
Ottime
Mappa della zona dell'immobile

Calcola il mutuo

Inserisci i dati mutuo

Rata del mutuo
Al mese
Anticipo
Mutuo
Richiedi consulenza gratuita mutuo

Servizio erogato tramite  

Servizi per te
Inserzionista
Logo Marchiori & Contino Snc
Marchiori & Contino Snc

Codice annuncio: 5963
Riferimento immobile: MC2827

Invia email
ATTENZIONE ALLE TRUFFE
 
NON ANTICIPARE MAI denaro su carte ricaricabili, conti correnti esteri, money transfer o altri sistemi di pagamento

Scopri subito quanto vale la tua casa per l'affitto o per la vendita!

   

Altri annunci simili