ioaffitto.it TROVA casa. VIVI SEMPLICE.
Logo
1/2
Immagine 1 di Locale commerciale in vendita  in Andrea Costa a Cervia
2/2
Immagine 2 di Locale commerciale in vendita  in Andrea Costa a Cervia
Icona foto2 Foto     Icona planimetrie 1 planimetria

Locale commerciale in vendita in Andrea Costa a Cervia

€ 300.000,00
prezzo di vendita
2
locali
2
bagni
70
mq
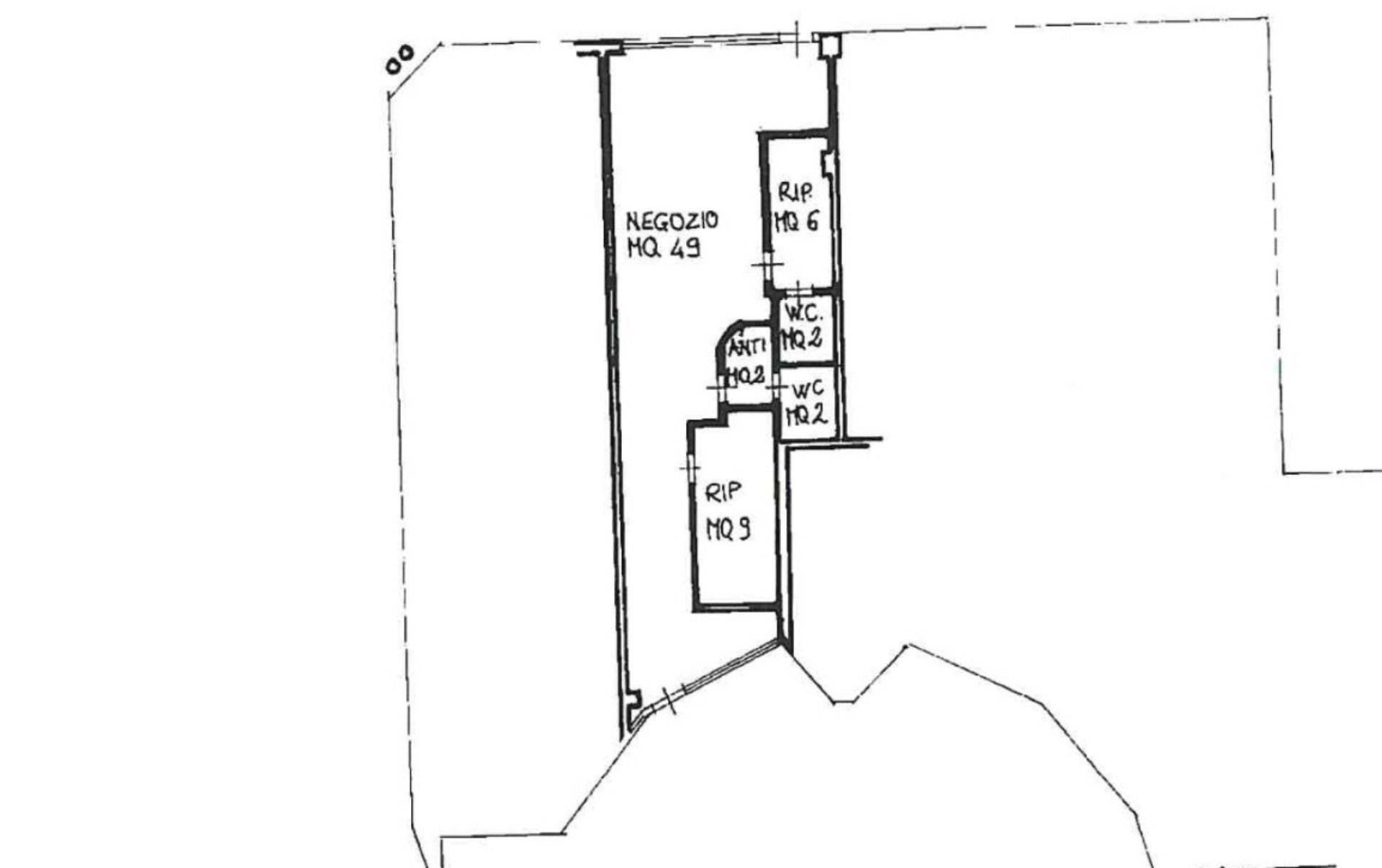
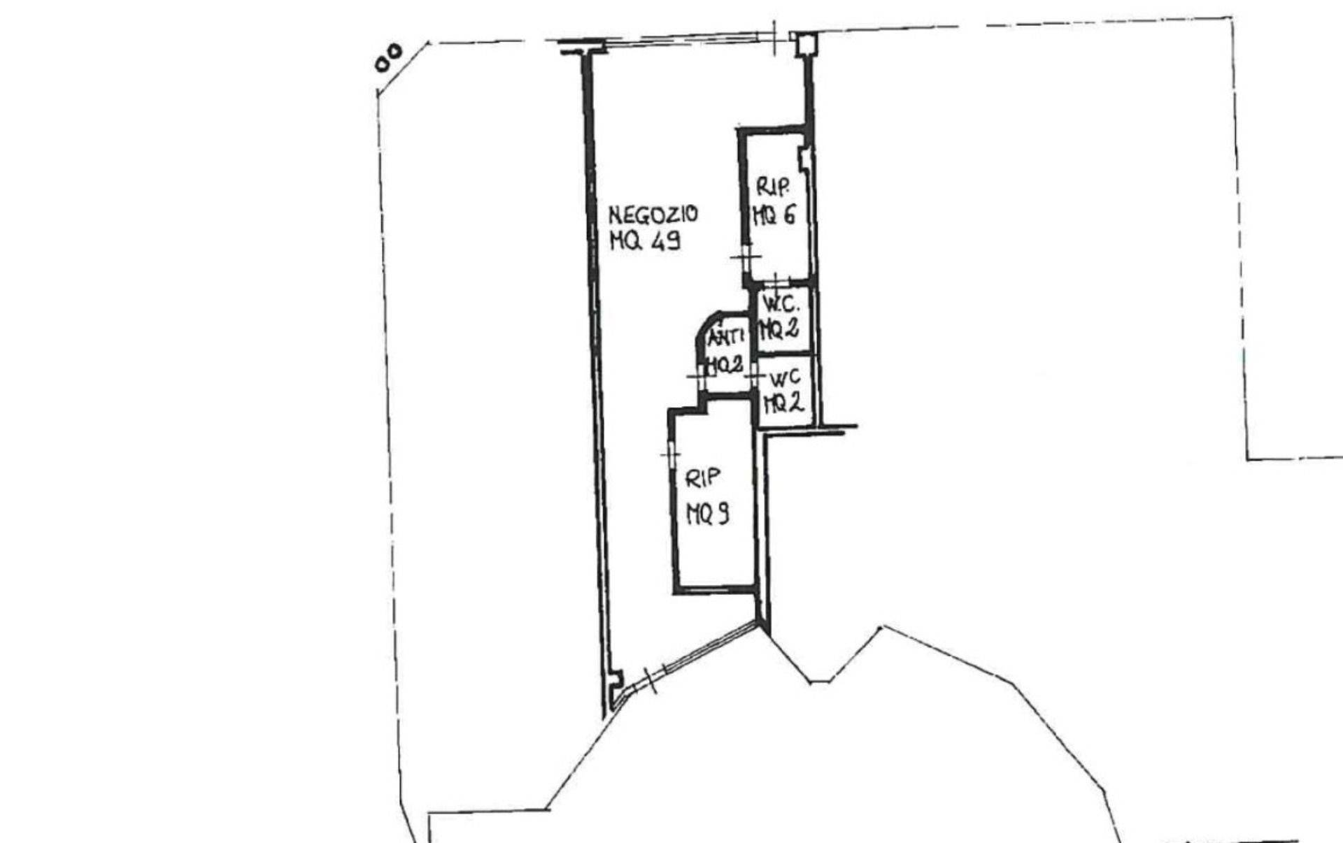
Vendiamo a Cervia, in posizione centrale e di forte passaggio negozio di circa 70 mq. Il negozio è dotato di 2 ingressi e attualmente è suddiviso in vari ambienti fra cui un'ampia area espositiva, 2 bagni, 2 stanze ed è servito da un ampia vetrina. In ottime condizioni, si presta a diverse soluzioni commerciali (ambulatorio, vendita la dettaglio, ufficio). Posizione splendida, con vetrina sulla principale piazza di Cervia. Maggiori info in ufficio.
RIFERIMENTO ANNUNCIO
BRB506
DATA ANNUNCIO
29 gennaio 2025
DATA ULTIMO AGGIORNAMENTO
29 gennaio 2025
CONTRATTO
Vendita
TIPOLOGIA
Locale commerciale
SUPERFICIE
70 m²
locali
2
TIPO PROPRIETA'
Standard
ALTRE CARATTERISTICHE'
giardino non presente riscaldamento assente
Costi
€ 300.000,00
prezzo di vendita
Stato
Ottime
Mappa della zona dell'immobile

Calcola il mutuo

Inserisci i dati mutuo

Rata del mutuo
Al mese
Anticipo
Mutuo
Richiedi consulenza gratuita mutuo

Servizio erogato tramite  

Servizi per te
Inserzionista
Logo Barbieri immobiliare Srl

Codice annuncio: 8274
Riferimento immobile: BRB506

Invia email
ATTENZIONE ALLE TRUFFE
 
NON ANTICIPARE MAI denaro su carte ricaricabili, conti correnti esteri, money transfer o altri sistemi di pagamento

Scopri subito quanto vale la tua casa per l'affitto o per la vendita!

   

Altri annunci simili

Locale commerciale in vendita in Andrea Costa a Cervia
Vendiamo a Cervia, nella Piazza Andrea Costa con ottima visibilità, negozio di ampia metratura. I...
€ 300.000
2
locali
40 ㎡
superficie
1
bagni
Locale commerciale in vendita in Caduti per la Libertà a Cervia
Vendiamo a Cervia, vicino al centro, in contesto commerciale ed in zona di forte passaggio, la pr...
€ 300.000
2
locali
170 ㎡
superficie
2
bagni
Locale commerciale in vendita a Ravenna
Vendiamo a Lido di Savio, in posizione centrale e di forte passaggio, a pochi minuti dalla spiagg...
€ 280.000
1
locali
405 ㎡
superficie
3
bagni