ioaffitto.it TROVA casa. VIVI SEMPLICE.
Logo
1/3
Immagine 1 di Locale commerciale in vendita  in Caduti per la Libertà a Cervia
2/3
Immagine 2 di Locale commerciale in vendita  in Caduti per la Libertà a Cervia
3/3
Immagine 3 di Locale commerciale in vendita  in Caduti per la Libertà a Cervia
Icona foto3 Foto     Icona planimetrie 2 planimetria

Locale commerciale in vendita in Caduti per la Libertà a Cervia

€ 300.000,00
prezzo di vendita
2
locali
2
bagni
170
mq
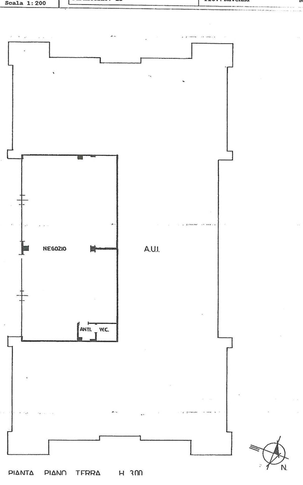
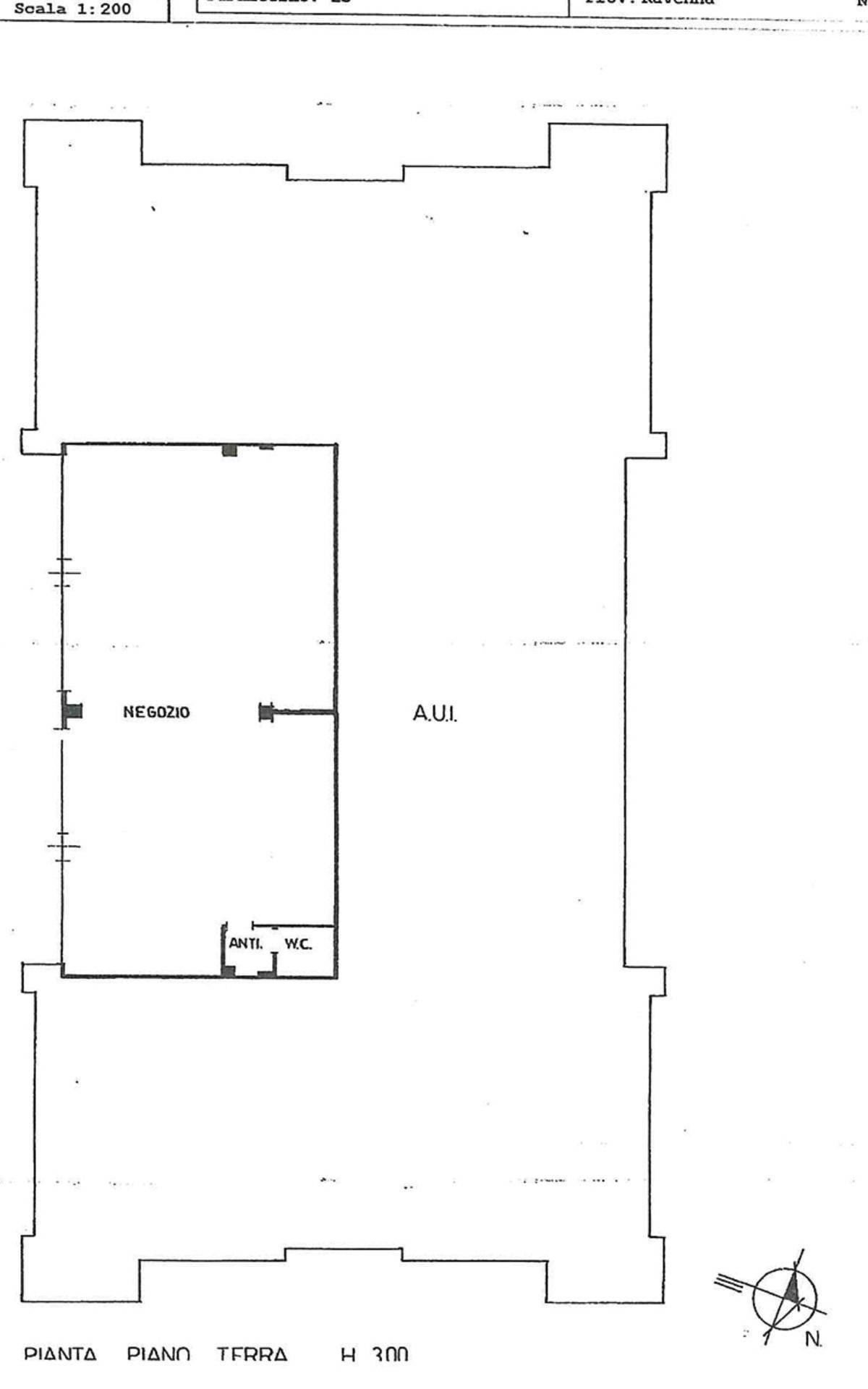
Vendiamo a Cervia, vicino al centro, in contesto commerciale ed in zona di forte passaggio, la proprietà dei muri di un negozio negozio di 170 mq, attualmente affittato. In zona commerciale, di passaggio e vicino a tutti i principali servizi, si concretizza come un ottimo investimento. Maggiori info in ufficio. Rif. 130.
RIFERIMENTO ANNUNCIO
BRB130
DATA ANNUNCIO
1 dicembre 2024
DATA ULTIMO AGGIORNAMENTO
1 dicembre 2024
CONTRATTO
Vendita
TIPOLOGIA
Locale commerciale
SUPERFICIE
170 m²
locali
2
TIPO PROPRIETA'
Standard
ALTRE CARATTERISTICHE'
giardino non presente riscaldamento autonomo riscaldamento assente
Costi
€ 300.000,00
prezzo di vendita
Stato
Ottime
Mappa della zona dell'immobile

Calcola il mutuo

Inserisci i dati mutuo

Rata del mutuo
Al mese
Anticipo
Mutuo
Richiedi consulenza gratuita mutuo

Servizio erogato tramite  

Servizi per te
Inserzionista
Logo Barbieri immobiliare Srl
Barbieri immobiliare Srl

Codice annuncio: 8274
Riferimento immobile: BRB130

Invia email
ATTENZIONE ALLE TRUFFE
 
NON ANTICIPARE MAI denaro su carte ricaricabili, conti correnti esteri, money transfer o altri sistemi di pagamento

Scopri subito quanto vale la tua casa per l'affitto o per la vendita!

   

Altri annunci simili

Locale commerciale in vendita in Andrea Costa a Cervia
Vendiamo a Cervia, nella Piazza Andrea Costa con ottima visibilità, negozio di ampia metratura. I...
€ 300.000
2
locali
40 ㎡
superficie
1
bagni
Locale commerciale in vendita in Andrea Costa a Cervia
Vendiamo a Cervia, in posizione centrale e di forte passaggio negozio di circa 70 mq. Il negozio ...
€ 300.000
2
locali
70 ㎡
superficie
2
bagni
Locale commerciale in vendita a Ravenna
Vendiamo a Lido di Savio, in posizione centrale e di forte passaggio, a pochi minuti dalla spiagg...
€ 280.000
1
locali
405 ㎡
superficie
3
bagni
Locale commerciale in vendita a Morciano Di Romagna
Vendesi in Asta a Morciano di Romagna, Porzioni di fabbricato urbano ad uso commerciale/artigiana...
€ 310.125
3
locali
450 ㎡
superficie