ioaffitto.it TROVA casa. VIVI SEMPLICE.
Nuova ricerca
Pubblica annuncio
Annunci sponsorizzati
Agenzie
Valutazione-immobile
Servizi
Luce Gas Fibra
Mutui
Finanziamenti
Ricerca Internazionale
Servizi web
Servizio partecipazione asta
Pubblica annuncio
Accedi
Nuovo
1/11
2/11
3/11
4/11
5/11
6/11
7/11
8/11
9/11
10/11
11/11
11
Foto
2
planimetria
Locale commerciale in affitto in Via G.Marconi a Comun Nuovo
€ 7.500,00
al mese
-
locali
-
bagni
1113
mq
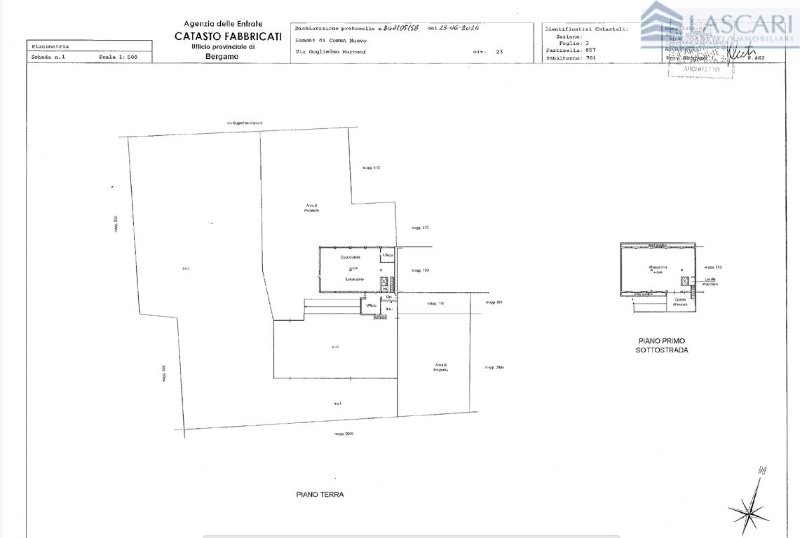
IMMOBILE IDEALE PER USO CONCESSIONARIA AUTO - MOTO - CAMPER. Zona semicentrale nelle immediate vicinanze alla S.P. 42 compendio immobiliare, con struttura in c.a. e mattoni a vista e prefabbricato, completamente recintato attualmente utilizzato per attività di vendita di macchinari e attrezzature per giardinaggio, composto da: laboratorio esposizione con sottostante magazzino, adiacente a capannone uso officina. Dotato di ampia area esterna recintata con doppio accesso carrale corrispondente alla seguente descrizione:
Laboratorio esposizione di mq. 284 h.mt. 3,20 con ampie vetrine e porticato, composto da ampio open space espositivo, due uffici, servizi con predisposizione spazio per montacarichi.
Al piano seminterrato magazzino di mq. 274 h.mt. 3,00 con comodo scivolo e accesso carrale. In adiacenza capannone uso officina con servizi di mq. 555 con altezza utile mt. 6,00, con servizi per il personale, oltre ad ampia tettoia. Gli immobili sono dotati di impianto elettrico a norma, impianto di riscaldamento con moduli robur, impianto aria, nell'officina impianto aspirazione fumi. Inoltre all'esterno è presente impianto di lavaggio con vasche di raccolta acque. Area esterna di pertinenza recintata uso parcheggio di mq 3.881.
RIFERIMENTO ANNUNCIO
2684
DATA ANNUNCIO
12 dicembre 2025
DATA ULTIMO AGGIORNAMENTO
12 dicembre 2025
CONTRATTO
Affitto
TIPOLOGIA
Locale commerciale
SUPERFICIE
1113 m²
PIANO
Intero edificio
TIPO PROPRIETA'
Standard
ALTRE CARATTERISTICHE'
Costi
€ 7.500,00
al mese
Mappa della zona dell'immobile
Ingrandisci mappa
Segnala un problema
Servizi per te
Inserzionista
Lascari Servizi Immobiliari
Vai al sito web
Codice annuncio:
2684
Riferimento immobile:
2684
Mostra numero
Tel: 035 234162
Invia email
Motivo contatto
Appuntamento
Più informazioni
Richiesta di contatto
Più foto e materiali
Nome e cognome*
Email*
Cellulare
Messaggio*
ATTENZIONE ALLE TRUFFE
NON ANTICIPARE MAI denaro su carte ricaricabili, conti correnti esteri, money transfer o altri sistemi di pagamento
Accettazione*
Ho letto, sono maggiorenne e accetto
condizioni
,
privacy
e
Consigli antitruffa
Invia
Chiama
Contatta
Visita
Richiedi visita
Scopri subito quanto vale la tua casa per l'affitto o per la vendita!
Valuta gratis
Altri annunci simili
Annunci immobiliari nella stessa zona
Comune di Comun Nuovo:
Affitto Attività/immobili commerciali Comun Nuovo
|
Affitto Locali commerciali Comun Nuovo
|
Agenzie immobiliari Comun Nuovo
|
Provincia di Bergamo:
Affitto Attività/immobili commerciali Bergamo
|
Affitto Locali commerciali Bergamo
|
Agenzie immobiliari Bergamo
|
Email
Password
Ricordami
Registrati adesso
Sei una agenzia?
Password dimenticata?