ioaffitto.it TROVA casa. VIVI SEMPLICE.
Nuova ricerca
Pubblica annuncio
Annunci sponsorizzati
Agenzie
Valutazione-immobile
Servizi
Luce Gas Fibra
Mutui
Finanziamenti
Ricerca Internazionale
Servizi web
Servizio partecipazione asta
Pubblica annuncio
Accedi
In affitto
/
Locale commerciale
/
Parma (PR)
241 di 416
1/6
2/6
3/6
4/6
5/6
6/6
6
Foto
0
planimetria
Locale commerciale in affitto a Parma
€ 2.900,00
al mese
7
locali
-
bagni
165
mq
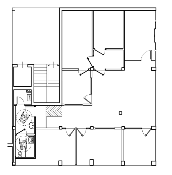
Locale commerciale in zona ovestPosizionato al piano terra di un immobile direzionale /commerciale in prossimità della tangenziale interna in direzione ovest.Dimensione: 165mq; all'interno vani suddivisi con pareti vetrate e, nella parte centrale, un open space.Utilizzo sia per attività commerciali che direzionali.Su richiesta tre autorimesse.Rif. 1691Per informazioni: Immobili Parma Srls, Via Giovanni Giolitti 2/A, 43126 Parma, Tel. 05211962370, info@immobiliaziendali.euIMPORTANTE: l’effettivo stato dell’immobile potrebbe in alcuni casi discostarsi dalle caratteristiche tecniche, dalla disposizione interna e gli accessori indicati in annuncio. I portali possono pubblicare dati differenti pertanto la società Immobili Parma Srls declina ogni responsabilità per possibili incongruenze.Precisiamo inoltre che l’indirizzo pubblicato è indicativo al fine di tutelare la privacy del venditore. L’indirizzo corretto verrà comunicato previo incontro presso la nostra sede.
RIFERIMENTO ANNUNCIO
1695
DATA ANNUNCIO
3 febbraio 2023
DATA ULTIMO AGGIORNAMENTO
11 marzo 2025
CONTRATTO
Affitto
TIPOLOGIA
Locale commerciale
SUPERFICIE
165 m²
locali
7
TIPO PROPRIETA'
Standard
ALTRE CARATTERISTICHE'
impianto elettrico presente e a norma
garage
sistema di riscaldamento presente
riscaldamento ad aria / convettore
riscaldamento autonomo
impianto idraulico a norma
rete WiFi
Costi
€ 2.900,00
al mese
Classe energetica
VA
a+
a
b
c
d
e
f
g
Mappa della zona dell'immobile
Ingrandisci mappa
Segnala un problema
Servizi per te
Inserzionista
Immobili Parma SRLS
Codice annuncio:
718021
Riferimento immobile:
1695
Mostra numero
Tel: 05211962370
Invia email
Motivo contatto
Appuntamento
Più informazioni
Richiesta di contatto
Più foto e materiali
Nome e cognome*
Email*
Cellulare
Messaggio*
ATTENZIONE ALLE TRUFFE
NON ANTICIPARE MAI denaro su carte ricaricabili, conti correnti esteri, money transfer o altri sistemi di pagamento
Accettazione*
Ho letto, sono maggiorenne e accetto
condizioni
,
privacy
e
Consigli antitruffa
Invia
Chiama
Contatta
Visita
Richiedi visita
Scopri subito quanto vale la tua casa per l'affitto o per la vendita!
Valuta gratis
Altri annunci simili
Locale commerciale in affitto a Parma
Negozio in piazza GhiaiaUbicato in un contesto commercialmente vivace, l'unità immobiliare è di 1...
€ 2.700
140 ㎡
superficie
1
bagni
Locale commerciale in affitto in via silvio pellico a Fiorenzuola D'arda
FIORENZUOLA: In centro paese posizionato in area con parcheggio capannone ad uso commerciale di m...
€ 2.950
1
locali
787 ㎡
superficie
Locale commerciale in affitto in Piacenza Sud a Piacenza
2 KM DA PIACENZA SUD - Piazzale Inghiaiato di 3.500 mq circa recintato con fognatura e predisposi...
€ 2.950
3530 ㎡
superficie
Annunci immobiliari nella stessa zona
Comune di Parma:
Affitto Attività/immobili commerciali Parma
|
Affitto Locali commerciali Parma
|
Agenzie immobiliari Parma
|
Provincia di Parma:
Affitto Attività/immobili commerciali Parma
|
Affitto Locali commerciali Parma
|
Agenzie immobiliari Parma
|
Email
Password
Ricordami
Registrati adesso
Sei una agenzia?
Password dimenticata?