ioaffitto.it TROVA casa. VIVI SEMPLICE.
Nuova ricerca
Pubblica annuncio
Annunci sponsorizzati
Agenzie
Valutazione-immobile
Servizi
Luce Gas Fibra
Mutui
Finanziamenti
Ricerca Internazionale
Servizi web
Servizio partecipazione asta
Pubblica annuncio
Accedi
Nuovo
1/7
2/7
3/7
4/7
5/7
6/7
7/7
7
Foto
0
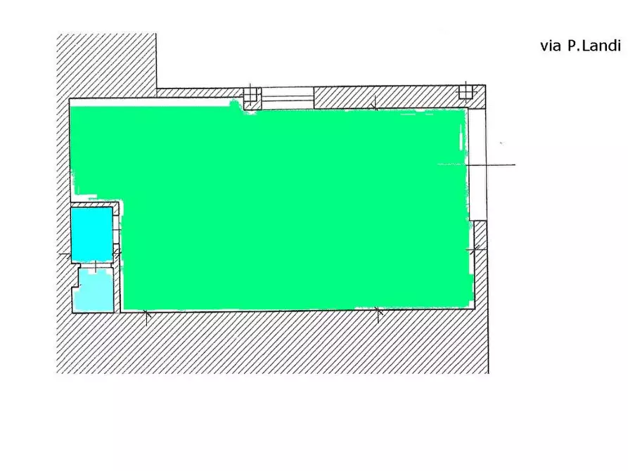
planimetria
Locale commerciale in affitto a Pisa
€ 500,00
al mese
2
locali
-
bagni
45
mq
Affittasi a Pisa via Landi fondo commerciale ; l'immobile è situato in una bella zona residenziale, nelle adiacenze del centro storico, ma in tranquillo contesto lontano dal traffico, si compone di un unico grande vano con vetrina e finestra oltre a bagno wc, ottime le condizioni interne
Il fondo commerciale in locazione a Pisa via Landi è ideale anche come ufficio.Per informazioni e visite contattare 3357719182
Commercial fund for rent in Pisa via Landi; the property is located in a beautiful residential area, near the historic center, but in a quiet setting away from traffic, it consists of a single large room with a window and a bathroom and toilet.
The commercial fund leased in Pisa via Landi is also ideal as an office. For information and visits contact 3357719182
RIFERIMENTO ANNUNCIO
a118121
DATA ANNUNCIO
24 dicembre 2025
DATA ULTIMO AGGIORNAMENTO
24 dicembre 2025
CONTRATTO
Affitto
TIPOLOGIA
Locale commerciale
SUPERFICIE
45 m²
locali
2
TOTALE PIANI EDIFICIO
4
TIPO PROPRIETA'
Standard
ALTRE CARATTERISTICHE'
riscaldamento assente
Costi
€ 500,00
al mese
Stato
Ristrutturato
Classe energetica
G
352 kwh_m2
a+
a
b
c
d
e
f
g
Mappa della zona dell'immobile
Ingrandisci mappa
Segnala un problema
Servizi per te
Inserzionista
Immobiliare Italia
Vai al sito web
Codice annuncio:
1133
Riferimento immobile:
a118121
Mostra numero
Tel: 050503028
Invia email
Motivo contatto
Appuntamento
Più informazioni
Richiesta di contatto
Più foto e materiali
Nome e cognome*
Email*
Cellulare
Messaggio*
ATTENZIONE ALLE TRUFFE
NON ANTICIPARE MAI denaro su carte ricaricabili, conti correnti esteri, money transfer o altri sistemi di pagamento
Accettazione*
Ho letto, sono maggiorenne e accetto
condizioni
,
privacy
e
Consigli antitruffa
Invia
Chiama
Contatta
Visita
Richiedi visita
Scopri subito quanto vale la tua casa per l'affitto o per la vendita!
Valuta gratis
Altri annunci simili
a
a
a
a
a
a
Annunci immobiliari nella stessa zona
Comune di Pisa:
Agenzie immobiliari Pisa
|
Provincia di Pisa:
Agenzie immobiliari Pisa
|
Email
Password
Ricordami
Registrati adesso
Sei una agenzia?
Password dimenticata?