ioaffitto.it TROVA casa. VIVI SEMPLICE.
Logo
1/2
Immagine 1 di Locale commerciale in vendita  in Corso De Michetti a Teramo
2/2
Immagine 2 di Locale commerciale in vendita  in Corso De Michetti a Teramo
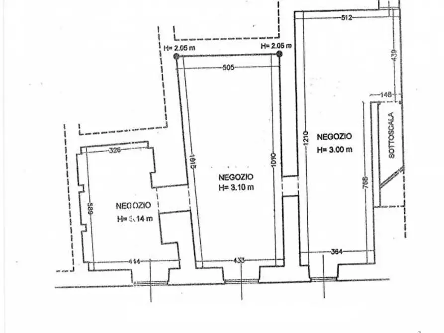
Icona foto2 Foto     Icona planimetrie 0 planimetria

Locale commerciale in vendita in Corso De Michetti a Teramo

€ 280.000,00
prezzo di vendita
3
locali
1
bagni
150
mq
Teramo centro storico - Vendesi locale commerciale nel centro storico di Teramo. L'immobile è posizionato nello storico e centralissimo Corso De Michetti, via ad alto transito veicolare e pedonale della città. Le tre ampie vetrine conferiscono un'ottima visibilità a qualsiasi attività commerciale. Le buone condizioni generali dell'immobile, le tre ampie vetrine, la metratura di 150 mq e la centralità su una delle vie principali del centro sono i principali punti di forza di questo immobile. APE in fase di definizione
RIFERIMENTO ANNUNCIO
258
DATA ANNUNCIO
20 marzo 2023
DATA ULTIMO AGGIORNAMENTO
20 marzo 2023
CONTRATTO
Vendita
TIPOLOGIA
Locale commerciale
SUPERFICIE
150 m²
locali
3
TIPO PROPRIETA'
Standard
ALTRE CARATTERISTICHE'
riscaldamento autonomo riscaldamento assente
Costi
€ 280.000,00
prezzo di vendita
Stato
Ottime
Mappa della zona dell'immobile

Calcola il mutuo

Inserisci i dati mutuo

Rata del mutuo
Al mese
Anticipo
Mutuo
Richiedi consulenza gratuita mutuo

Servizio erogato tramite  

Servizi per te
Inserzionista
Logo Zuccarini Immobiliare
Zuccarini Immobiliare

Codice annuncio: 4748
Riferimento immobile: 258

Invia email
ATTENZIONE ALLE TRUFFE
 
NON ANTICIPARE MAI denaro su carte ricaricabili, conti correnti esteri, money transfer o altri sistemi di pagamento

Scopri subito quanto vale la tua casa per l'affitto o per la vendita!

   

Altri annunci simili

Locale commerciale in vendita in Viale De Gasperi 2 a Monteprandone
Ampio locale commerciale di circa 170 m², situato al piano terra e caratterizzato da una posizion...
€ 280.000
4
locali
170 ㎡
superficie
2
bagni
Locale commerciale in vendita a San Benedetto Del Tronto
PORTO D'ASCOLI, su strada molto trafficata e con presenza di varie attività, locale commerciale d...
€ 260.000
3
locali
110 ㎡
superficie
1
bagni
Locale commerciale in vendita in viA CARDUCCI 101 a San Benedetto Del Tronto
SAN BENEDETTO DEL TRONTO - Locale commerciale di ampia metratura con annesso ammezzato al piano t...
€ 275.000
3
locali
324 ㎡
superficie
1
bagni
Locale commerciale in vendita in Via Lombardia a Grottammare
Zona Ischia di Grottammare, l'agenzia immobiliare CALDERISI propone in vendita un locale commerci...
€ 290.000
1
locali
141 ㎡
superficie
1
bagni
Locale commerciale snc a Porto San Giorgio
L'Immobiliare Unika propone in vendita nel Comune di Porto San Giorgio (FM), in prossimità del ce...
€ 300.000
120 ㎡
superficie
Locale commerciale in vendita snc a Porto San Giorgio
L'Immobiliare Unika propone in esclusiva di vendita nel Comune di Porto San Giorgio (FM) in zona ...
€ 290.000
10
locali
309 ㎡
superficie
3
bagni