ioaffitto.it TROVA casa. VIVI SEMPLICE.
Logo
1/4
Immagine 1 di Terreno edificabile in vendita  in casciana terme a Casciana Terme Lari
2/4
Immagine 2 di Terreno edificabile in vendita  in casciana terme a Casciana Terme Lari
3/4
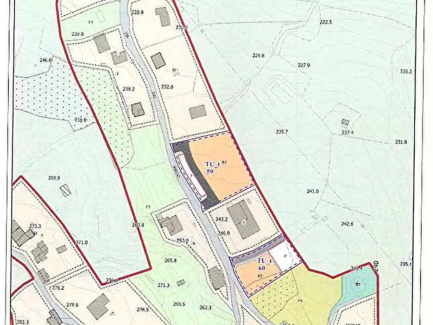
Immagine 3 di Terreno edificabile in vendita  in casciana terme a Casciana Terme Lari
4/4
Immagine 4 di Terreno edificabile in vendita  in casciana terme a Casciana Terme Lari
Icona foto4 Foto     Icona planimetrie 0 planimetria

Terreno edificabile in vendita in casciana terme a Casciana Terme Lari

€ 59.000,00
prezzo di vendita
10
locali
-
bagni
2600
mq
Casciana Terme (PI) vi proponiamo questo terreno edificabile per la realizzazione di civili abitazioni, il lotto è di mq. 2600 con edificabilità fino a 510 mq.
L'area in oggetto è ubicata all'interno dell'Insediamento Urbano di Parlascio TUC9 a prevalente carattere residenziale
L'intervento si configura come ricucitura del margine urbano in coerenza con le strategie di sviluppo del PS come delineate nell'elaborato PG03 del PS. Nel contempo l'intervento consente altresì di migliorare e implementare le dotazioni territoriali anche per li centro urbano.
FUNZIONI E DESTINAZIONI D'USO
Funzione prevalente:
a) Residenziale
E possibileinsediamento di tutte le runzioni e destinazioni d'uso compatibili secondo il criterio di prevalenza al sensi dell'art. art.26.6delle N.T.A.
DIMENSIONAMENTO
S.T.: 2.919 mg S.F.: 2.032 mg
D.T:. 887mq di cui:
199mg per la realizzazione di parcheggi pubblici; 166 mq per la realizzazione di verde da arredo; 522 mq per la realizzazionedella viabilità
I.T.: 0,17 mq/mg
S.E: 508 mg (Il valore della SE prevale sulla SE ottenuta con l'applicazione dell'IT) I.C.: 20%
Hmax: 2. NP
TRUMENTIATTUATIVI
Progetto Unitario Convenzionato (PUC) - art. 12 delle N.T.A.
INDIRIZZI PROGETTUALI EPRESCRIZIONI PAESAGGISTICHE
L'area in oggetto è ricompresa all'internodella Scheda d'Ambito no08 "Piana Livorno-Pisa-Pontedera" ed è interessate dalla presenza di vincoli a carattere paesaggistico ex art. 136 del D.Lgs no42/2004: D.M. 91/1968 "Zona sita nel Comune di Casciana Terme comprendente le località di Poggio alla Farnia, Collemontanino, Parlascio e Ceppato"; non è
interessata dalla presenza di vincoli a carattere paesaggistico ex art. 142 del D.Lgs n°42/2004.
Tutti gli interventi di trasformazione previsti dovranno rispettare gli indirizzi e le direttive correlate contenuti all'interno della Scheda d'Ambito no08 "Piana Livorno-Pisa-Pontedera", con particolare riferimento alla Sezione 6, Disciplina d'uso e gli obbiettivi specifici relativi ai morfotipi insediativi desunti dalla I Invariante Strutturale del PIT/PPR che interessano i tessuti insediativi entro cui il comparto di trasformazione è inserito.
Schedad'Ambito08.Disciplinad'uso Obiettivo I
Salvaguardare e riqualificare, evitando nuovo consumo di suolo, i valori ecosistemici, idrogeomortologici, paesaggistici e storico- testimoniali del vasto sistema delle pianure alluvionali dell'Arno, del Serchioe dei principali affluenti quali fiume Era. torrente Sterza. Fine. Chioma, fiume Morto Vecchio e Nuovo
Direttive correlate
1.3 -assicurare che eventuali nuove espansioni e nuovi carichi insediativi siano coerenti per tipiedilizi, materiali, colori ed altezze. e opportunamente inseriti nel contesto paesaggistico senza alterarne la qualita mortologica e percettiva
Nello specifico nell' intervento di trasformazione si dovranno utilizzare tipologie, materiali e cromie coerenti con lo stato dei luoghi e d in particolare con gli insediamenti recenti posti a nord e sud lungo strada
1.4- omissis, definire eriqualificare imargini urbani attraverso interventi di riordinodei tessuti costruiti edella viabilità, di riorganizzazione degli spazi pubblici,di mitigazione degli aspetti di disomogeneità e di integrazione con il tessuto agricolo perturbano sia in termini visuali che truitivi.
Nello specifico l'intervento deve contribuire a migliorare complessivamente le opere pubbliche gia previste nel P U (parcheggi pubblici) necessarieper tutto l'insediamento
Obiettivo 3
Preservare i caratteri strutturanti il paesaggio della compagine collinare che comprende sistemi rurali densamente insediati, a prevalenza di colture arboree, e moftologie addolcite occupate da seminativi nudi e connotate da un sistema insediativo rado
Direttive correlate
34. -preservare i valori storico-testimoniali, percettivi ed ecologici dele porzioni di territorio comprese nella fascia pedemontana dei Monti di Castellina (attorno a Santa Luce. tra Colle Montanino. Parlascio, Ceppato, Casciana e nei pressi di Chianni) attraverso il mantenimento delle relazioni paesistiche tra nuclei storiche mosaici agricoli tradizionali.
Nello specifico l'area d'intervento confina a est e a ovest con il territorio rurale. Pertanto la sistemazione dell'area dovrà garantire coni di visuale panoramici per tutto l'insediamento e connessioni ecologiche con il territorio rurale collinare posto al contorno.

Indicazioni di cui all'art. 1 del PAI del Bacinodel Fiume Arno. Fattibilità per gli aspetti idraulici: Classe F1 - Fattiibilità senza particolari limitazioni;
Fattibilità per gli aspetti sismici:
Classe F3- Fattibilità condizionata, per la quale sono necessarie indagini geognosistiche geofisiche in grado di definire le geometrie di sottosuolo delle aree instabili e le caratteristiche dei terreni presenti.



CLASSE ENERGETICA:
RIFERIMENTO ANNUNCIO
Terreno Pisa
DATA ANNUNCIO
18 dicembre 2024
DATA ULTIMO AGGIORNAMENTO
17 gennaio 2025
CONTRATTO
Vendita
TIPOLOGIA
Terreno edificabile
SUPERFICIE
2600 m²
locali
10
TIPO PROPRIETA'
Standard
ALTRE CARATTERISTICHE'
Costi
€ 59.000,00
prezzo di vendita
Classe energetica NC
a+ a b c d e f g
Mappa della zona dell'immobile

Calcola il mutuo

Inserisci i dati mutuo

Rata del mutuo
Al mese
Anticipo
Mutuo
Richiedi consulenza gratuita mutuo

Servizio erogato tramite  

Servizi per te
Inserzionista
Logo Sist3ma.it
Sist3ma.it

Codice annuncio: 1032
Riferimento immobile: Terreno Pisa

Invia email
ATTENZIONE ALLE TRUFFE
 
NON ANTICIPARE MAI denaro su carte ricaricabili, conti correnti esteri, money transfer o altri sistemi di pagamento

Scopri subito quanto vale la tua casa per l'affitto o per la vendita!

   

Altri annunci simili

Terreno edificabile in vendita a Rosignano Marittimo
Vada, Loc. Polveroni - vendesi terreno agricolo ad uliveta di 2000mq, pianeggiante, facilmente ra...
€ 53.000
2000 ㎡
superficie
Terreno edificabile in vendita in valletta di Rio Vallone a Castelfiorentino
NUOVA PROPOSTA IMMOBILE LIBERO Terreni siti nel comune di Castelfiorentino (FI) Tra la valletta...
€ 39.519
1
locali
99268 ㎡
superficie
Terreno edificabile in vendita in valletta di Rio Vallone a Castelfiorentino
NUOVA PROPOSTA IMMOBILE LIBERO Terreni siti nel comune di Castelfiorentino (FI) Tra la valletta...
€ 62.180
1
locali
81519 ㎡
superficie
Terreno edificabile in vendita a San Gimignano
Un vero gioiello un' opportunità per chi vuole possedere un terreno con un vigneto e un oliveto,...
€ 45.000
4352 ㎡
superficie
Terreno edificabile in vendita in Via Castelnuovo a Serravalle Pistoiese
NUOVA PROPOSTA TERRENO LIBERO Terreno situato a Serravalle Pistoiese (PT), località Cantagrill...
€ 48.515
1
locali
1371 ㎡
superficie