Appartamento in vendita in Via Ca' Silvestre a Nanto
€ 135.000,00
prezzo di vendita
NUOVA PROPOSTA
IMMOBILE LIBERO
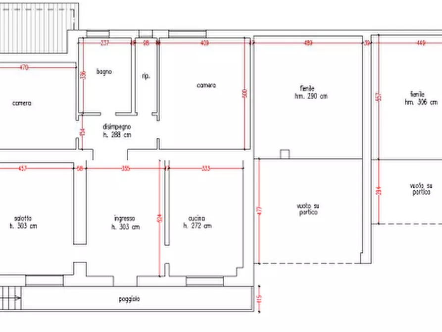
Casa situata a Nanto (VI), in Via Ca' Silvestre, composta da due appartamenti. Il primo, al primo piano, è costituito da ingresso, cucina, soggiorno, disimpegno, due camere, bagno e ripostiglio per circa 148 mq, oltre poggiolo collegato con scala esterna di accesso di circa 18 mq. Il secondo, al piano terra, è composto da ingresso, cucina, soggiorno, disimpegno, due camere, bagno, w.c., centrale termica, ripostigli e locale ad uso autorimessa per circa 271 mq, oltre due portici sul lato sud di circa 39 mq e, al primo piano, accessibile tramite scala esterna portatile, altri due locali non comunicanti ad uso ripostiglio (ex fienile) per circa 58 mq. La proprietà rappresenta una soluzione abitativa ampia e versatile, adatta a nuclei familiari numerosi o a utilizzo plurifunzionale.
Per te la possibilità di avere un preventivo per il mutuo a condizioni vantaggiose con i nostri partner.
Ulteriori dettagli, foto degli interni, planimetrie e altre info, se disponibili, saranno consultabili previo appuntamento nella sede di VICENZA con SAMUELE che inoltre ti informerà sulle possibilità di aggiudicarti questo affare.
L'immobile pubblicato al momento è sottoposto a procedura di vendita legale; Gescom srl è specializzata nella ricerca e pianificazione di investimenti immobiliari secondo innovative strategie di acquisto. Contattaci subito potrai valutare assieme a un nostro tecnico canali distinti di acquisto dell'immobile, procedura di vendita diretta senza ricorrere all'asta (d.lgs. 149/2022) e ancora stralcio immobiliare. Le informazioni sopra riportate non sostituiscono l'avviso pubblicato dal Tribunale competente ne' l'integrale gestione da parte del delegato designato. Il testo e le specifiche indicate nella presente pagina sono generate automaticamente attraverso l'utilizzo di software e/o da A. I., Gescom srl invita a verificare le formazioni e i materiali multimediali sui canali ufficiali, declinando fin d'ora ogni responsabilità su eventuali errori o incongruenze.
Gescom Italia srl leader negli stralci immobiliari e nella consulenza tecnico legale, non si occupa di attività di intermediazione imm. di cui alla legge 39/89.
Cl. energ. da verificare.
Le foto pubblicate nel presente annuncio sono indicative e non esaustive della tipologia, qualità, consistenza e indicazione geografica dell'immobile.
CLASSE ENERGETICA: A