ioaffitto.it TROVA casa. VIVI SEMPLICE.
Nuova ricerca
Pubblica annuncio
Annunci sponsorizzati
Agenzie
Valutazione-immobile
Servizi
Luce Gas Fibra
Mutui
Finanziamenti
Ricerca Internazionale
Servizi web
Servizio partecipazione asta
Pubblica annuncio
Accedi
1/9
2/9
3/9
4/9
5/9
6/9
7/9
8/9
9/9
9
Foto
0
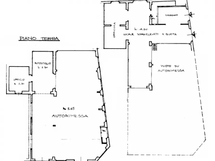
planimetria
Negozio in affitto in PIAZZA DELLE CURE a Firenze
€ 10.900,00
al mese
2
locali
2
bagni
650
mq
FIRENZE CURE In posizione di altissimo passaggio e visibilità, proponiamo in locazione fondo commerciale di 650 mq, con molteplici ingressi e sporti su strada. Il locale attualmente necessita di ristrutturazione, che verrà concordata insieme alla proprietà. Ottimo per attività commerciali e grande distribuzione. --- annuncio pubblicato con GESTIONALEIMMOBILIARE.it
RIFERIMENTO ANNUNCIO
gestimm-4429082
DATA ANNUNCIO
20 febbraio 2025
DATA ULTIMO AGGIORNAMENTO
20 febbraio 2025
CONTRATTO
Affitto
TIPOLOGIA
Negozio
SUPERFICIE
650 m²
locali
2
TOTALE PIANI EDIFICIO
1
TIPO PROPRIETA'
Standard
ALTRE CARATTERISTICHE'
soffitta / mansarda
cantina
impianto elettrico da verificare
ingresso indipendente
garage
cucina presente
cucina abitabile
da ristrutturare
rete locale in fibra ottica
grezzo
taverna
Costi
€ 10.900,00
al mese
Classe energetica
G
145.97 kWh/m3anno
a+
a
b
c
d
e
f
g
Mappa della zona dell'immobile
Ingrandisci mappa
Segnala un problema
Servizi per te
Inserzionista
Capital Immobiliare Firenze Srl
Stefano Contessa
Vai al sito web
Codice annuncio:
4429082
Mostra numero
Tel: 0557097710
Invia email
Motivo contatto
Appuntamento
Più informazioni
Richiesta di contatto
Più foto e materiali
Nome e cognome*
Email*
Cellulare
Messaggio*
ATTENZIONE ALLE TRUFFE
NON ANTICIPARE MAI denaro su carte ricaricabili, conti correnti esteri, money transfer o altri sistemi di pagamento
Accettazione*
Ho letto, sono maggiorenne e accetto
condizioni
,
privacy
e
Consigli antitruffa
Invia
Chiama
Contatta
Visita
Richiedi visita
Scopri subito quanto vale la tua casa per l'affitto o per la vendita!
Valuta gratis
Altri annunci simili
a
a
Annunci immobiliari nella stessa zona
Comune di Firenze:
Affitto Attività/immobili commerciali Firenze
|
Affitto Negozi Firenze
|
Agenzie immobiliari Firenze
|
Provincia di Firenze:
Affitto Attività/immobili commerciali Firenze
|
Affitto Negozi Firenze
|
Agenzie immobiliari Firenze
|
Email
Password
Ricordami
Registrati adesso
Sei una agenzia?
Password dimenticata?