ioaffitto.it TROVA casa. VIVI SEMPLICE.
Nuova ricerca
Pubblica annuncio
Annunci sponsorizzati
Agenzie
Valutazione-immobile
Servizi
Luce Gas Fibra
Mutui
Finanziamenti
Ricerca Internazionale
Servizi web
Servizio partecipazione asta
Pubblica annuncio
Accedi
In affitto
/
Negozio
/
Firenze (FI)
1 di 34
1/13
2/13
3/13
4/13
5/13
6/13
7/13
8/13
9/13
10/13
11/13
12/13
13/13
13
Foto
0
planimetria
Negozio in affitto a Firenze
€ 2.600,00
al mese
6
locali
2
bagni
160
mq
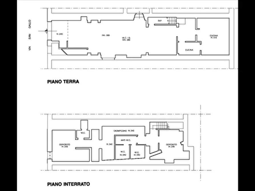
VIA SAN GALLO LOCALE COMMERCIALE C/1 CON CANNA FUMARIA DUE SEVIZI UNO SPORTO SU' STRADA.. - CLASSE ENERGETICA IN ELABORAZIONE RIF. 4/0076 - (agg. 04/12/2025)
RIFERIMENTO ANNUNCIO
i2000-0011-4-007645948
DATA ANNUNCIO
18 ottobre 2025
DATA ULTIMO AGGIORNAMENTO
21 ottobre 2025
CONTRATTO
Affitto
TIPOLOGIA
Negozio
SUPERFICIE
160 m²
locali
6
PIANO
TERRENO
TIPO PROPRIETA'
Standard
ALTRE CARATTERISTICHE'
sistema di riscaldamento presente
riscaldamento autonomo
Costi
€ 2.600,00
al mese
Classe energetica
G
a+
a
b
c
d
e
f
g
Mappa della zona dell'immobile
Ingrandisci mappa
Segnala un problema
Servizi per te
Inserzionista
IMMOBILIARE NESI
Vai al sito web
Codice annuncio:
0011
Mostra numero
Tel: 055223113-3355764607
Invia email
Motivo contatto
Appuntamento
Più informazioni
Richiesta di contatto
Più foto e materiali
Nome e cognome*
Email*
Cellulare
Messaggio*
ATTENZIONE ALLE TRUFFE
NON ANTICIPARE MAI denaro su carte ricaricabili, conti correnti esteri, money transfer o altri sistemi di pagamento
Accettazione*
Ho letto, sono maggiorenne e accetto
condizioni
,
privacy
e
Consigli antitruffa
Invia
Chiama
Contatta
Visita
Richiedi visita
Scopri subito quanto vale la tua casa per l'affitto o per la vendita!
Valuta gratis
Altri annunci simili
Negozio in affitto a Firenze
AFFITTASI LOCALE COMMERCIALE IN UNA CONTRADA DI VIA CALZAIUOLI!DESCRIZIONE: SITUATO IN UNA CONTRA...
€ 2.500
4
locali
70 ㎡
superficie
1
bagni
Negozio in affitto a Firenze
VIA DEGLI ARTISTI SOTTO I PORTICI NEGOZIO C/1 CON 3 VETRINE DI CUI UNA MOLTO GRANDE OTTIMA VISIBI...
€ 2.600
5
locali
240 ㎡
superficie
2
bagni
Negozio in affitto in VIA IL PRATO a Firenze
FIRENZE BORGO OGNISSANTI Proponiamo in locazione ampio fondo commerciale con altissima visibilità...
€ 2.700
3
locali
160 ㎡
superficie
2
bagni
Negozio in affitto a Firenze
VIA DI SOFFIANO PRESSI AFFITTASI FONDO ACCATASTATO COME MAGAZZINO DI CIRCA 450 MQ CON RAMPA E PIA...
€ 2.500
2
locali
450 ㎡
superficie
2
bagni
Negozio in affitto a Empoli
EMPOLI, AFFITTASI IN UNA DELLE PIU' BELLE ZONE DEL CENTRO, FONDO COMMERCIALE DI CIRCA 90 MQ. AL P...
€ 2.500
5
locali
150 ㎡
superficie
1
bagni
Negozio in affitto a Lucca
Ampio fondo commerciale di 117mq in una zona focale del centro storico, con bagno, cantina/magazz...
€ 2.500
2
locali
117 ㎡
superficie
Annunci immobiliari nella stessa zona
Comune di Firenze:
Affitto Attività/immobili commerciali Firenze
|
Affitto Negozi Firenze
|
Agenzie immobiliari Firenze
|
Provincia di Firenze:
Affitto Attività/immobili commerciali Firenze
|
Affitto Negozi Firenze
|
Agenzie immobiliari Firenze
|
Email
Password
Ricordami
Registrati adesso
Sei una agenzia?
Password dimenticata?