ioaffitto.it TROVA casa. VIVI SEMPLICE.
Nuova ricerca
Pubblica annuncio
Annunci sponsorizzati
Agenzie
Valutazione-immobile
Servizi
Luce Gas Fibra
Mutui
Finanziamenti
Ricerca Internazionale
Servizi web
Servizio partecipazione asta
Pubblica annuncio
Accedi
1/12
2/12
3/12
4/12
5/12
6/12
7/12
8/12
9/12
10/12
11/12
12/12
12
Foto
3
planimetria
Negozio in affitto in Via Della Moscova a Milano
€ 2.300,00
al mese
2
locali
1
bagni
50
mq
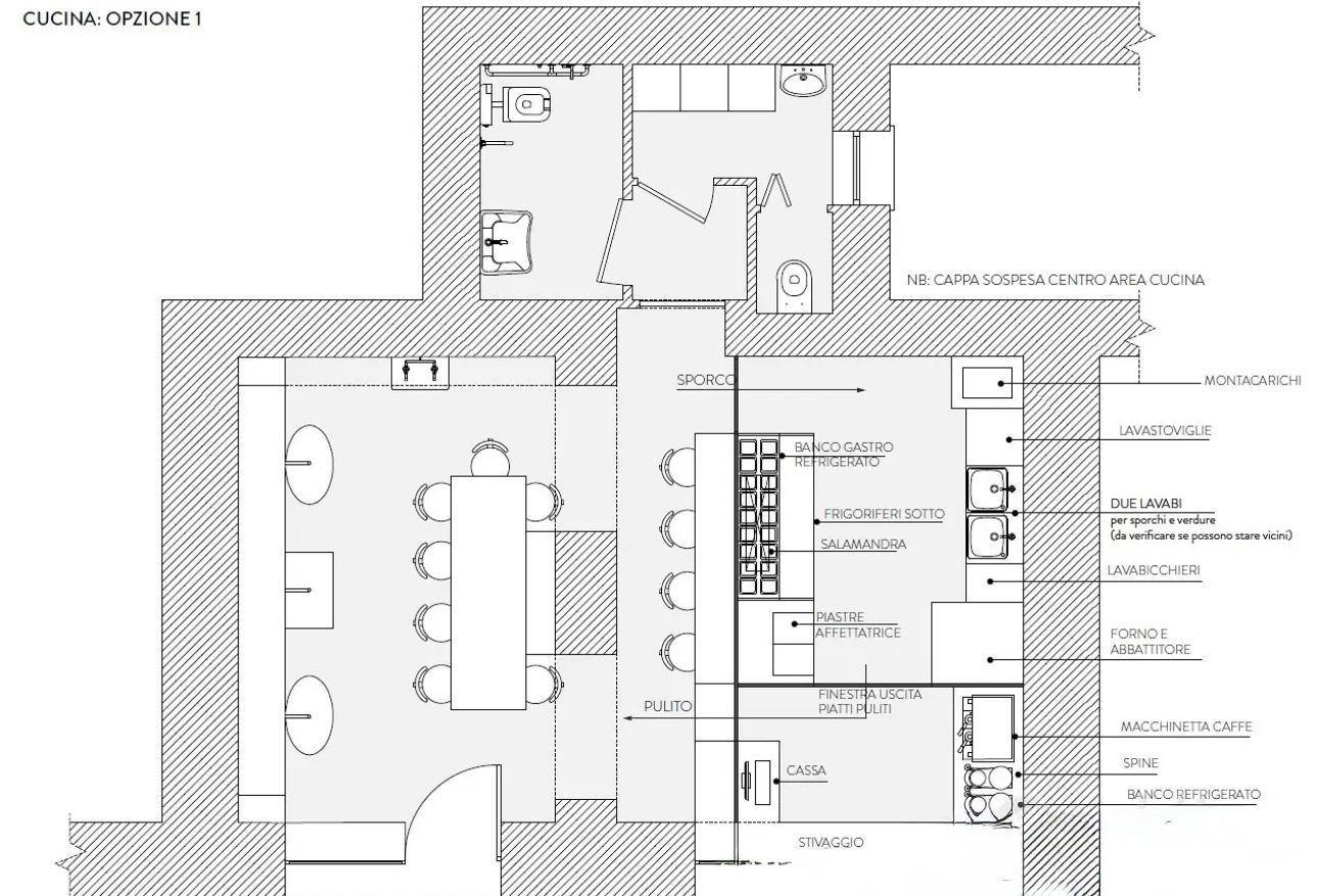
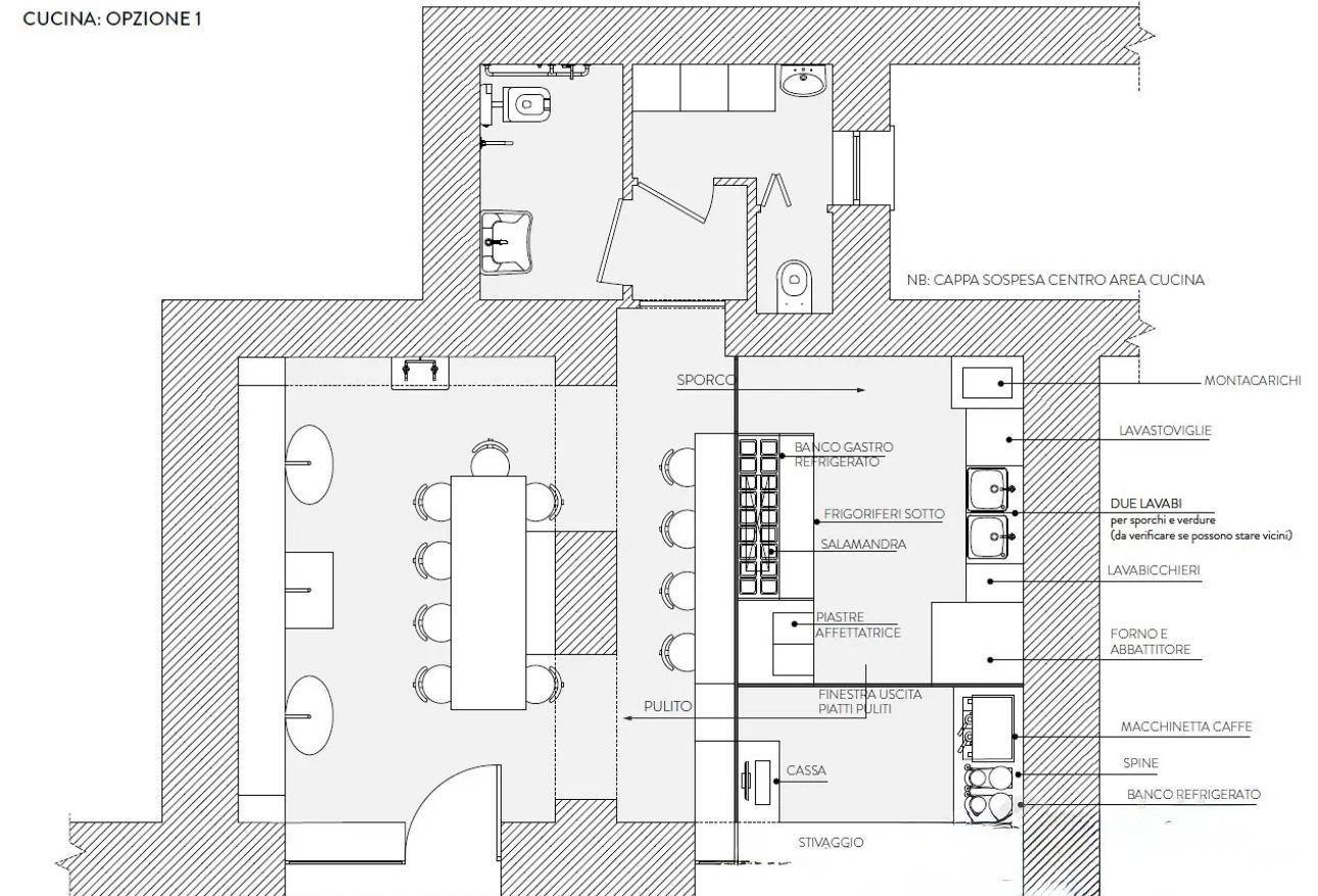
La FP Real Estate propone in prossimità da Corso Garibaldi, Moscova e Piazza XXV Aprile, in zona commerciale e di passaggio pedonale-veicolare, un locale commerciale adibito ad attività di food&beverage, caratterizzato da due vetrine di cui, una vetrina/ingresso su strada, di complessivi 50mq circa distribuiti su unico livello. La soluzione è così distribuita, ingresso su ampia area somministrazione food/beverage con circa 30 coperti, annesso servizio a norma di legge per i clienti, cucina a vista adibita a zona laboratorio/lavaggio.
Completa la soluzione una cantina esterna di pertinenza, con relativo montacarichi di collegamento interno con la cucina e relativo dehor esterno con circa 20 coperti.
Food con Carboni Attivi
Buona Uscita (trattativa riservata)
Per ulteriori informazioni contattateci allo 0917781384
RIFERIMENTO ANNUNCIO
444
DATA ANNUNCIO
21 ottobre 2025
DATA ULTIMO AGGIORNAMENTO
21 ottobre 2025
CONTRATTO
Affitto
TIPOLOGIA
Negozio
SUPERFICIE
50 m²
locali
2
TIPO PROPRIETA'
Standard
ALTRE CARATTERISTICHE'
cantina
arredata
giardino non presente
riscaldamento autonomo
riscaldamento assente
posto auto assente
Costi
€ 2.300,00
al mese
Stato
Ottime
Classe energetica
NA - NON APPLICABILE
a+
a
b
c
d
e
f
g
Mappa della zona dell'immobile
Ingrandisci mappa
Segnala un problema
Servizi per te
Inserzionista
FP REAL ESTATE
Vai al sito web
Codice annuncio:
6651
Riferimento immobile:
444
Mostra numero
Tel: 0917781384
Invia email
Motivo contatto
Appuntamento
Più informazioni
Richiesta di contatto
Più foto e materiali
Nome e cognome*
Email*
Cellulare
Messaggio*
ATTENZIONE ALLE TRUFFE
NON ANTICIPARE MAI denaro su carte ricaricabili, conti correnti esteri, money transfer o altri sistemi di pagamento
Accettazione*
Ho letto, sono maggiorenne e accetto
condizioni
,
privacy
e
Consigli antitruffa
Invia
Chiama
Contatta
Visita
Richiedi visita
Scopri subito quanto vale la tua casa per l'affitto o per la vendita!
Valuta gratis
Altri annunci simili
a
a
Negozio in affitto in via Azzone Visconti 37 a Monza
Proponiamo locale commerciale ad uso negozio ufficio fronte strada, in posizione strategica nella...
€ 2.500
5
locali
130 ㎡
superficie
2
bagni
Negozio in affitto in Via del Commercio 4 a Bellusco
Immobile commerciale in affitto a Bellusco Immobile commerciale di 205 mq oltre area esterna di c...
€ 2.200
1
locali
205 ㎡
superficie
1
bagni
Negozio in affitto in via S. Orsola a Bergamo
- BERGAMO _ CENTRO STORICO PEDONALE Elegante spazio commerciale di mq 95 dotato di 75 mq di sopp...
€ 2.500
2
locali
170 ㎡
superficie
1
bagni
a
Annunci immobiliari nella stessa zona
Comune di Milano:
Affitto Attività/immobili commerciali Milano
|
Affitto Negozi Milano
|
Agenzie immobiliari Milano
|
Provincia di Milano:
Affitto Attività/immobili commerciali Milano
|
Affitto Negozi Milano
|
Agenzie immobiliari Milano
|
Email
Password
Ricordami
Registrati adesso
Sei una agenzia?
Password dimenticata?