ioaffitto.it TROVA casa. VIVI SEMPLICE.
Nuova ricerca
Pubblica annuncio
Annunci sponsorizzati
Agenzie
Valutazione-immobile
Servizi
Luce Gas Fibra
Mutui
Finanziamenti
Ricerca Internazionale
Servizi web
Servizio partecipazione asta
Pubblica annuncio
Accedi
In affitto
/
Negozio
/
Padova (PD)
1 di 1
1/14
2/14
3/14
4/14
5/14
6/14
7/14
8/14
9/14
10/14
11/14
12/14
13/14
14/14
14
Foto
0
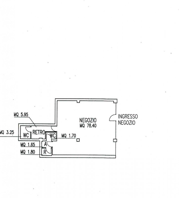
planimetria
Negozio in affitto in Via Perosi a Padova
€ 1.900,00
al mese
4
locali
2
bagni
277
mq
PADOVA - ARCELLA loc. San Lorenzo rif. C232: Casa su Misura ha il piacere di proporVi negozio completamente ristrutturato di mq 155 e più magazzino di 115 mq collegato.
Il negozio è situato in qualificata area residenziale e direzionale, comoda alle principali porte d'accesso ed uscita della città, quali autostrade, tangenziali e strade statali.
Per maggiori informazioni contattateci al seguente numero 049-8877156 o inviateci una mail a: info@immobiliarecasasumisura.it
Sul nostro sito www.casasumisura.net, oltre alla proposta C232, potrete trovare anche altre foto e planimetrie di soluzioni abitative simili sia nella stessa zona, che in zone limitrofe.
Nel caso il presente annuncio sia di Vs interesse o se interessati ad una valutazione gratuita del vostro immobile non esitate a contattarci. Grazie per la visita
RIF. C232 EURO 1.900/mese
Seguiteci su:
FACEBOOK: Casa Su Misura Padova
INSTAGRAM: casasumisura_padova
I dati e le informazioni contenute nel presente annuncio non costituiscono elemento contrattuale.
In ottemperanza alla Legge sulla Privacy, l'indirizzo ed il puntatore riportato nell'annuncio e nella mappa sono di carattere indicativo e non corrispondono all'indirizzo esatto in cui è ubicato l'immobile.
Invitiamo la clientela a contattarci per fornire maggiori informazioni sull'immobile. --- annuncio pubblicato con GESTIONALEIMMOBILIARE.it
RIFERIMENTO ANNUNCIO
gestimm-4184957
DATA ANNUNCIO
21 marzo 2025
DATA ULTIMO AGGIORNAMENTO
21 marzo 2025
CONTRATTO
Affitto
TIPOLOGIA
Negozio
SUPERFICIE
277 m²
locali
4
PIANO
Non disponibile
TIPO PROPRIETA'
Standard
ALTRE CARATTERISTICHE'
soffitta / mansarda
cantina
impianto elettrico presente e a norma
ingresso indipendente
garage
riscaldamento autonomo
cucina presente
cucina abitabile
cucina angolo cottura
ristrutturato
taverna
Costi
€ 1.900,00
al mese
Anno di costruzione
2023
Classe energetica
B
205.5 kWh/m3anno
a+
a
b
c
d
e
f
g
Mappa della zona dell'immobile
Ingrandisci mappa
Segnala un problema
Servizi per te
Inserzionista
Casa su misura Srl
Casa su misura Srl
Vai al sito web
Codice annuncio:
4184957
Mostra numero
Tel: 049 8877156
Invia email
Motivo contatto
Appuntamento
Più informazioni
Richiesta di contatto
Più foto e materiali
Nome e cognome*
Email*
Cellulare
Messaggio*
ATTENZIONE ALLE TRUFFE
NON ANTICIPARE MAI denaro su carte ricaricabili, conti correnti esteri, money transfer o altri sistemi di pagamento
Accettazione*
Ho letto, sono maggiorenne e accetto
condizioni
,
privacy
e
Consigli antitruffa
Invia
Chiama
Contatta
Visita
Richiedi visita
Scopri subito quanto vale la tua casa per l'affitto o per la vendita!
Valuta gratis
Altri annunci simili
Negozio in affitto in via morgagni a Padova
NEGOZIO IMPERDIBILE ZONA UNIVERSITARIA OSPEDALE VIA MORGAGNI NEGOZIO di mq.100 VETRINE n.5 ad ANG...
€ 1.900
100 ㎡
superficie
1
bagni
Negozio in affitto a Padova
Negozio di piccola dimensione in zona pedonale solo per attività no food. Affitto interessante. 0...
€ 2.000
Negozio in affitto a Padova
CENTRO STORICO: Negozio di 25 mq. in posizione centralissima esclusiva di grande passaggio vicino...
€ 2.000
25 ㎡
superficie
Negozio in affitto in via mortise a Padova
mortise affittasi negozio di 78 mq con servizi --- annuncio pubblicato con GESTIONALEIMMOBILIARE.it
€ 1.700
93 ㎡
superficie
2
bagni
Negozio in affitto in Piazze a Padova
Padova centro, Piazze-Stefania Pilotto immobiliare propone in affitto NEGOZIO sotto il Palazzo de...
€ 2.000
1
locali
20 ㎡
superficie
Negozio in affitto in Pontecorvo a Padova
PONTECORVO: Affittasi locale commerciale ideale come Ufficio o Negozio. Il locale si sviluppa su ...
€ 1.800
200 ㎡
superficie
Annunci immobiliari nella stessa zona
Comune di Padova:
Affitto Attività/immobili commerciali Padova
|
Affitto Negozi Padova
|
Agenzie immobiliari Padova
|
Provincia di Padova:
Affitto Attività/immobili commerciali Padova
|
Affitto Negozi Padova
|
Agenzie immobiliari Padova
|
Email
Password
Ricordami
Registrati adesso
Sei una agenzia?
Password dimenticata?