ioaffitto.it TROVA casa. VIVI SEMPLICE.
Nuova ricerca
Pubblica annuncio
Annunci sponsorizzati
Agenzie
Valutazione-immobile
Servizi
Luce Gas Fibra
Mutui
Finanziamenti
Ricerca Internazionale
Servizi web
Pubblica annuncio
Accedi
Nuovo
1/4
2/4
3/4
4/4
4
Foto
0
planimetria
Negozio in affitto in THIENE VIALE EUROPA 85 a Thiene
€ 740,00
al mese
-
locali
-
bagni
100
mq
THIENE – zona entrata paese (fronte strada provinciale)
Trattativa Unica Immobiliare, via Prà Bordoni 46 Zanè, info@immobiliareunica.com – 0445.362244
In posizione di forte passaggio veicolare, all’ingresso di Thiene, proponiamo in locazione negozio vetrinato al piano terra, inserito in contesto commerciale attivo con attività già ben avviate nelle immediate vicinanze.
L’immobile gode di ottima visibilità grazie alle due ampie vetrine fronte strada e di comodo parcheggio pubblico direttamente sul fronte, elemento fondamentale per qualsiasi attività commerciale.
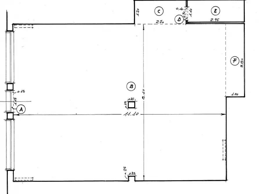
La superficie è di oltre 100 mq calpestabili, sviluppata in un unico ambiente open space, facilmente adattabile a diverse tipologie di attività. Completano la soluzione bagno con antibagno e finestre su due lati, che garantiscono buona luminosità e ricambio d’aria.
Il negozio è già dotato di:
impianto di riscaldamento e raffrescamento,
impianto di illuminazione,
pavimentazione in legno,
rendendolo pronto all’utilizzo con interventi minimi.
Aspetto molto interessante: immobile intestato a persona fisica, quindi esente IVA, soluzione particolarmente vantaggiosa per tutte le attività non soggette a detrazione.
Soluzione ideale per attività che necessitano di visibilità, facilità di accesso e parcheggio comodo, in una delle zone più strategiche di ingresso alla città. --- annuncio pubblicato con GESTIONALEIMMOBILIARE.it
RIFERIMENTO ANNUNCIO
gestimm-4906978
DATA ANNUNCIO
31 marzo 2026
DATA ULTIMO AGGIORNAMENTO
31 marzo 2026
CONTRATTO
Affitto
TIPOLOGIA
Negozio
SUPERFICIE
100 m²
TIPO PROPRIETA'
Standard
ALTRE CARATTERISTICHE'
soffitta / mansarda
cantina
garage
cucina presente
cucina abitabile
taverna
Costi
€ 740,00
al mese
Classe energetica
IN CORSO DI VALUTAZIONE
92.76 kWh/m3anno
a+
a
b
c
d
e
f
g
Mappa della zona dell'immobile
Ingrandisci mappa
Segnala un problema
Servizi per te
Inserzionista
Unica Immobiliare
Unica Immobiliare
Vai al sito web
Codice annuncio:
4906978
Mostra numero
Tel: 0445362244
Invia email
Motivo contatto
Appuntamento
Più informazioni
Richiesta di contatto
Più foto e materiali
Nome e cognome*
Email*
Cellulare
Messaggio*
ATTENZIONE ALLE TRUFFE
NON ANTICIPARE MAI denaro su carte ricaricabili, conti correnti esteri, money transfer o altri sistemi di pagamento
Accettazione*
Ho letto, sono maggiorenne e accetto
condizioni
,
privacy
e
Consigli antitruffa
Invia
Chiama
Contatta
Visita
Richiedi visita
Scopri subito quanto vale la tua casa per l'affitto o per la vendita!
Valuta gratis
Altri annunci simili
a
a
a
a
a
a
Annunci immobiliari nella stessa zona
Comune di Thiene:
Affitto Attività/immobili commerciali Thiene
|
Affitto Negozi Thiene
|
Agenzie immobiliari Thiene
|
Provincia di Vicenza:
Affitto Attività/immobili commerciali Vicenza
|
Affitto Negozi Vicenza
|
Agenzie immobiliari Vicenza
|
Email
Password
Ricordami
Registrati adesso
Sei una agenzia?
Password dimenticata?