ioaffitto.it TROVA casa. VIVI SEMPLICE.
Nuova ricerca
Pubblica annuncio
Annunci sponsorizzati
Agenzie
Valutazione-immobile
Servizi
Luce Gas Fibra
Mutui
Finanziamenti
Ricerca Internazionale
Servizi web
Servizio partecipazione asta
Pubblica annuncio
Accedi
Nuovo
1/11
2/11
3/11
4/11
5/11
6/11
7/11
8/11
9/11
10/11
11/11
11
Foto
0
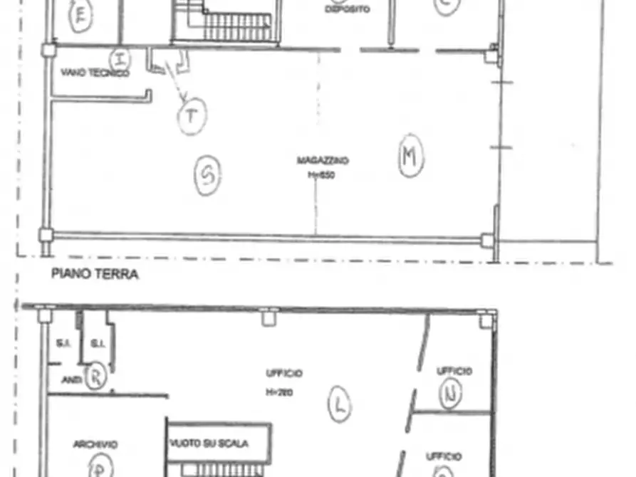
planimetria
Ufficio in affitto a Martignacco
€ 2.850,00
al mese
11
locali
2
bagni
480
mq
Ufficio 480mq in locazione a Martignacco, di cui 370mq destinati ad uso direzionale, distribuiti su due livelli. L’ingresso si apre su una reception che conduce a diversi ambienti operativi. Al piano superiore sono presenti due uffici direzionali e un ampio open space, per un totale di circa dieci postazioni di lavoro. Entrambi i piani sono dotati di servizi igienici e sala riunioni. Completa la proprietà un magazzino di 190mq con doppia altezza, oltre a un’area esterna di circa 150mq, recintata e accessibile tramite cancello automatico. Ampia disponibilità di parcheggio libero nelle immediate vicinanze. L’intero immobile è dotato di impianto di sicurezza con accesso tramite badge. Dal punto di vista energetico, è presente un impianto fotovoltaico da 20 kW che, insieme alle pompe di calore caldo/freddo alimentate elettricamente, contribuisce al raggiungimento della classe energetica B.
Metrature: uffici 370mq, magazzino (doppia altezza) 190mq, area scoperta 150mq.
Caratteristiche: Arredo completo, Impianto di sicurezza con badge, Impianto fotovoltaico da 20 kW
Contratto di locazione 6+6 o 9+9 più iva a norma di legge
Spese condominiali: assenti
Classe energetica: B
RIFERIMENTO ANNUNCIO
p24-1100637-16785
DATA ANNUNCIO
1 aprile 2026
DATA ULTIMO AGGIORNAMENTO
1 aprile 2026
CONTRATTO
Affitto
TIPOLOGIA
Ufficio
SUPERFICIE
480 m²
locali
11
TOTALE PIANI EDIFICIO
2
TIPO PROPRIETA'
Standard
ALTRE CARATTERISTICHE'
aria condizionata
arredata
riscaldamento autonomo
Costi
€ 2.850,00
al mese
Classe energetica
B
a+
a
b
c
d
e
f
g
Mappa della zona dell'immobile
Ingrandisci mappa
Segnala un problema
Servizi per te
Inserzionista
Immobigo srl
Vai al sito web
Codice annuncio:
1100637
Mostra numero
Tel: 04321598035
Invia email
Motivo contatto
Appuntamento
Più informazioni
Richiesta di contatto
Più foto e materiali
Nome e cognome*
Email*
Cellulare
Messaggio*
ATTENZIONE ALLE TRUFFE
NON ANTICIPARE MAI denaro su carte ricaricabili, conti correnti esteri, money transfer o altri sistemi di pagamento
Accettazione*
Ho letto, sono maggiorenne e accetto
condizioni
,
privacy
e
Consigli antitruffa
Invia
Chiama
Contatta
Visita
Richiedi visita
Scopri subito quanto vale la tua casa per l'affitto o per la vendita!
Valuta gratis
Altri annunci simili
a
a
Annunci immobiliari nella stessa zona
Comune di Martignacco:
Affitto Attività/immobili commerciali Martignacco
|
Affitto Uffici Martignacco
|
Agenzie immobiliari Martignacco
|
Provincia di Udine:
Affitto Attività/immobili commerciali Udine
|
Affitto Uffici Udine
|
Agenzie immobiliari Udine
|
Email
Password
Ricordami
Registrati adesso
Sei una agenzia?
Password dimenticata?