ioaffitto.it TROVA casa. VIVI SEMPLICE.
Logo
Nuovo
1/2
Immagine 1 di Negozio in vendita  in Piazza della Costituzione a Legnago
2/2
Immagine 2 di Negozio in vendita  in Piazza della Costituzione a Legnago
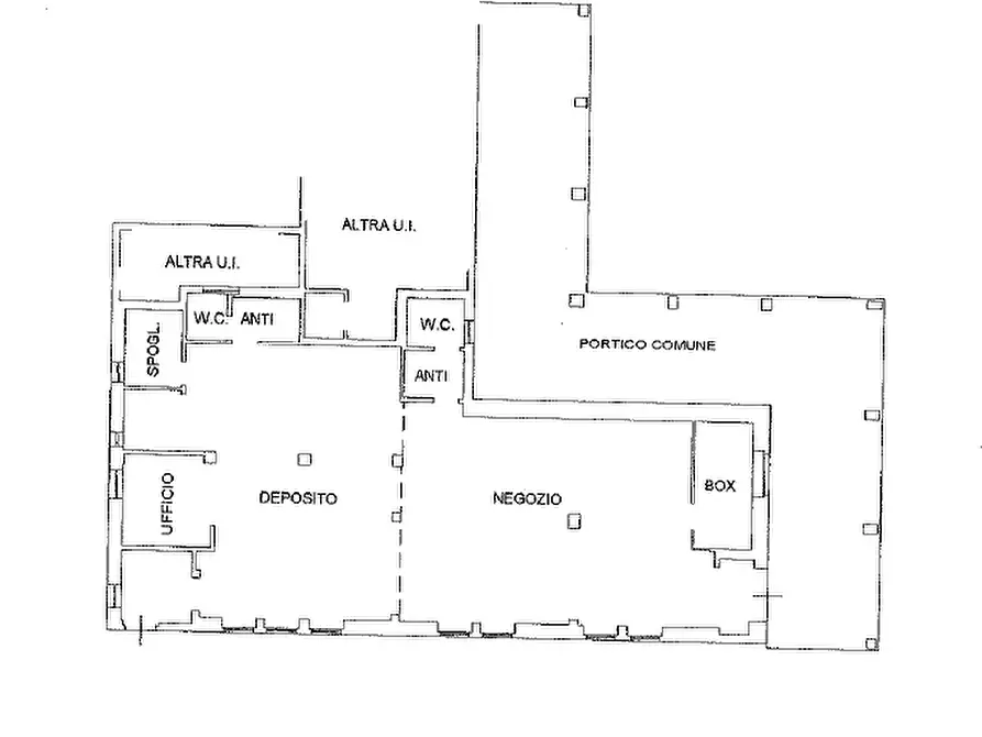
Icona foto2 Foto     Icona planimetrie 0 planimetria

Negozio in vendita in Piazza della Costituzione a Legnago

€ 255.000,00
prezzo di vendita
1
locali
2
bagni
171
mq
Legnago - In contesto urbano centrale e ben servito, proponiamo in vendita locale commerciale situato in una zona comoda e di passaggio.
L'immobile è composto da un ampio vano, luminoso e facilmente personalizzabile, oltre a due bagni, e si presta a diverse tipologie di attività professionali e commerciali.
La posizione garantisce comfort e funzionalità, grazie alla presenza di numerosi servizi nelle immediate vicinanze e alla buona accessibilità alle principali vie di collegamento.
Esplora le nostre proprietà con Professione Casa: il marchio leader nel settore immobiliare. Con Professione Casa, accedi a un servizio di eccellenza nel mondo degli immobili. Come colosso nel settore, ci impegniamo a fornire un'esperienza di ricerca e acquisto impeccabile per ogni cliente. Dagli appartamenti alle ville di lusso, le nostre proprietà sono curate per soddisfare ogni esigenza abitativa. Con il nostro impegno per l'eccellenza del servizio, garantiamo un supporto costante e professionale in ogni fase della transazione. Esplora oggi le nostre proposte immobiliari e scopri perché Professione Casa è la scelta di fiducia per coloro che cercano qualità, affidabilità e un'esperienza senza pari nel settore immobiliare.
RIFERIMENTO ANNUNCIO
AV2025-168VCG
DATA ANNUNCIO
29 dicembre 2025
DATA ULTIMO AGGIORNAMENTO
29 dicembre 2025
CONTRATTO
Vendita
TIPOLOGIA
Negozio
SUPERFICIE
171 m²
locali
1
PIANO
Piano terra
TIPO PROPRIETA'
Standard
ALTRE CARATTERISTICHE'
Costi
€ 255.000,00
prezzo di vendita
Mappa della zona dell'immobile

Calcola il mutuo

Inserisci i dati mutuo

Rata del mutuo
Al mese
Anticipo
Mutuo
Richiedi consulenza gratuita mutuo

Servizio erogato tramite  

Servizi per te
Inserzionista
San Costanzo Immobiliare Srl

Codice annuncio: 2689731
Riferimento immobile: AV2025-168VCG

Invia email
ATTENZIONE ALLE TRUFFE
 
NON ANTICIPARE MAI denaro su carte ricaricabili, conti correnti esteri, money transfer o altri sistemi di pagamento

Scopri subito quanto vale la tua casa per l'affitto o per la vendita!

   

Altri annunci simili