ioaffitto.it TROVA casa. VIVI SEMPLICE.
Logo
1/4
Immagine 1 di Terreno in vendita  in Via Vallesana a Baone
2/4
Immagine 2 di Terreno in vendita  in Via Vallesana a Baone
3/4
Immagine 3 di Terreno in vendita  in Via Vallesana a Baone
4/4
Immagine 4 di Terreno in vendita  in Via Vallesana a Baone
Icona foto4 Foto     Icona planimetrie 0 planimetria

Terreno in vendita in Via Vallesana a Baone

€ 110.000,00
prezzo di vendita
-
locali
-
bagni
170
mq
A Baone, nella suggestiva zona di Valle San Giorgio, proponiamo in vendita terreno edificabile inserito nello straordinario contesto dei Colli Euganei – Patrimonio Unesco, ideale per chi desidera realizzare una nuova abitazione indipendente immersa nella natura.

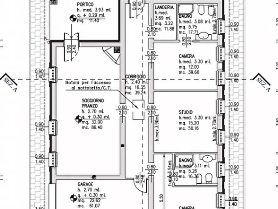
Il lotto è già dotato di permesso di costruire per la realizzazione di un fabbricato residenziale indipendente, come da progetto approvato, soluzione ideale per chi cerca un terreno già pronto per costruire, evitando le incertezze tipiche della fase autorizzativa.

CARATTERISTICHE DEL PROGETTO:
• Fabbricato residenziale separato e indipendente;
• Soggiorno con angolo cottura, tre camere (di cui una adibita a studio), due bagni, lavanderia e garage;
• Sviluppo su piano terra, monolivello, con distribuzione funzionale degli spazi;
• Architettura coerente con il contesto rurale e collinare;
• Progetto pensato per integrarsi armoniosamente nel paesaggio dei Colli Euganei;

CONTESTO:
La posizione garantisce privacy, tranquillità e vista aperta sul paesaggio collinare, con facile accesso ai principali percorsi escursionistici e naturalistici della zona. Un contesto di grande valore ambientale e paesaggistico, riconosciuto a livello internazionale.

PUNTI DI FORZA:
- Terreno edificabile con permesso di costruire già rilasciato
- Progetto residenziale definito e pronto allo sviluppo
- Inserito nei Colli Euganei – Patrimonio Unesco
- Ideale per abitazione principale o seconda casa di pregio

Soluzione particolarmente indicata per chi desidera costruire una casa su misura, in un contesto naturale esclusivo, con tempi e rischi urbanistici fortemente ridotti.

Contattaci per ricevere il progetto completo o per maggiori informazioni.

Rif. B161-B --- annuncio pubblicato con GESTIONALEIMMOBILIARE.it
RIFERIMENTO ANNUNCIO
gestimm-4809763
DATA ANNUNCIO
14 gennaio 2026
DATA ULTIMO AGGIORNAMENTO
14 gennaio 2026
CONTRATTO
Vendita
TIPOLOGIA
Terreno
SUPERFICIE
170 m²
TIPO PROPRIETA'
Standard
ALTRE CARATTERISTICHE'
soffitta / mansarda cantina garage cucina presente cucina abitabile taverna
Costi
€ 110.000,00
prezzo di vendita
Classe energetica NON SOGGETTO A CERTIFICAZIONE
a+ a b c d e f g
Mappa della zona dell'immobile

Calcola il mutuo

Inserisci i dati mutuo

Rata del mutuo
Al mese
Anticipo
Mutuo
Richiedi consulenza gratuita mutuo

Servizio erogato tramite  

Servizi per te
Inserzionista
Logo Mode Home Group
Mode Home Group
Principale Account

Codice annuncio: 4809763

Invia email
ATTENZIONE ALLE TRUFFE
 
NON ANTICIPARE MAI denaro su carte ricaricabili, conti correnti esteri, money transfer o altri sistemi di pagamento

Scopri subito quanto vale la tua casa per l'affitto o per la vendita!

   

Altri annunci simili

Annunci immobiliari nella stessa zona