ioaffitto.it TROVA casa. VIVI SEMPLICE.
Logo
1/5
Immagine 1 di Trilocale in vendita  a San Benedetto Del Tronto
2/5
Immagine 2 di Trilocale in vendita  a San Benedetto Del Tronto
3/5
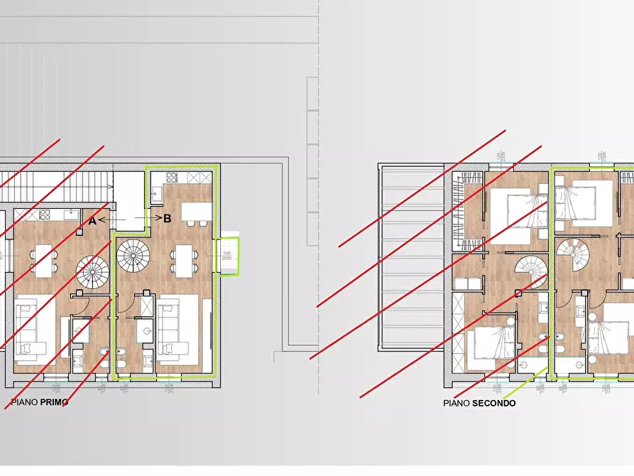
Immagine 3 di Trilocale in vendita  a San Benedetto Del Tronto
4/5
Immagine 4 di Trilocale in vendita  a San Benedetto Del Tronto
5/5
Immagine 5 di Trilocale in vendita  a San Benedetto Del Tronto
Icona foto5 Foto     Icona planimetrie 0 planimetria

Trilocale in vendita a San Benedetto Del Tronto

€ 290.000,00
prezzo di vendita
3
locali
2
bagni
83
mq
SAN BENEDETTO DEL TRONTO - In posizione centralissima a 400 metri da Piazza del Mercato, in palazzina moderna di nuova costruzione, in fase di realizzazione con consegna fine 2025 ed in classe energetica A2, appartamento posto al piano primo e secondo per un totale di mq 105 oltre balconcino. La superficie è cosi divisa, mq 50 posti al piano primo con destinazione abitativo composto da ingresso su soggiorno con angolo cottura, uscita su balconcino di 1.6 mq e bagno finestrato. Con scala di collegamento si accede al piano sovrastante (2 e ultimo) mansardato di mq 55 caratterizzato da altezze che variano da un max di 2.80 e un minimo di 1.80 ed è composto da due ampi vani sfruttabili come camere da letto matrimoniali, un bagno finestrato e tre ripostigli. I prezzi si intendono ad appartamento completo e rifinito, possibilità di scelta finiture su capitolato d'impresa. Possibilità di acquisto con importo da computare a parte di un garage posto al piano terra di mq 23. Per ulteriori informazioni contattare in sede. Codice riferimento 1359. Agenzia Immobiliare MAIORA/INVEST.
RIFERIMENTO ANNUNCIO
1359
DATA ANNUNCIO
13 novembre 2024
DATA ULTIMO AGGIORNAMENTO
13 novembre 2024
CONTRATTO
Vendita
TIPOLOGIA
Trilocale
SUPERFICIE
83 m²
locali
3
PIANO
1° piano
TOTALE PIANI EDIFICIO
2
TIPO PROPRIETA'
Standard
ALTRE CARATTERISTICHE'
barriere architettoniche balcone disponibile disimpegno doppio vetro cucina angolo cottura nuova costruzione cabina armadio
Costi
€ 290.000,00
prezzo di vendita
Anno di costruzione
2025
Stato
nuovo
Classe energetica A2
a+ a b c d e f g
Mappa della zona dell'immobile

Calcola il mutuo

Inserisci i dati mutuo

Rata del mutuo
Al mese
Anticipo
Mutuo
Richiedi consulenza gratuita mutuo

Servizio erogato tramite  

Servizi per te
Inserzionista
Logo Agenzia Immobiliare Maiora/Invest
Agenzia Immobiliare Maiora/Invest

Codice annuncio: 923742
Riferimento immobile: 1359

Invia email
ATTENZIONE ALLE TRUFFE
 
NON ANTICIPARE MAI denaro su carte ricaricabili, conti correnti esteri, money transfer o altri sistemi di pagamento

Scopri subito quanto vale la tua casa per l'affitto o per la vendita!

   

Altri annunci simili

Trilocale in vendita a San Benedetto Del Tronto
SAN BENEDETTO DEL TRONTO - In posizione centralissima a 400 metri da Piazza del Mercato, in palaz...
€ 308.000
3
locali
88 ㎡
superficie
2
bagni
Trilocale in vendita a San Benedetto Del Tronto
SAN BENEDETTO DEL TRONTO (AP) - A 500 metri dal centro e dal mare, in zona San Filippo Neri pret...
€ 290.000
3
locali
93 ㎡
superficie
2
bagni