ioaffitto.it TROVA casa. VIVI SEMPLICE.
Nuova ricerca
Pubblica annuncio
Annunci sponsorizzati
Agenzie
Valutazione-immobile
Servizi
Luce Gas Fibra
Mutui
Finanziamenti
Ricerca Internazionale
Servizi web
Servizio partecipazione asta
Pubblica annuncio
Accedi
1/2
2/2
2
Foto
1
planimetria
Ufficio in affitto in Via Tetti Dell'Oleo a Borgaro Torinese
€ 6.000,00
al mese
9
locali
-
bagni
1000
mq
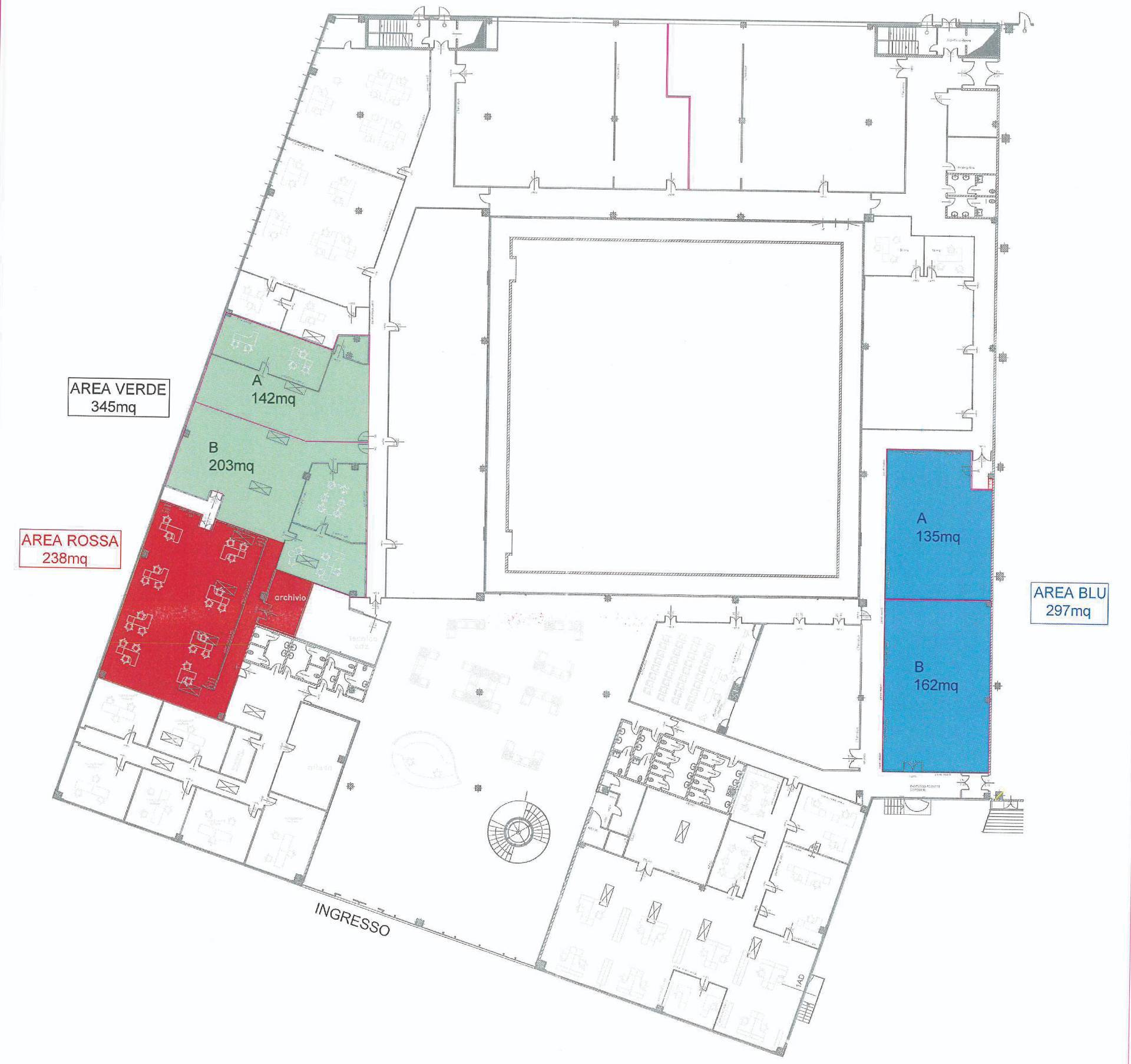
Borgaro Torinese, uffici direzionali in affitto per complessivi mq 1.000 circa, volendo frazionabili in lotti con un minimo di mq 300 circa.
Gli uffici sono di recente realizzazione e ben tenuti.
La richiesta è comprensiva delle spese di illuminazione, riscaldamento e condizionamento, salvo conguaglio annuale delle spese.
A carico dell'inquilino saranno le spese per la delimitazione degli spazi interni e per gli impianti telefonico ed elettrico.
RIFERIMENTO ANNUNCIO
11313
DATA ANNUNCIO
25 febbraio 2025
DATA ULTIMO AGGIORNAMENTO
25 febbraio 2025
CONTRATTO
Affitto
TIPOLOGIA
Ufficio
SUPERFICIE
1000 m²
locali
9
TIPO PROPRIETA'
Standard
ALTRE CARATTERISTICHE'
giardino non presente
riscaldamento autonomo
cucina assente
posto auto assente
impianto di antincendio
Costi
€ 6.000,00
al mese
Stato
Eccellenti
Classe energetica
B
108 kwh_m2
a+
a
b
c
d
e
f
g
Mappa della zona dell'immobile
Ingrandisci mappa
Segnala un problema
Servizi per te
Inserzionista
Chiusano Immobiliare
Vai al sito web
Codice annuncio:
4573
Riferimento immobile:
11313
Mostra numero
Tel: 0115682858
Invia email
Motivo contatto
Appuntamento
Più informazioni
Richiesta di contatto
Più foto e materiali
Nome e cognome*
Email*
Cellulare
Messaggio*
ATTENZIONE ALLE TRUFFE
NON ANTICIPARE MAI denaro su carte ricaricabili, conti correnti esteri, money transfer o altri sistemi di pagamento
Accettazione*
Ho letto, sono maggiorenne e accetto
condizioni
,
privacy
e
Consigli antitruffa
Invia
Chiama
Contatta
Visita
Richiedi visita
Scopri subito quanto vale la tua casa per l'affitto o per la vendita!
Valuta gratis
Altri annunci simili
a
a
Annunci immobiliari nella stessa zona
Comune di Borgaro Torinese:
Affitto Attività/immobili commerciali Borgaro Torinese
|
Affitto Uffici Borgaro Torinese
|
Agenzie immobiliari Borgaro Torinese
|
Provincia di Torino:
Affitto Attività/immobili commerciali Torino
|
Affitto Uffici Torino
|
Agenzie immobiliari Torino
|
Email
Password
Ricordami
Registrati adesso
Sei una agenzia?
Password dimenticata?