ioaffitto.it TROVA casa. VIVI SEMPLICE.
Nuova ricerca
Pubblica annuncio
Annunci sponsorizzati
Agenzie
Valutazione-immobile
Servizi
Luce Gas Fibra
Mutui
Finanziamenti
Ricerca Internazionale
Servizi web
Servizio partecipazione asta
Pubblica annuncio
Accedi
Nuovo
1/10
2/10
3/10
4/10
5/10
6/10
7/10
8/10
9/10
10/10
10
Foto
1
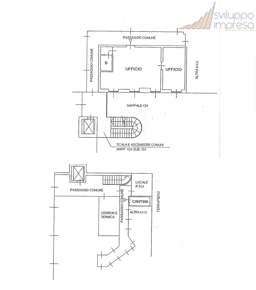
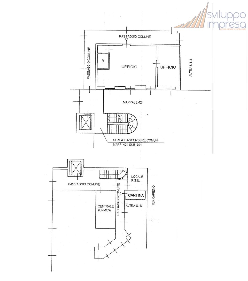
planimetria
Ufficio in affitto in viale lombardia 266 a Brugherio
€ 750,00
al mese
-
locali
2
bagni
71
mq
Brugherio (MB), Viale Lombardia, adiac3enze Centro commerciale BENNET, proponiamo ufficio di 70 m² situato al primo piano, composto da un ampio open space e un ufficio separato. L'immobile è dotato di impianto di climatizzazione e riscaldamento centralizzato, di impianto elettrico a norma e un comodo servizio igienico. L'ufficio è molto luminoso grazie alla sua esposizione e alle ampie finestre, con pavimentazione in piastrelle che conferisce un ambiente professionale e pratico. La proprietà include anche una cantina e un ascensore per un comodo accesso. Libero a rogito. VENDESI
RIFERIMENTO ANNUNCIO
2010
DATA ANNUNCIO
16 dicembre 2025
DATA ULTIMO AGGIORNAMENTO
16 dicembre 2025
CONTRATTO
Affitto
TIPOLOGIA
Ufficio
SUPERFICIE
71 m²
PIANO
2°
TIPO PROPRIETA'
Standard
ALTRE CARATTERISTICHE'
balcone disponibile
giardino comunale
giardino privato
cucina assente
posto auto non presente
terrazzo disponibile
Costi
€ 750,00
al mese
Mappa della zona dell'immobile
Ingrandisci mappa
Segnala un problema
Servizi per te
Inserzionista
Sviluppo Impresa Srl
Vai al sito web
Codice annuncio:
2010
Riferimento immobile:
2010
Mostra numero
Tel: 0224412650
Invia email
Motivo contatto
Appuntamento
Più informazioni
Richiesta di contatto
Più foto e materiali
Nome e cognome*
Email*
Cellulare
Messaggio*
ATTENZIONE ALLE TRUFFE
NON ANTICIPARE MAI denaro su carte ricaricabili, conti correnti esteri, money transfer o altri sistemi di pagamento
Accettazione*
Ho letto, sono maggiorenne e accetto
condizioni
,
privacy
e
Consigli antitruffa
Invia
Chiama
Contatta
Visita
Richiedi visita
Scopri subito quanto vale la tua casa per l'affitto o per la vendita!
Valuta gratis
Altri annunci simili
a
a
a
a
a
a
Annunci immobiliari nella stessa zona
Comune di Brugherio:
Affitto Attività/immobili commerciali Brugherio
|
Affitto Uffici Brugherio
|
Agenzie immobiliari Brugherio
|
Provincia di Milano:
Affitto Attività/immobili commerciali Milano
|
Affitto Uffici Milano
|
Agenzie immobiliari Milano
|
Email
Password
Ricordami
Registrati adesso
Sei una agenzia?
Password dimenticata?